161 Ernest, Dieppe, New Brunswick E1A 4T3

Listed for:
$299,900
3 beds
2 baths
Listed 25 days ago
House for rent: 161 Ernest, Dieppe, New Brunswick E1A 4T3

View all 28 photos

Learn more about this property
Listing provided by:
EXIT Realty Associates
MLS® number:
NB128902
Agent:
Nicole Leblanc
*Indicates required field
Name is required
Email is required
Please enter a valid phone number (e.g., 416-111-1111).

About

Continue on Rue Champlain/NB-132 E to Alain-Gillette St, Exit the roundabout onto Alain-Gillette St Take Chartersville Rd to Norbert St, Turn right onto Norbert St, Destination will be on the right Welcome to 161 Ernest, a stunning split-entry townhouse perfectly situated in a quiet, family-friendly neighborhood just minutes from Champlain Street. This middle-unit gem offers the perfect blend of style, comfort, and functionalityideal for families, professionals, or anyone seeking modern living in a prime location. Step inside and fall in love with the bright, open-concept design, where every detail has been carefully crafted. The high-end kitchen features sleek white cabinetry, stainless steel appliances, a large center island, and plenty of storageperfect for cooking and entertaining. The kitchen flows seamlessly into the spacious dining and living area, highlighted by a gorgeous accent wall and oversized windows that flood the space with natural light. Step through the patio doors to enjoy your private outdoor oasisa beautiful deck ideal for morning coffee, BBQs, or simply relaxing after a long day. The main level also includes a convenient half bath with laundry, while a mini-split heat pump ensures year-round comfort. On the lower level, youll find a generous primary bedroom with ample closet space, two additional bedrooms, a modern full bathroom, and a storage area. Each room has been designed with comfort and functionality in mind, offering plenty of natural light and a clean, modern aesthetic. Located close to walking trails, bus routes, shopping, schools, and all the fantastic amenities Dieppe has to offer, this home truly has it all. (id:27476)

Property Highlights

MLS® Number
NB128902
Type
Single Family
Ownership Type
Freehold
Land Size
226 m2

Building

Building Type
House
Square Footage
1330 sqft
Bathrooms Total
2
Bedrooms Total
3
Exterior Finish
Vinyl
Fireplace Present
No
Basement Type
Basement Features
Building Heating Type
Baseboard heaters, Heat Pump
Heating Fuel
Electric
Building Cooling Type
Heat Pump

Utilities

Water
Municipal water
Utility Sewer
Municipal sewage system

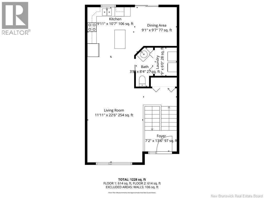
Room Layout

4pc Bathroom
Basement
8'0'' x 4'8''
Bedroom
Basement
8'4'' x 12'2''
Bedroom
Basement
10'4'' x 12'2''
Primary Bedroom
Basement
11'11'' x 13'7''
Foyer
Main level
7'2'' x 13'6''
Laundry room
Main level
4'9'' x 6'0''
2pc Bathroom
Main level
3'8'' x 8'4''
Dining room
Main level
9'1'' x 9'7''
Kitchen
Main level
9'11'' x 10'7''
Living room
Main level
11'11'' x 22'6''

Location