555 Breau, Dieppe, New Brunswick E1A 5N1

Listed for:
$379,900
4 beds
2 baths
Listed 6 days ago
555 Breau, Dieppe, New Brunswick E1A 5N1

View all 28 photos

Learn more about this property
Listing provided by:
EXIT Realty Associates
MLS® number:
NB129727
Agent:
Nicole Leblanc
*Indicates required field
Name is required
Email is required
Please enter a valid phone number (e.g., 416-111-1111).

About

From Amirault street turn left on VAnier, then right on Breau. Youll be pleased with this beautiful split-entry home located in a fantastic neighborhood of Dieppe! Step inside through the welcoming front entrance and into a spacious foyer, where you can head upstairs or downstairs. Upstairs, youll find a bright and inviting living room featuring a mini-split heat pump for year-round comfort. The living room opens seamlessly to the dining area and kitchen, creating a great flow for everyday living and entertaining. The dining area offers patio doors leading to the back deck, while the kitchen features beautiful light oak cabinetry, white appliances, and a convenient side door access. The main floor is completed with three good-sized bedrooms and a full bathroom. The fully finished lower level includes a large family or recreation room, a bedroom, a full bathroom with a stand-up shower, and a utility room. The laundry area is located in the unfinished portion of the basement. Outside, youll enjoy the mature tree in the front yard, a spacious back deck perfect for relaxing or entertaining, and convenient direct access to the basement from the exterior. This lovely home has so much to offer dont miss your chance to make it yours! Roof age is 2019! (id:27476)

Property Highlights

MLS® Number
NB129727
Type
Single Family
Ownership Type
Freehold
Land Size
624 m2

Building

Storeys
1.00
Square Footage
1743 sqft
Bathrooms Total
2
Bedrooms Above Ground
3
Bedrooms Total
4
Exterior Finish
Vinyl
Fireplace Present
No
Basement Type
Full (Unfinished)
Basement Features
Building Heating Type
Baseboard heaters
Heating Fuel
Electric
Building Cooling Type

Utilities

Water
Municipal water
Utility Sewer
Municipal sewage system

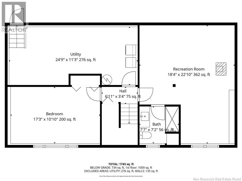
Room Layout

Bedroom
Basement
17'3'' x 10'10''
Recreation room
Basement
18'4'' x 22'1''
Utility room
Basement
24'9'' x 11'3''
2pc Bathroom
Basement
17'3'' x 10'1''
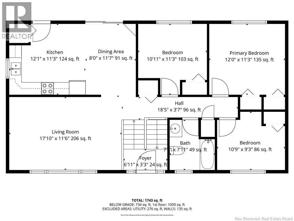
Foyer
Main level
6'11'' x 3'3''
4pc Bathroom
Main level
7'1'' x 7'11''
Bedroom
Main level
10'9'' x 9'3''
Primary Bedroom
Main level
12'0'' x 11'3''
Bedroom
Main level
10'11'' x 11'3''
Living room
Main level
17'10'' x 11'6''
Dining room
Main level
8'0'' x 11'7''
Kitchen
Main level
12'1'' x 11'3''

Location