58 Wilfred, Dieppe, New Brunswick E1A 0E4

Listed for:
$399,900
3 beds
2 baths
Listed 3 days ago
House for rent: 58 Wilfred, Dieppe, New Brunswick E1A 0E4

View all 50 photos

About

From Dieppe Blvd, turn on Melanson then onto Wilfred. Welcome to 58 Wilfred in Dieppe! A beautifully updated home that feels bright, welcoming, and easy to live in. Inside, the main floor offers a comfortable layout with a sun-filled living space and a kitchen that truly stands out, featuring modern updates and a large island that naturally becomes the heart of the home. Youll also find three well-sized bedrooms and a full bathroom. The fully finished basement adds even more room to enjoy, whether youre looking for a cozy family space, a spot to host, or a flexible area for your day-to-day needs. A 3-piece bathroom and additional storage complete the lower level. Out back, the deck is the perfect place to unwind, with a tree-lined yard that brings a sense of privacy. Located in a great area of Dieppe, close to everything you need, this is a move-in ready home that simply feels right the moment you walk in. (id:27476)

Property Highlights

MLS® Number
NB136307
Type
Single Family
Ownership Type
Freehold
Land Size
672 m2

Building

Building Type
House
Storeys
1.00
Square Footage
1866 sqft
Bathrooms Total
2
Bedrooms Above Ground
3
Bedrooms Total
3
Exterior Finish
Vinyl
Fireplace Present
No
Basement Type
Basement Features
Building Heating Type
Baseboard heaters, Heat Pump
Heating Fuel
Electric
Building Cooling Type
Heat Pump

Utilities

Water
Municipal water
Utility Sewer
Municipal sewage system

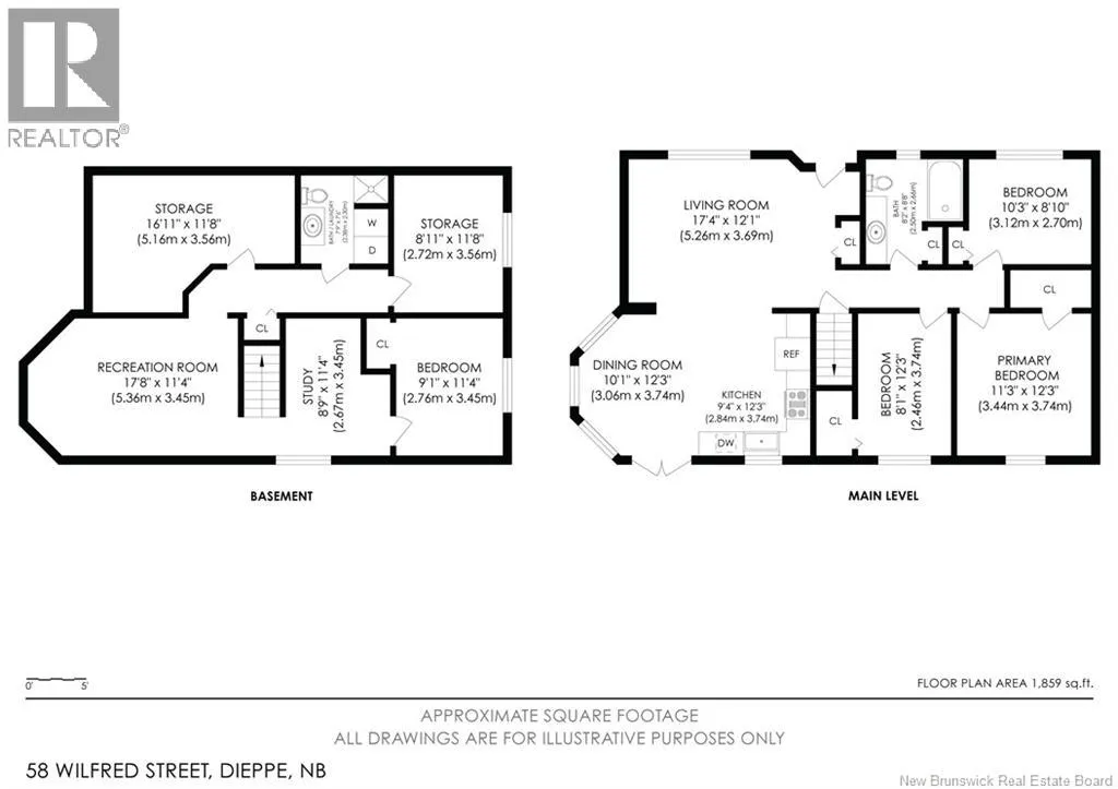
Room Layout

Storage
Basement
11'8'' x 8'11''
Storage
Basement
11'8'' x 16'11''
Bedroom
Basement
11'4'' x 9'1''
Office
Basement
11'4'' x 8'9''
3pc Bathroom
Basement
7'6'' x 7'9''
Recreation room
Basement
11'4'' x 17'8''
Bedroom
Main level
12'3'' x 8'1''
Bedroom
Main level
8'10'' x 10'3''
Primary Bedroom
Main level
12'3'' x 11'3''
4pc Bathroom
Main level
8'8'' x 8'2''
Kitchen
Main level
12'3'' x 9'4''
Dining nook
Main level
12'3'' x 10'1''
Living room
Main level
12'1'' x 17'4''

Location

Learn more about this property
Listing provided by:
eXp Realty
MLS® number:
NB136307
Agent:
Kaylee Arsenault
*Indicates required field
Name is required
Email is required
Please enter a valid phone number (e.g., 416-111-1111).