356 Lower Durham, Durham Bridge, New Brunswick E6C 1G7

Listed for:
$379,900
3 beds
2 baths
Listed 6 days ago
356 Lower Durham, Durham Bridge, New Brunswick E6C 1G7

View all 2 photos

Learn more about this property
Listing provided by:
REMAX East Coast Elite Realty
MLS® number:
NB129559
Agent:
Jason Munn
*Indicates required field
Name is required
Email is required
Please enter a valid phone number (e.g., 416-111-1111).

About

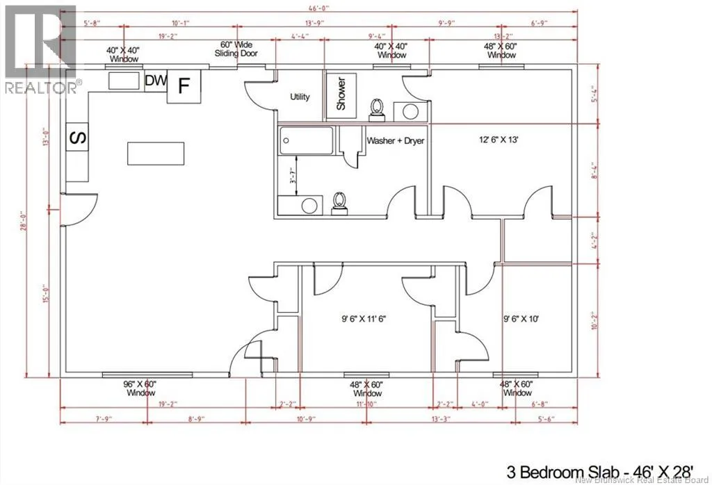
Route 148 across Durham Bridge, continue to the right at fork, and then turn onto Lower Durham or Route 8 to Durham Bridge exit, then right onto Lower Durham Road. Wow, this spacious new bungalow is a breath of fresh air for the price! Situated on an oversized 1 acre lot with easy highway access, getting into the city is a breeze while still enjoying the peace and privacy of country living. Inside, you?ll love the open-concept layout connecting the kitchen, dining, and living areas, perfect for gatherings or everyday comfort. The kitchen features custom cabinets and a large island, with patio doors off the dining area leading to the backyard. The living room is bright and inviting with an XL window that lets the natural light pour in. Down the hall, you?ll find three bedrooms, including a generous primary suite at the back of the home with its own private ensuite complete with shower. The main bath is full including a one-piece tub/shower. Built for comfort and efficiency with extra insulation, an insulated subfloor, and a boarded-in roof, this brand-new home offers unbeatable value, especially on a lot this size. Affordable, move-in ready and just minutes to the city! (id:27476)

Property Highlights

MLS® Number
NB129559
Type
Single Family
Ownership Type
Freehold
Land Size
1 ac

Building

Storeys
1.00
Square Footage
1288 sqft
Bathrooms Total
2
Bedrooms Above Ground
3
Bedrooms Total
3
Exterior Finish
Vinyl
Fireplace Present
No
Basement Type
Basement Features
Building Heating Type
Baseboard heaters, Heat Pump
Heating Fuel
Building Cooling Type
Heat Pump, Air exchanger

Utilities

Water
Drilled Well, Well
Utility Sewer
Septic System

Room Layout

Bath (# pieces 1-6)
Main level
13'0'' x 8'4''
Bedroom
Main level
11'6'' x 9'6''
Bedroom
Main level
10'0'' x 9'6''
Ensuite
Main level
9'4'' x 5'4''
Primary Bedroom
Main level
13'0'' x 12'6''
Living room
Main level
15'0'' x 19'2''
Kitchen
Main level
13'0'' x 19'2''

Location