4 Grant Street, Fredericton, New Brunswick E3A 4S5

Listed for:
$449,900
3 beds
2 baths
Listed 36 days ago
4 Grant Street, Fredericton, New Brunswick E3A 4S5

View all 14 photos

Learn more about this property
Listing provided by:
eXp Realty
MLS® number:
NB130731
Agent:
Miranda Wallace
*Indicates required field
Name is required
Email is required
Please enter a valid phone number (e.g., 416-111-1111).

About

Union Street, to Gibson Street, turn left onto Murray Avenue, to Grant- House is on the right (sign is up). Welcome to this stunning brand-new build on Frederictons Northside, crafted for those who appreciate modern comfort and the ease of true single-level living. Thoughtfully designed with style and functionality in mind, this home features 3 bedrooms and 2 full bathrooms, including a primary suite complete with a full ensuite and walk-in closet. Step inside to a bright, airy open-concept layout, where vaulted ceilings enhance the sense of space and natural light flows. The gorgeous kitchen features sleek quartz countertops, beautiful cabinetry, and a layout perfect for both everyday living and entertaining. With an attached garage offering direct entry into the home and a charming covered front porch enhancing its curb appeal, every detail has been considered for convenience and comfort. From its modern finishes to its low-maintenance design, this home is truly move-in ready and tailored for effortless, single-level living. Perfect for downsizers, busy professionals, or anyone seeking a fresh start in a thoughtfully built new home. (id:27476)

Property Highlights

MLS® Number
NB130731
Type
Single Family
Ownership Type
Freehold
Land Size
659 m2

Building

Storeys
1.00
Square Footage
1281 sqft
Bathrooms Total
2
Bedrooms Above Ground
3
Bedrooms Total
3
Amenities
Recreation Nearby
Exterior Finish
Stone, Vinyl
Fireplace Present
No
Basement Type
Basement Features
Building Heating Type
Baseboard heaters, Heat Pump
Heating Fuel
Electric
Building Cooling Type
Heat Pump, Air exchanger

Utilities

Water
Municipal water
Utility Sewer
Municipal sewage system

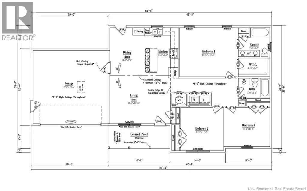
Room Layout

Bedroom
Main level
10'2'' x 11'8''
Bedroom
Main level
11'2'' x 11'2''
Other
Main level
4'10'' x 8'2''
Ensuite
Main level
7'8'' x 8'2''
Primary Bedroom
Main level
12'10'' x 15'0''
Bath (# pieces 1-6)
Main level
5'0'' x 8'2''
Living room
Main level
13'6'' x 15'10''
Dining room
Main level
11'6'' x 9'4''
Kitchen
Main level
11'6'' x 8'6''

Location