47 Rochester Street, Fredericton, New Brunswick E3B 4T2

Listed for:
$429,900
3 beds
2 baths
Listed 17 days ago
House for rent: 47 Rochester Street, Fredericton, New Brunswick E3B 4T2

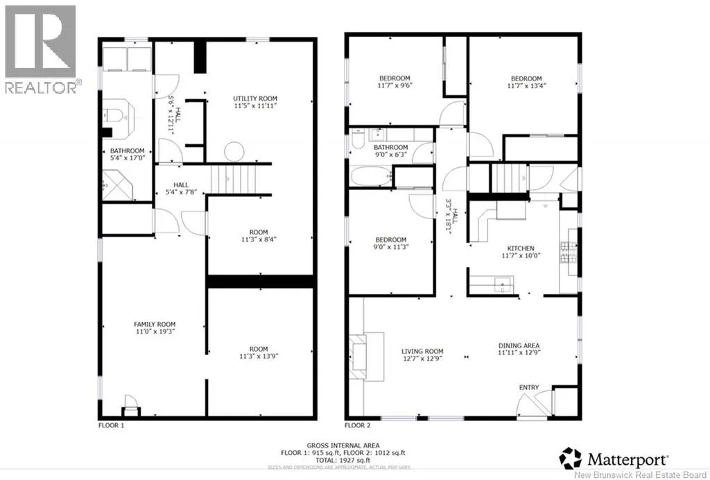
View all 38 photos

About

Canterbury Drive, turn right onto Rochester Street You know those mature neighbourhoods where every house looks the same? Yeah, thats not this one. The same family lived here for almost twenty years, and people dont stay that long unless life really works here. A big part of that is the neighbourhood. Established, family filled, and convenient. Three great schools, daycares, the Boys and Girls Club, plus parks and trails. Kids on bikes. Familiar faces. And all just five minutes to both uptown and downtown. The home itself has a true mid century vibe. Original beams, clean lines, custom built ins, a cozy propane fireplace (2014), and large windows with beautiful natural light. The kitchen is gorgeous and was fully remodelled with updated cabinetry, quartz counters, flooring, and appliances (2017 to 2018). Three bedrooms and a full bath are on the main level, keeping everyday living simple. Behind the scenes, all the important things have been taken care of. Updates include windows and exterior doors (2017), electric boiler system (2017), Fujitsu ducted heat pump (2019), roof shingles (2020), generator panel (2023), and a Leviton electric car charger (2024) and buried Power lines (2025). Many more upgrades on file! The basement offers living space with an office, second bathroom, playroom, proper egress, and storage. Outside, fencing and drainage, a custom 14x18 shed with ATV access (2025), and prep completed for future outdoor plans. Steadily maintained, year after year. And honestly, thats what makes it special. (id:27476)

Property Highlights

MLS® Number
NB132843
Type
Single Family
Ownership Type
Freehold
Land Size
818 m2

Building

Building Type
House
Storeys
1.00
Square Footage
1610 sqft
Bathrooms Total
2
Bedrooms Above Ground
3
Bedrooms Total
3
Exterior Finish
Vinyl
Fireplace Present
No
Basement Type
Basement Features
Building Heating Type
Heat Pump, Hot Water
Heating Fuel
Building Cooling Type
Heat Pump

Utilities

Water
Municipal water
Utility Sewer
Municipal sewage system

Room Layout

Storage
Basement
8'4'' x 11'2''
Storage
Basement
16'1'' x 11'3''
Bath (# pieces 1-6)
Basement
8'7'' x 5'4''
Recreation room
Basement
14'1'' x 10'11''
Office
Basement
13'11'' x 10'9''
Bath (# pieces 1-6)
Main level
3'9'' x 8'11''
Bedroom
Main level
9'7'' x 9'4''
Bedroom
Main level
10'4'' x 8'8''
Kitchen
Main level
10'11'' x 11'10''
Living room
Main level
22'9'' x 12'11''

Location

Learn more about this property
Listing provided by:
Royal LePage Atlantic
MLS® number:
NB132843
Agent:
Rebecca West
*Indicates required field
Name is required
Email is required
Please enter a valid phone number (e.g., 416-111-1111).