521 Royal, Memramcook, New Brunswick E4K 1N7

Listed for:
$699,900
5 beds
3 baths
Listed 49 days ago
House for rent: 521 Royal, Memramcook, New Brunswick E4K 1N7

View all 50 photos

About

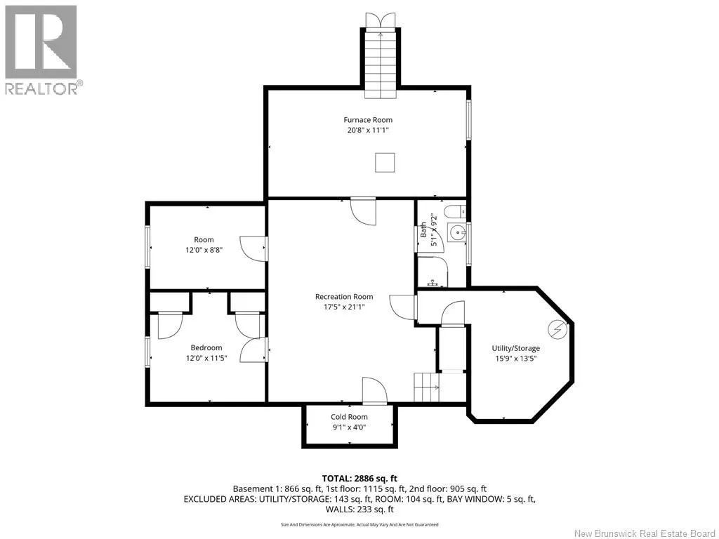
From Moncton Canada Hwy/NB-2 E then Take the exit toward Rue Renaissance Ext St, Continue onto Royal Rd/NB-106 E (signs for NB-925/Dorchester) look on your left 521 Royal Rd Sitting on 2.5 acres of beautiful land, this stunning two-storey home offers space, comfort, and charm throughout. From the moment you arrive, youll be impressed by the gorgeous curb appeal and welcoming presence. Step inside to a spacious front entrance highlighted by a beautiful staircase and a large living room. Just off the living room is the dining room, leading into the stunning kitchen featuring a bar-top counter, ample cabinetry, and stainless steel appliances perfect for everyday living and entertaining. The main floor also includes a bright sunroom filled with natural light. A convenient side entrance provides access to a full bathroom and laundry area. Upstairs, youll find the primary bedroom along with three additional bedrooms. The upper sunroom, currently used as a home office, offers a peaceful and inspiring space. A full bathroom completes this level. The fully finished basement adds even more living space with a large recreational or family room, an additional bedroom, a versatile bonus room ideal for a gym or hobby space, and another full bathroom. Outside, enjoy the large backyard and beautiful views. With a metal roof only two years old, a detached garage built in 2009, central vacuum, cold room, gazebo, and finished attic, this property truly has it all. Call for details! (id:27476)

Property Highlights

MLS® Number
NB134087
Type
Single Family
Ownership Type
Freehold
Land Size
2.57 ac

Building

Building Type
House
Square Footage
2886 sqft
Bathrooms Total
3
Bedrooms Above Ground
4
Bedrooms Total
5
Exterior Finish
Vinyl
Fireplace Present
No
Basement Type
Full (Finished)
Basement Features
Building Heating Type
Heating Fuel
Electric, Wood
Building Cooling Type

Utilities

Water
Dug Well, Well
Utility Sewer
Septic System

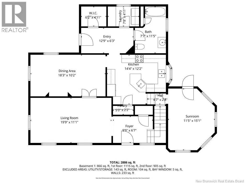
Room Layout

Bedroom
Second level
10'7'' x 9'2''
Bedroom
Second level
10'7'' x 11'5''
Bedroom
Second level
9'9'' x 8'10''
Primary Bedroom
Second level
12'3'' x 20'9''
4pc Bathroom
Second level
8'11'' x 10'3''
Office
Second level
10'3'' x 12'1''
Sunroom
Main level
11'5'' x 15'1''
Living room
Main level
19'9'' x 11'1''
Pantry
Main level
5'0'' x 2'2''
Kitchen
Main level
14'4'' x 12'2''
Dining room
Main level
18'3'' x 10'2''
4pc Bathroom
Main level
7'7'' x 11'5''
Other
Main level
6'2'' x 4'11''
Laundry room
Main level
7'8'' x 4'11''
Foyer
Main level
12'9'' x 6'3''

Location

Learn more about this property
Listing provided by:
EXIT Realty Associates
MLS® number:
NB134087
Agent:
Nicole Leblanc
*Indicates required field
Name is required
Email is required
Please enter a valid phone number (e.g., 416-111-1111).