104 Francfort Crescent Unit# 104-2, Moncton, New Brunswick E1G 5W6

Listed for:
$525,000
4 beds
4 baths
Listed 179 days ago
House for rent: 104 Francfort Crescent Unit# 104-2, Moncton, New Brunswick E1G 5W6

View all 17 photos

About

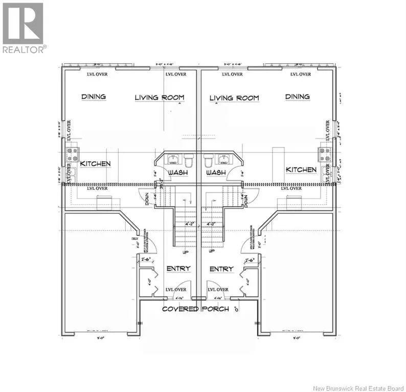
From Evergreen Dr - Turn onto Hunterwood St, then left onto Francfort Cr. Under construction, lot currently has foundation. No sign at the moment. Discover the perfect blend of modern living and investment opportunity with this brand-new semi-detached home, currently under construction in one of Moncton Norths most sought-after neighbourhoods. Ideal for homeowners, investors, or those accommodating extended family, this thoughtfully designed property offers exceptional flexibility and value. The fully finished walkout basement features a bright one-bedroom layout complete with a full kitchen, spacious great room, private laundry, and its own exterior entrancean excellent option for an in-law accommodation or rental - a great mortgage helper. The main level showcases an open-concept design perfect for entertaining, with a stylish kitchen, generous living and dining areas, and a convenient half bath. Upstairs, youll find three well-appointed bedrooms, including a spacious primary suite with a walk-in closet and private ensuite. A full family bathroom and second-floor laundry complete this level. Additional highlights include a single-car garage, energy-efficient construction, new home warranty, and a quiet, family-friendly location close to schools, parks, and all major amenities. (Right unit. Salesperson related to seller. Home is currently under construction; listing photos reflect the current stage of progress). (id:27476)

Property Highlights

MLS® Number
NB124475
Type
Single Family
Ownership Type
Freehold
Land Size
359 m2

Building

Building Type
House
Storeys
2.00
Square Footage
2347 sqft
Bathrooms Total
4
Bedrooms Above Ground
3
Bedrooms Total
4
Exterior Finish
Vinyl
Fireplace Present
No
Basement Type
Full (Finished)
Basement Features
Walk out
Building Heating Type
Baseboard heaters, Heat Pump
Heating Fuel
Electric
Building Cooling Type
Air Conditioned, Heat Pump

Utilities

Water
Municipal water
Utility Sewer
Municipal sewage system

Room Layout

Primary Bedroom
Second level
13'0'' x 14'4''
Bedroom
Second level
10'3'' x 11'0''
Bedroom
Second level
13'2'' x 12'0''
Bedroom
Basement
11'6'' x 11'6''
Utility room
Basement
4'10'' x 10'0''
Great room
Basement
23'0'' x 11'6''
Dining room
Main level
10'5'' x 10'0''
Kitchen
Main level
13'8'' x 15'8''
Living room
Main level
14'4'' x 13'0''

Location

Learn more about this property
Listing provided by:
EXIT Realty Associates
MLS® number:
NB124475
Agent:
Cassidy Hopper
*Indicates required field
Name is required
Email is required
Please enter a valid phone number (e.g., 416-111-1111).