240 Maccoun Street, Moncton, New Brunswick E1K 0A1

Listed for:
$316,900
3 beds
2 baths
Listed 104 days ago
House for rent: 240 Maccoun Street, Moncton, New Brunswick E1K 0A1

View all 4 photos

Learn more about this property
Listing provided by:
Creativ Realty
MLS® number:
NB127270
Agent:
Janick Cormier
*Indicates required field
Name is required
Email is required
Please enter a valid phone number (e.g., 416-111-1111).

About

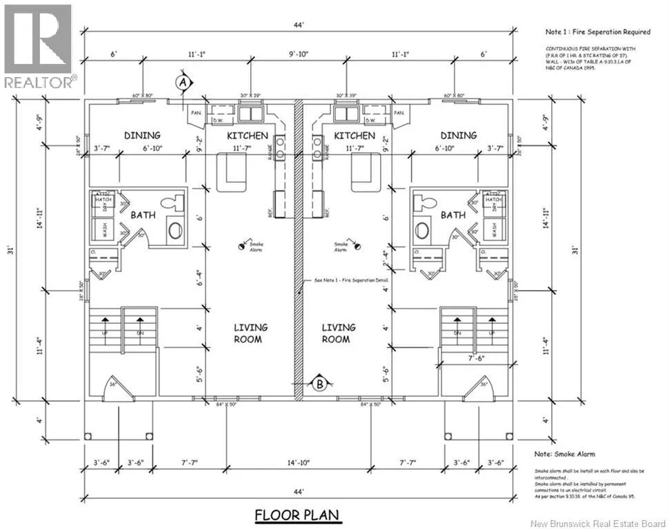
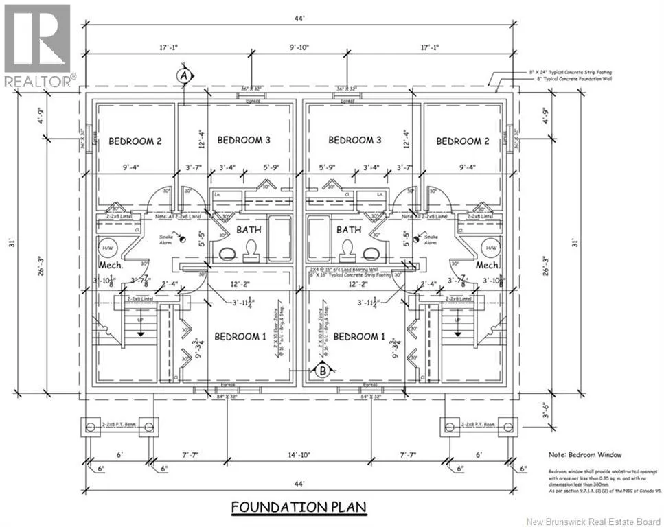
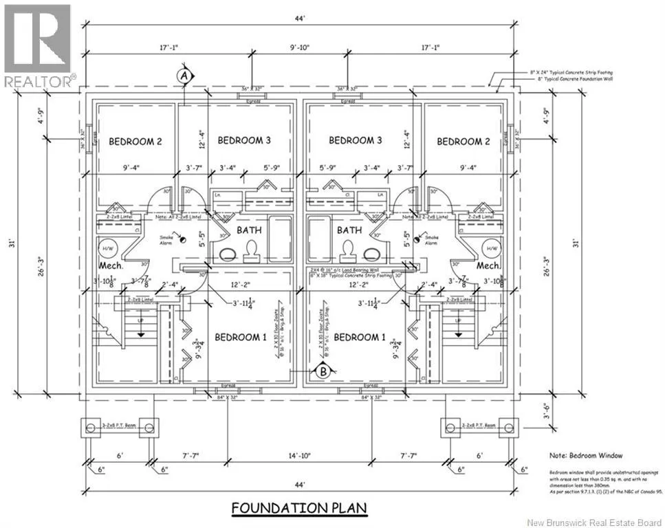
From Macintosh Blvd turn onto MacCoun street. TO BE COMPLETED BY MID DECEMBER 2025! Located in the Sterling Meadows subdivision off of Shediac Road, and close to the Trans-Canada Highway and Harrisville Blvd. Kitchen appliances are included in the purchase price. A paved driveway, topsoil and seed to be included but will hold no warranty. The LUX New Home warranty is included in the purchase price. *Floor plans are sample only, exterior finishes, colours and materials are subject to change* (id:27476)

Property Highlights

MLS® Number
NB127270
Type
Single Family
Ownership Type
Freehold
Land Size
361 m2

Building

Building Type
House
Storeys
1.00
Square Footage
1364 sqft
Bathrooms Total
2
Bedrooms Total
3
Exterior Finish
Vinyl
Fireplace Present
No
Basement Type
Basement Features
Building Heating Type
Baseboard heaters, Heat Pump
Heating Fuel
Electric
Building Cooling Type
Heat Pump

Utilities

Water
Municipal water
Utility Sewer
Municipal sewage system

Location