5 Leighfield Drive, Quispamsis, New Brunswick E2S 0E3

Listed for:
$685,000
3 beds
2 baths
Listed 46 days ago
House for rent: 5 Leighfield Drive, Quispamsis, New Brunswick E2S 0E3

View all 31 photos

About

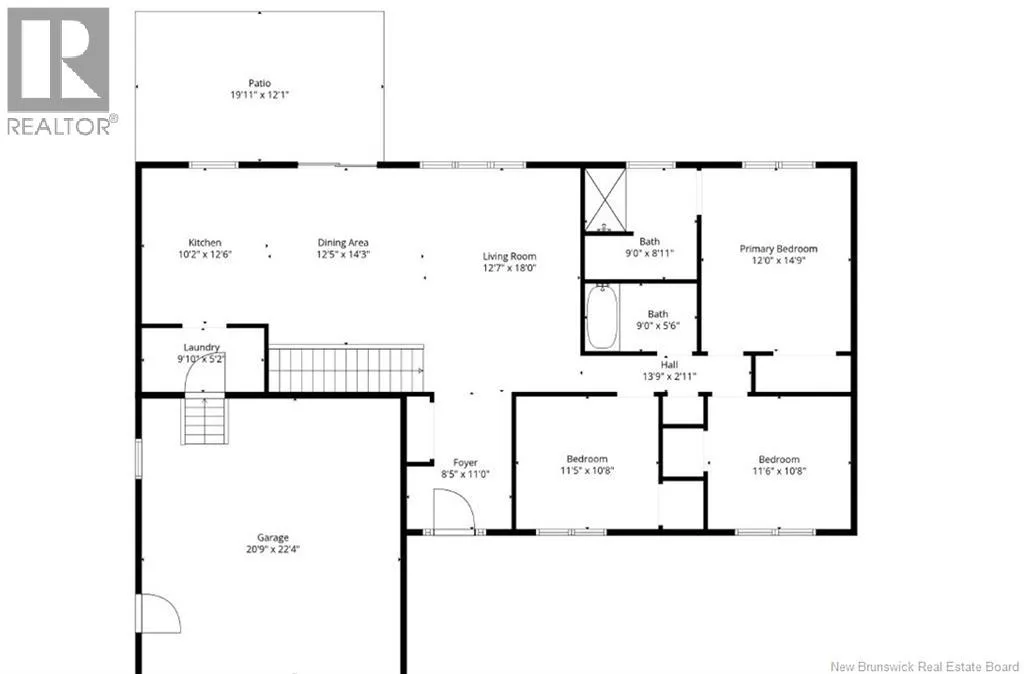
From New Brunswick 1 Highway to St. Martins Road/ NB 111 exit toward airport. Take NB-860 exit French Village Road, turn left on to French Village Road. Follow to Leighfield Drive. Property located at the corner of Leighfield Drive and French Village Road. Driveway off of Leighfield Dr. New Construction. Some Photos have been Virtually Staged and are only meant to be representative of the final product. This three-bedroom, two-bathroom bungalow-style home is located in one of Southern New Brunswick's most desirable communities. 1505 sq. ft. of finished living space on a partially tree'd 1 acre corner lot. This is open concept living at its finest. Enter through an inviting foyer to the great room, which features 12' vaulted ceilings, hardwood flooring and patio doors leading out to the 12'x20' covered deck, plenty of space for dining, entertaining and everyday life. A modern, sleek kitchen design with quartz countertops and a butcher block island sits adjacent to a main floor laundry room. When the day is over retreat to comfort in your primary suite, with ensuite bathroom featuring a custom tiled shower. The main level has two additional bedrooms and a second full bath, perfect for the kids or guests. Cat6E network cable throughout the home will make setting up a home office a piece of cake. The basement offers rough-in plumbing for a third bathroom and large egress windows which will make adding another bedroom or in-law suite easy and convenient. Each level features owned ductless heat pump ensuring your living space is always comfortable and inviting. Located just minutes from the highway, recreation, schools, walking trails and amenities, living your best East Coast life is easy and convenient. Atlantic Home Warranty included (id:27476)

Property Highlights

MLS® Number
NB131270
Type
Single Family
Ownership Type
Freehold
Land Size
48136 sqft

Building

Building Type
House
Square Footage
1505 sqft
Bathrooms Total
2
Bedrooms Above Ground
3
Bedrooms Total
3
Amenities
Recreation Nearby
Exterior Finish
Vinyl
Fireplace Present
No
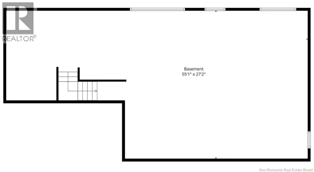
Basement Type
Full (Unfinished)
Basement Features
Building Heating Type
Baseboard heaters, Heat Pump
Heating Fuel
Building Cooling Type
Heat Pump

Utilities

Water
Drilled Well, Well

Room Layout

Foyer
Main level
11'0'' x 8'5''
3pc Bathroom
Main level
X
3pc Ensuite bath
Main level
X
Primary Bedroom
Main level
12'0'' x 14'9''
Bedroom
Main level
11'6'' x 10'8''
Bedroom
Main level
11'5'' x 10'8''
Laundry room
Main level
9'10'' x 5'2''
Great room
Main level
18'0'' x 12'7''
Dining room
Main level
12'5'' x 14'3''
Kitchen
Main level
10'2'' x 12'6''

Location

Learn more about this property
Listing provided by:
Royal LePage Atlantic
MLS® number:
NB131270
Agent:
Joe Suppa
*Indicates required field
Name is required
Email is required
Please enter a valid phone number (e.g., 416-111-1111).