16 Flagstone Court, Riverview, New Brunswick E1B 0R8

Listed for:
$599,900
4 beds
3 baths
Listed 19 days ago
House for rent: 16 Flagstone Court, Riverview, New Brunswick E1B 0R8

View all 17 photos

About

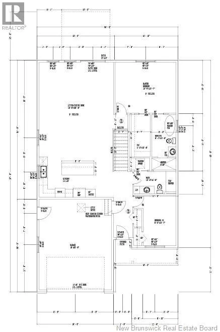
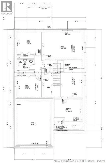
From Gunningsville Blvd., turn onto Pinewood then left onto Flagstone. Welcome to your dream home in the upscale Fairways subdivision of Riverview, where luxury living meets the tranquility of a golf course community. This property is the epitome of modern elegance. Main Level: Boasting 9-foot ceilings and a spacious foyer, the main level immediately welcomes you with an open and airy ambiance. The open-concept kitchen and living room area are perfect for entertaining. The kitchen features a beautiful quartz countertop on the island, making it a focal point for gatherings and culinary delights. The main floor offers a spacious primary bedroom suite complete with an ensuite bathroom and a walk-in closet, providing the perfect retreat at the end of the day. A second well-appointed bedroom, a 4-pc family bathroom and main floor laundry complete this level. The basement boasts a large family room, 2 additional bedrooms and a full bathroom making this home perfect for families of any size! Expected completion date end of March 2026. PAVING AND LANDSCAPING (TOP SOIL AND HYDROSEED IS INCLUDED and is done as a favor and has no warranty). HST rebate to the builder. NB Power rebate to the builder. 8 year LUX home warranty is included. SELLER is a licensed real estate salesperson in the province of NB. (id:27476)

Property Highlights

MLS® Number
NB132921
Type
Single Family
Ownership Type
Freehold
Land Size
577 m2

Building

Building Type
House
Storeys
1.00
Square Footage
2558 sqft
Bathrooms Total
3
Bedrooms Above Ground
2
Bedrooms Total
4
Exterior Finish
Stone, Vinyl
Fireplace Present
No
Basement Type
Full
Basement Features
Building Heating Type
Baseboard heaters, Heat Pump
Heating Fuel
Electric
Building Cooling Type
Heat Pump

Utilities

Water
Municipal water
Utility Sewer
Municipal sewage system

Room Layout

Bedroom
Basement
12'0'' x 10'8''
4pc Bathroom
Basement
8'4'' x 5'4''
Bedroom
Basement
12'0'' x 10'8''
Storage
Basement
X
Utility room
Basement
14'2'' x 11'8''
Family room
Basement
X
Other
Main level
5'3'' x 10'6''
Bedroom
Main level
8'2'' x 12'7''
Kitchen
Main level
14'0'' x 10'0''
Dining room
Main level
11'9'' x 18'6''
Living room
Main level
11'9'' x 18'6''
4pc Bathroom
Main level
10'6'' x 5'6''
Primary Bedroom
Main level
15'2'' x 12'7''
Foyer
Main level
X

Location

Learn more about this property
Listing provided by:
Keller Williams Capital Realty
MLS® number:
NB132921
Agent:
Justin Mattatall
*Indicates required field
Name is required
Email is required
Please enter a valid phone number (e.g., 416-111-1111).