Lot 00-1 Berkley Road, Riverview, New Brunswick E1B 2L4

Listed for:
$1,200,000
0 beds
0 baths
Listed 22 days ago
Fourplex for rent: Lot 00-1 Berkley Road, Riverview, New Brunswick E1B 2L4

View all 3 photos

About

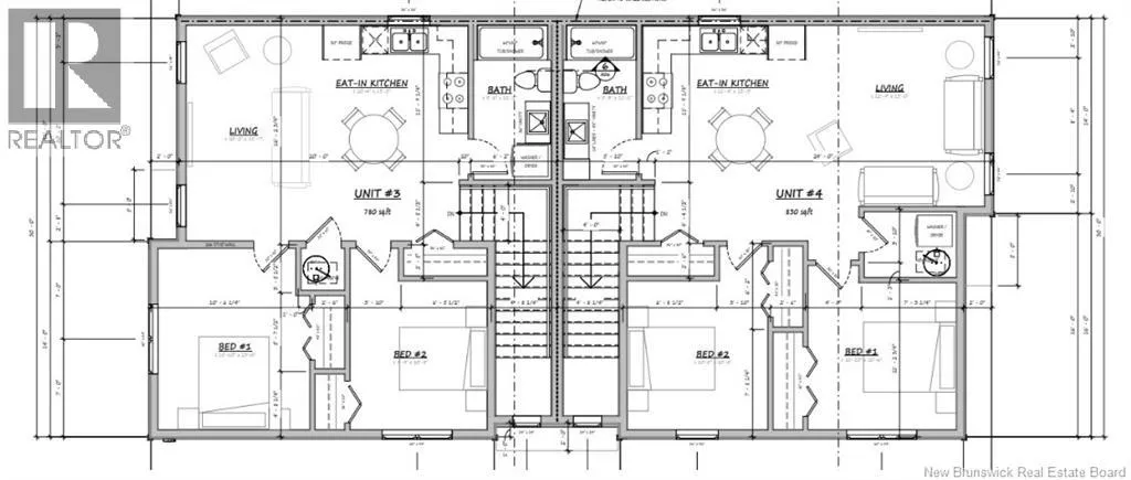
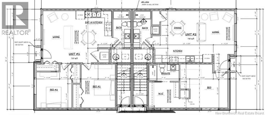
From Pine Glen road turn onto Berkley. Welcome to an exceptional investment opportunity in the heart of Riverview. This brand new fourplex, scheduled for completion in Fall 2026, offers modern design, functional layouts, and a highly desirable location within walking distance to all levels of schooling. The main level features two thoughtfully designed units. The first is a spacious 780 sq. ft. one-bedroom apartment boasting an open-concept kitchen, dining, and living area. The primary bedroom includes a private ensuite and a large walk-in closet, while a second full bathroom with an integrated laundry area adds convenience and functionality. Also located on the main floor is a well-appointed two-bedroom unit offering an open-concept living space ideal for comfortable everyday living. This unit includes a full main bathroom with laundry hookups and two generously sized bedrooms. Upstairs, the property offers two additional two-bedroom apartments. Each unit features bright open-concept living areas designed for modern lifestyles, along with a full main bathroom equipped with laundry hookups for added tenant convenience. With four self-contained units, practical layouts, and a location close to schools, amenities, and daily essentials, this new construction fourplex presents an excellent opportunity for investors looking to expand their portfolio with a quality, low-maintenance property in one of Riverviews most desirable areas. The Seller is a licensed REALTOR® in the province of New Brunswick. (id:27476)

Property Highlights

MLS® Number
NB135162
Type
Multi-family
Ownership Type
Freehold
Land Size
966 m2

Building

Building Type
Fourplex
Storeys
2.00
Square Footage
3600 sqft
Exterior Finish
Stone, Vinyl
Fireplace Present
No
Basement Type
Basement Features
Building Heating Type
Baseboard heaters, Heat Pump
Heating Fuel
Electric
Building Cooling Type
Heat Pump

Utilities

Water
Municipal water
Utility Sewer
Municipal sewage system

Location

Learn more about this property
Listing provided by:
Keller Williams Capital Realty
MLS® number:
NB135162
Agent:
Justin Mattatall
*Indicates required field
Name is required
Email is required
Please enter a valid phone number (e.g., 416-111-1111).