Lot 34 Berry Drive, Rusagonis, New Brunswick E3B 0V9

Listed for:
$579,900
4 beds
3 baths
Listed 30 days ago
Lot 34 Berry Drive, Rusagonis, New Brunswick E3B 0V9

View all 25 photos

Learn more about this property
Listing provided by:
REMAX East Coast Elite Realty
MLS® number:
NB129866
Agent:
Sarah Justason
*Indicates required field
Name is required
Email is required
Please enter a valid phone number (e.g., 416-111-1111).

About

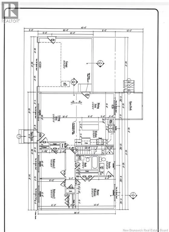
Wilsey Road to Berry Drive New Construction Bungalow in Rusagonis Move In for Christmas! Perfectly set on private lot in Rusagonis. Step inside to inviting open-concept main floor featuring a bright living area with ductless heat pump for year-round comfort. Fabulous kitchen showcases rich wood-stained cabinetry, black-accented island, and elegant quartz countertops the perfect blend of style and function for both everyday living and entertaining. Main level includes three bedrooms and two full bathrooms, including a spacious primary suite with ensuite bath. Downstairs, partially finished lower level expands living space with family room, 4th bedroom, 3rd full bathroom, laundry room, and potential for 5th bedroom or flex space ideal for guests, hobbies, or a home office. Enjoy peace of mind with 7-year Lux New Home Warranty and thoughtful construction extras including eavestroughs, extra sprayed joists with foam and fire protection, and large back deck perfect for summer BBQs. Topsoil and seeding will be completed in spring for the front yard. Attached double garage adds everyday convenience and storage. Seller is a license REALTOR® in the Province of New Brunswick. Interior photos are sample photos for previous construction. Some modifications have been made. (id:27476)

Property Highlights

MLS® Number
NB129866
Type
Single Family
Ownership Type
Freehold
Land Size
4070 sqft

Building

Storeys
1.00
Square Footage
1836 sqft
Bathrooms Total
3
Bedrooms Above Ground
3
Bedrooms Total
4
Exterior Finish
Vinyl
Fireplace Present
No
Basement Type
Full (Partially finished)
Basement Features
Building Heating Type
Baseboard heaters, Heat Pump
Heating Fuel
Electric
Building Cooling Type
Heat Pump, Air exchanger

Utilities

Water
Well
Utility Sewer
Septic System

Room Layout

Bath (# pieces 1-6)
Basement
9'8'' x 5'4''
Bedroom
Basement
13'4'' x 12'7''
Family room
Basement
13'4'' x 19'1''
Bath (# pieces 1-6)
Main level
8'2'' x 5'2''
Bedroom
Main level
9'3'' x 10'6''
Bedroom
Main level
10'6'' x 11'0''
Ensuite
Main level
5'4'' x 10'10''
Primary Bedroom
Main level
13'10'' x 11'9''
Living room
Main level
15'6'' x 17'6''
Dining room
Main level
11'6'' x 9'3''
Kitchen
Main level
11'6'' x 9'6''

Location