638-640 Manawagonish Road, Saint John, New Brunswick E2M 3W5

Listed for:
$4,990,000
0 beds
0 baths
Listed 135 days ago
638-640 Manawagonish Road, Saint John, New Brunswick E2M 3W5

View all 47 photos

About

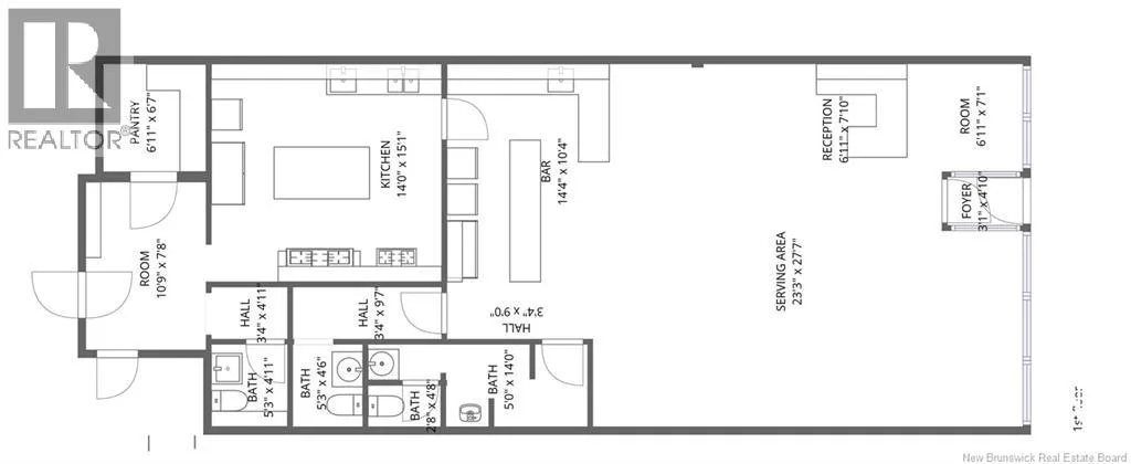
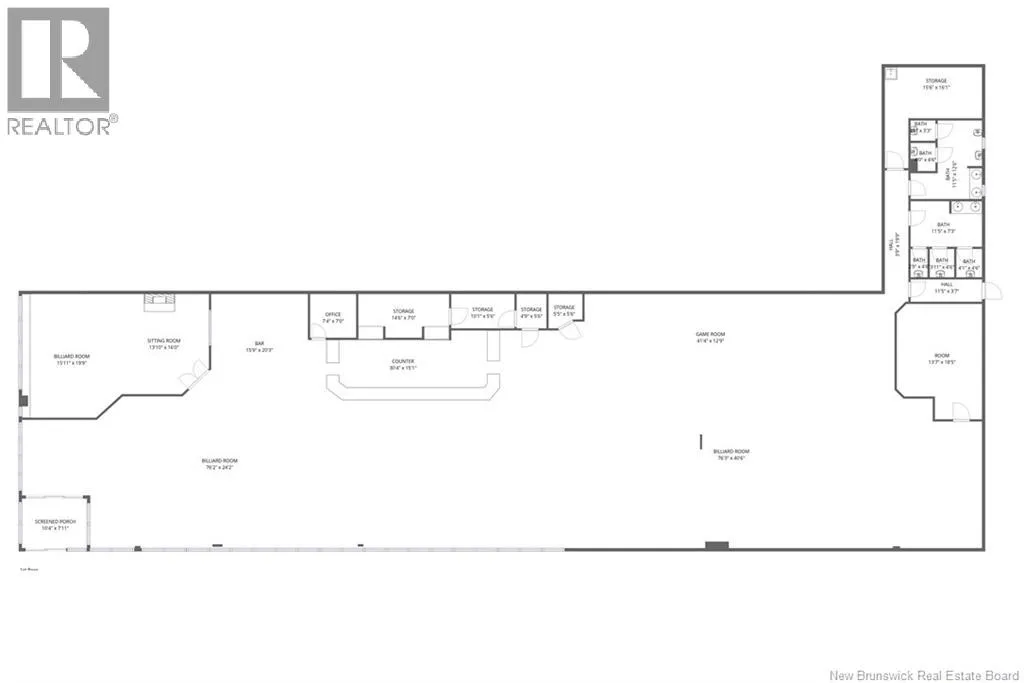
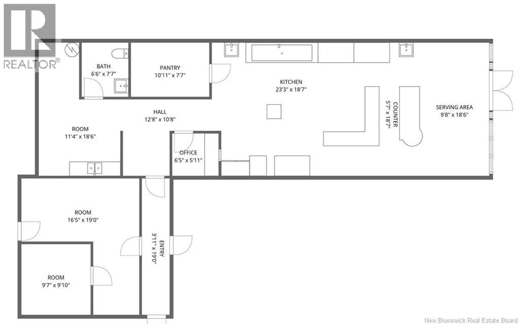
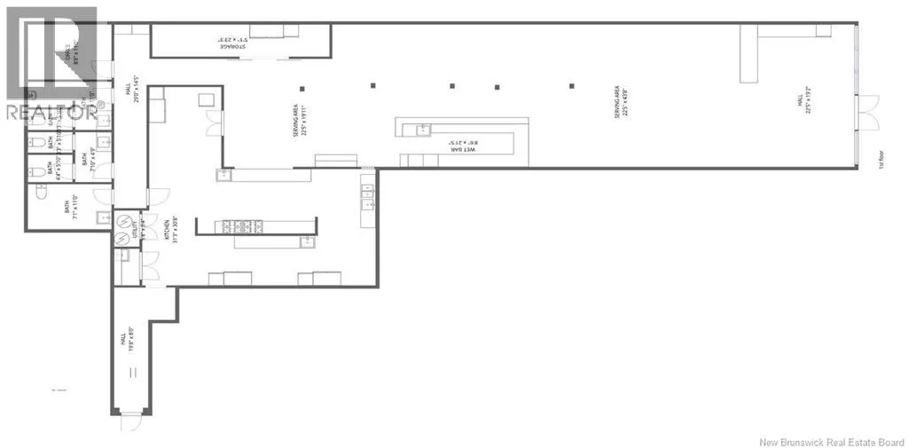
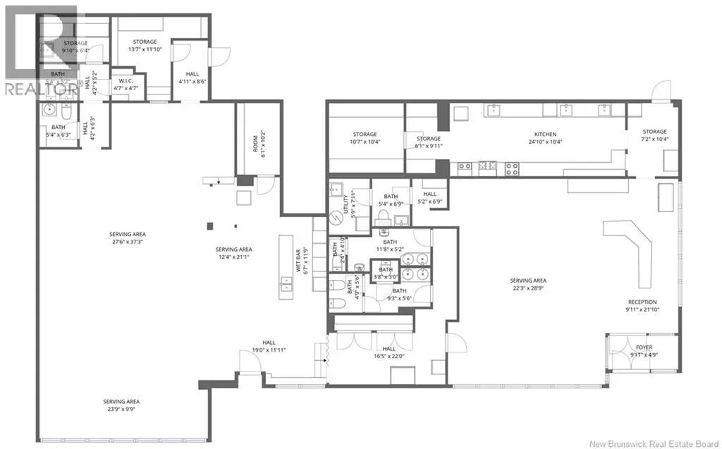
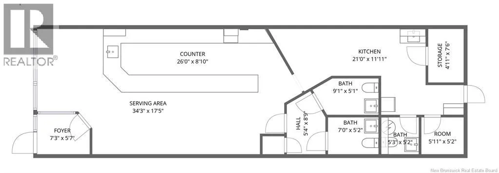
Follow Catherwood St, Right on Manawagonish. Exceptional opportunity to acquire a well-established, fully leased commercial plaza totaling just over 27,000 square feet. The property is home to 15 successful businesses, some of which have been operating at this location for over 30 years, reflecting long-term tenant stability and consistent performance. Ideally situated at a busy, high-visibility intersection on the rapidly growing west side, this plaza benefits from strong traffic counts, excellent exposure, and continued development in the surrounding area. Set on a generous 2.3-acre lot, the property offers ample on-site parking with 140+ spaces and three points of access from two major roads, allowing for smooth flow and easy access for patrons and tenants.  The building also features approximately 4800 square feet of undeveloped basement space, offering additional income potential with exterior access. (id:27476)

Property Highlights

MLS® Number
NB131528
Type
Other
Ownership Type
Freehold
Land Size
9242 m2

Building

Square Footage
27646 sqft
Amenities
Public Transit
Exterior Finish
Brick, Metal
Fireplace Present
No
Basement Type
Basement Features
Building Heating Type
Heat Pump
Heating Fuel
Electric, Natural gas
Building Cooling Type
Heat Pump

Location

Learn more about this property
Listing provided by:
Royal LePage Atlantic
MLS® number:
NB131528
Agent:
Gabrielle Pye
*Indicates required field
Name is required
Email is required
Please enter a valid phone number (e.g., 416-111-1111).