208-210 King St East, Saint John, New Brunswick E2L 1H3

Listed for:
$599,000
0 beds
0 baths
Listed 5 days ago
Duplex for rent: 208-210 King St East, Saint John, New Brunswick E2L 1H3

View all 50 photos

About

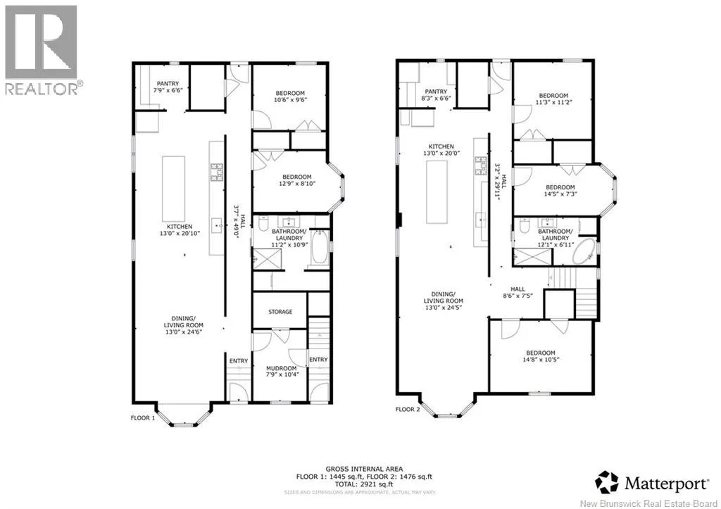
Uptown - King St East, on the block between Wentworth and Pitt St Fully renovated in 20202021, this impressive up/down duplex offers an excellent opportunity for owner-occupancy with in-family living or as a solid investment property. The extensive renovation was completed inside and out, including new doors, windows, roof, front steps, back decks, full rewiring, plumbing, insulation, redesigned floor plan, and all new flooring, walls, kitchens, and bathrooms. The current owners have continued to enhance the property with additional insulation under the main level floor, proper crawl space access, a storage shed, landscaping, and the creation of a versatile flex room on the main levelideal as a mudroom, bedroom, office, or den for either unit. Both units feature spacious, well-designed layouts with large open-concept kitchen, dining, and living areas, separate pantry, and utility rooms, and generous 4-piece bathrooms with in-unit laundry. The main level unit offers 2 bedrooms, while the upper unit includes 3 bedroomsperfect for a variety of living arrangements. Each unit has a full appliance package, ductless heat pump, air exchanger, owned water heater, and its own 100-amp breaker panel. Enjoy private back decks with access to the backyard space for each unit. Ideally located within walking distance to schools, restaurants, shops, entertainment, and all Uptown amenities. Situated within a Heritage Conservation Area, adding character and long-term appeal. A rare, move-in ready opportunity in a sought-after location. (id:27476)

Property Highlights

MLS® Number
NB135833
Type
Multi-family
Ownership Type
Freehold
Land Size
4004 sqft

Building

Building Type
Duplex
Storeys
2.00
Square Footage
2921 sqft
Exterior Finish
Cedar shingles, Wood shingles, Wood
Fireplace Present
No
Basement Type
Crawl space
Basement Features
Building Heating Type
Baseboard heaters, Heat Pump
Heating Fuel
Electric
Building Cooling Type
Heat Pump

Utilities

Water
Municipal water
Utility Sewer
Municipal sewage system

Location

Learn more about this property
Listing provided by:
SUTTON GROUP AURORA REALTY LTD.
MLS® number:
NB135833
Agent:
Shirley Roach-albert
*Indicates required field
Name is required
Email is required
Please enter a valid phone number (e.g., 416-111-1111).