31 Deepwood Avenue, Salisbury, New Brunswick E4J 2B3

Listed for:
$399,900
4 beds
3 baths
Listed 1 day ago
House for rent: 31 Deepwood Avenue, Salisbury, New Brunswick E4J 2B3

View all 7 photos

Learn more about this property
Listing provided by:
EXIT Realty Associates
MLS® number:
NB125556
Agent:
Cassidy Hopper
*Indicates required field
Name is required
Email is required
Please enter a valid phone number (e.g., 416-111-1111).

About

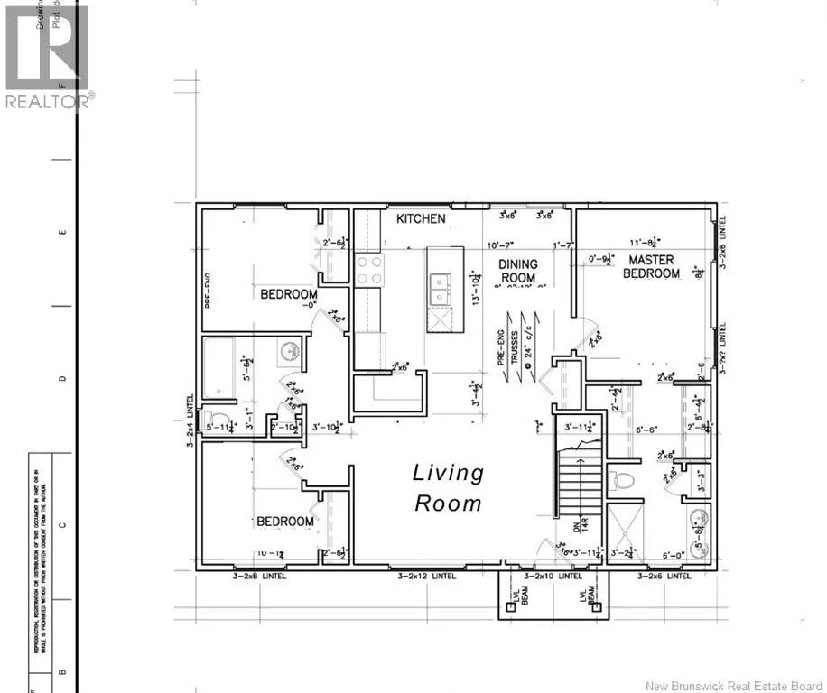
Turn on MacWilliam Rd. from Fredericton Rd. - MacWilliam Rd. to Miller Ave. - Miller Ave. to Deepwood Ave. - The property is a corner lot on the right. Currently under construction with an estimated completion of mid December, this beautifully designed bungalow is situated on a desirable corner lot and offers modern living in a spacious, open-concept layout with large windows throughout, filling the home with natural light. - The main floor features a bright white kitchen with a warm wood island, a walk-in pantry, and patio doors off the dining area leading to the backyardperfect for indoor-outdoor entertaining. The large primary bedroom includes a walk-in closet and a private ensuite, while two additional bedrooms and a full bath are located on the opposite side of the home, providing separation and privacy. The basement is partially finished, offering a large family room, a fourth bedroom, and a third full bathroom that includes the laundry area ideal for guests, a home office, or extended living space. This home combines comfort, style, and functionality in a great location. There's still time to choose some finishesdont miss out! *Seller is a licensed REALTOR® in New Brunswick*Sample Pictures - Layout Is Reversed! (id:27476)

Property Highlights

MLS® Number
NB125556
Type
Single Family
Ownership Type
Freehold
Land Size
804 m2

Building

Building Type
House
Storeys
1.00
Square Footage
2010 sqft
Bathrooms Total
3
Bedrooms Above Ground
3
Bedrooms Total
4
Exterior Finish
Vinyl
Fireplace Present
No
Basement Type
Basement Features
Building Heating Type
Baseboard heaters, Heat Pump
Heating Fuel
Building Cooling Type
Air Conditioned, Heat Pump, Air exchanger

Utilities

Water
Drilled Well, Well
Utility Sewer
Municipal sewage system

Room Layout

Bedroom
Main level
11'0'' x 9'6''
Bedroom
Main level
10'0'' x 12'0''
Primary Bedroom
Main level
14'0'' x 11'0''
Dining room
Main level
13'9'' x 8'9''
Kitchen
Main level
14'2'' x 8'11''
Living room
Main level
17'1'' x 12'0''

Location