3 Adams Street, Tide Head, New Brunswick E3N 4K3

Listed for:
$289,000
3 beds
1 baths
Listed 41 days ago
House for rent: 3 Adams Street, Tide Head, New Brunswick E3N 4K3

View all 27 photos

About

On route 134, from Campbellton, ride for about 7 km, turn left on Mountain street, then turn right immediately on Adams Street and the property is the second one on your right. Welcome to 3 Adams Street, Tide Head. This beautiful property is situated in a sought-after, quiet neighbourhood.. This property is great to raise a family, close to a park, an outdoor rink, a soccer field and is also close to ATV and snowmobile trails. The main floor consists of an eat-in kitchen, a living room and a family room. The second floor has a bathroom, a master bedroom and two additional bedrooms. The basement offers a large recreation room, a laundry room, a storage room and a utility area. The property is well landscaped, has a paved driveway and two mini-split unit. (id:27476)

Property Highlights

MLS® Number
NB134571
Type
Single Family
Ownership Type
Freehold
Land Size
929 m2

Building

Building Type
House
Storeys
1.00
Square Footage
1501 sqft
Bathrooms Total
1
Bedrooms Above Ground
3
Bedrooms Total
3
Exterior Finish
Brick, Vinyl
Fireplace Present
No
Basement Type
Crawl space, Full
Basement Features
Building Heating Type
Baseboard heaters, Heat Pump
Heating Fuel
Electric
Building Cooling Type
Heat Pump

Utilities

Water
Municipal water
Utility Sewer
Municipal sewage system

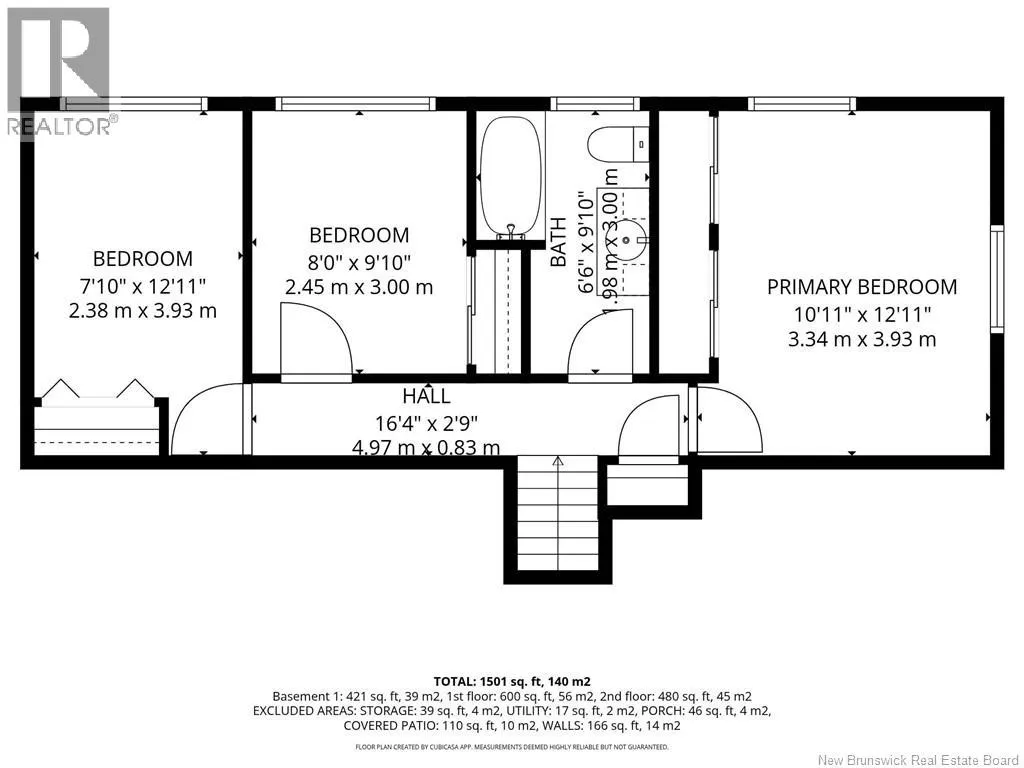
Room Layout

Storage
Second level
X
Laundry room
Second level
X
Recreation room
Second level
8'9'' x 4'5''
Bath (# pieces 1-6)
Second level
10'11'' x 12'11''
Bedroom
Second level
7'10'' x 12'11''
Bedroom
Second level
8'0'' x 9'10''
Bedroom
Basement
10'11'' x 12'11''
Family room
Main level
8'1'' x 12'8''
Living room
Main level
17'8'' x 13'8''
Dining room
Main level
11'1'' x 8'3''
Kitchen
Main level
11'1'' x 5'4''

Location

Learn more about this property
Listing provided by:
RE/MAX Prestige Realty
MLS® number:
NB134571
Agent:
Yves Castonguay
*Indicates required field
Name is required
Email is required
Please enter a valid phone number (e.g., 416-111-1111).