8 Sebastian Drive, Bonavista, Newfoundland & Labrador A0C 1B0

Listed for:
$279,900
2 beds
2 baths
Listed 32 days ago
House for rent: 8 Sebastian Drive, Bonavista, Newfoundland & Labrador A0C 1B0

View all 6 photos

Learn more about this property
Listing provided by:
RE/MAX Eastern Edge Realty Ltd. Clarenville
MLS® number:
1284108
Agent:
Grant Vardy
*Indicates required field
Name is required
Email is required
Please enter a valid phone number (e.g., 416-111-1111).

About

New home construction in beautiful Bonavista! This gorgeous bungalow boasts fantastic ocean views and will be completed with 2 bedrooms and 2 full baths - all on one level. The modern open concept design provides a spacious living area and will be finished with great features including a 3 piece ensuite and large walk in closet. Currently, while the home is under construction, the new buyer can enjoy a generous allowance package and be able to choose all of the finishings from kitchen cabinets and counter tops to flooring and paint colors. The home will also come with the the peace of mind of a 7 year Atlantic new home warranty. (id:27476)

Property Highlights

MLS® Number
1284108
Type
Single Family
Ownership Type
Freehold
Land Size
.25 Acre|7,251 - 10,889 sqft

Building

Building Type
House
Storeys
1.00
Square Footage
1150 sqft
Bathrooms Total
2
Bedrooms Above Ground
2
Bedrooms Total
2
Amenities
Recreation, Shopping
Exterior Finish
Vinyl siding
Fireplace Present
No
Basement Type
Basement Features
Building Heating Type
Baseboard heaters
Heating Fuel
Electric
Building Cooling Type

Utilities

Water
Municipal water
Utility Sewer
Municipal sewage system

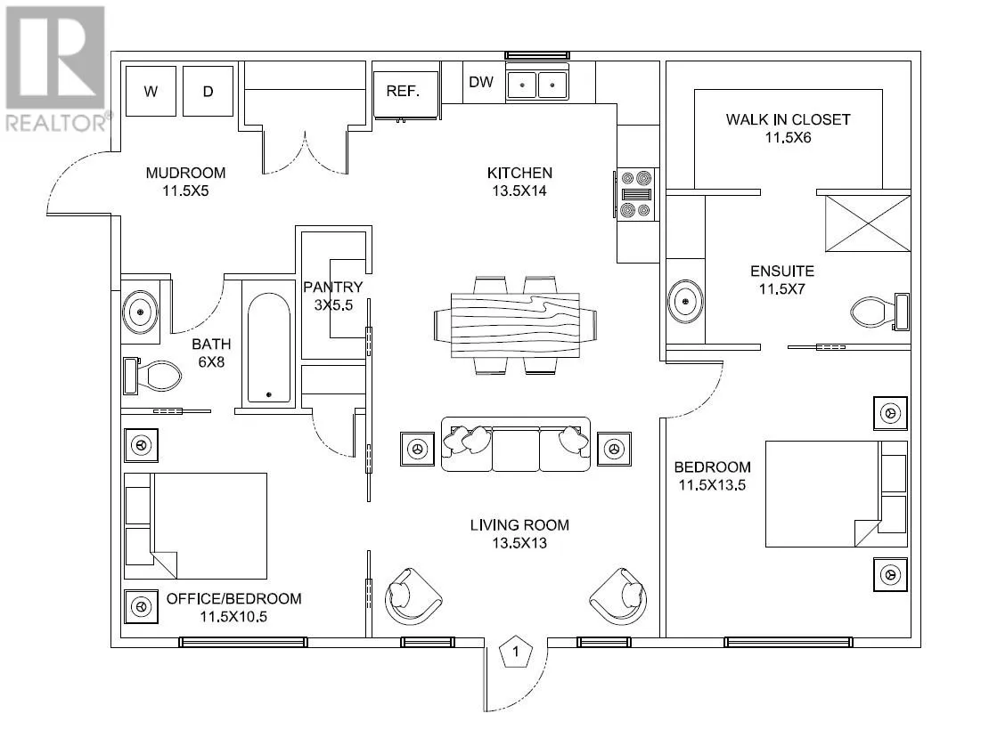
Room Layout

Laundry room
Main level
11.5 x 5
Bedroom
Main level
11.5 x 10.5
Bath (# pieces 1-6)
Main level
8 x 6
Ensuite
Main level
11.5 x 7
Bedroom
Main level
11.5 x 13.5
Kitchen
Main level
13.5 x 14
Living room
Main level
13.5 x 13

Location