377 Pickersgill Boulevard, Centreville, Newfoundland & Labrador A0G 4P0

Listed for:
$199,000
0 beds
0 baths
Listed 201 days ago
Other for rent: 377 Pickersgill Boulevard, Centreville, Newfoundland & Labrador A0G 4P0

View all 25 photos

About

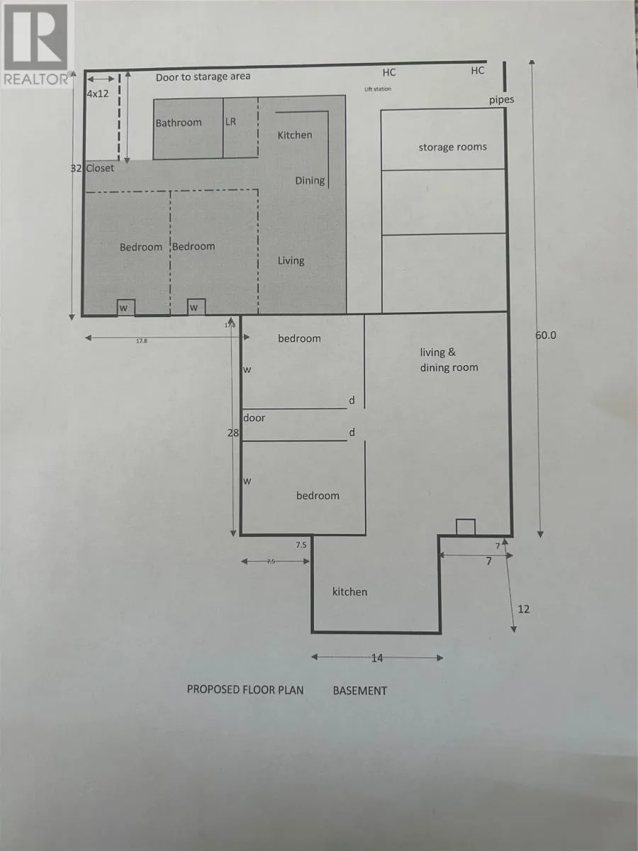
For sale: a nightclub that caters to events such as birthday parties, family gatherings, anniversaries and some weddings in the picturesque town of Centerville. This well-cared-for property is available at an affordable price. If you are considering a move to Newfoundland, this could be a great business opportunity for you. Or if you are from Newfoundland and looking for a business opportunity this business could also be for you. With a newly constructed two-bedroom apartment on the lower level you have living accommodations as well as a business. There is a set of drawings to accommodate five (4 +1) apartments if a buyer would prefer to convert the building into apartments. The building has had many upgrades in the last five years including metal roof, two heat pumps, new furnace & oil tank, new lighting, 3 bathrooms redone, some electrical upgrades, new carpet, new tables & chairs, 2-bedroom apartment constructed, etc etc. This could be the opportunity that you have been looking for. (id:27476)

Property Highlights

MLS® Number
1285817
Type
Retail
Ownership Type
Freehold
Land Size
100 X 150 X100 X 138|under 1/2 acre

Building

Building Type
Other
Storeys
2.00
Square Footage
4908 sqft
Amenities
Balconies, Living Accommodation Shopping
Fireplace Present
No
Basement Type
Basement Features
Building Heating Type
Heat Pump
Heating Fuel
Oil, Geo Thermal
Building Cooling Type

Location

Learn more about this property
Listing provided by:
EXIT Realty Aspire
MLS® number:
1285817
Agent:
Dorothy Newman
*Indicates required field
Name is required
Email is required
Please enter a valid phone number (e.g., 416-111-1111).