682 Conception Bay Highway, Conception Bay South, Newfoundland & Labrador A1X 3G5

Listed for:
$279,900
0 beds
0 baths
Listed 37 days ago
Other for rent: 682 Conception Bay Highway, Conception Bay South, Newfoundland & Labrador A1X 3G5

View all 19 photos

About

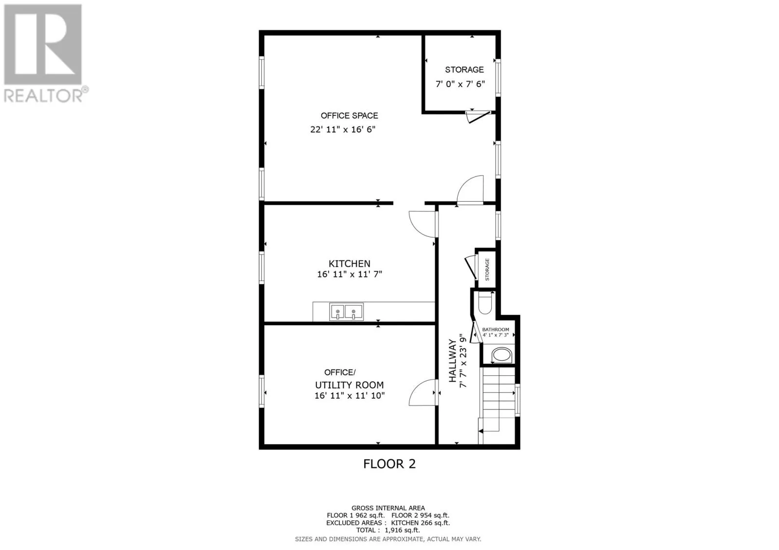
Excellent opportunity to own a versatile commercial property located on the busy Conception Bay Highway in Kelligrews. This building features three self-contained commercial units, each separately metered for utilities and each have washroom facilities. Previously used as a restaurant, retail store, and professional office, the layout allows for a wide range of commercial uses including food service, retail, office, or wellness operations. The property offers high visibility and signage exposure, on-site parking, and convenient access for customers and deliveries. Located in a thriving commercial corridor surrounded by established businesses and growing residential neighbourhoods, this property benefits from steady local and commuter traffic. Whether you’re seeking an investment property with multiple income streams or a strategic location for your business, 682 Conception Bay Highway offers outstanding potential in one of Conception Bay South’s most active commercial areas. Building and any of it's included contents is being sold in ""as is"" condition. (id:27476)

Property Highlights

MLS® Number
1293613
Type
Business
Ownership Type
Freehold
Land Size
65 x 78|4,051 - 7,250 sqft

Building

Building Type
Other
Fireplace Present
No
Basement Type
Basement Features
Building Heating Type
Heating Fuel
Electric
Building Cooling Type

Location

Learn more about this property
Listing provided by:
RE/MAX Infinity Realty Inc.
MLS® number:
1293613
Agent:
Teri - Lynn Jones
*Indicates required field
Name is required
Email is required
Please enter a valid phone number (e.g., 416-111-1111).