62 Hickory Place, Conception Bay South, Newfoundland & Labrador A1W 4Z3

Listed for:
$374,900
4 beds
4 baths
Listed 29 days ago
House for rent: 62 Hickory Place, Conception Bay South, Newfoundland & Labrador A1W 4Z3

View all 4 photos

About

Off Pocket Road, Off Anchorage Road Welcome to this well-maintained 2-storey duplex situated in the picturesque community of Conception Bay South. Offering a spacious layout across three levels, this home delivers comfort, functionality, and room to grow. The main floor features a bright living room, a convenient half bath, and a modern kitchen with direct access to the rear deck—perfect for relaxing or entertaining. Upstairs you’ll find a large primary bedroom complete with its own ensuite and walk-in closet, along with two additional well-sized bedrooms and a full bathroom. The undeveloped lower level presents a blank canvas for your future development of a rec room, bedroom, extra storage, gym etc. Outside, enjoy a paved driveway and a private rear deck overlooking the backyard. This property is a fantastic opportunity for first-time buyers or families looking for a move-in-ready home in a desirable location near schools, amenities, and beautiful coastal scenery. (id:27476)

Property Highlights

MLS® Number
1295281
Type
Single Family
Ownership Type
Freehold
Land Size
30 x 100|under 1/2 acre

Building

Building Type
House
Storeys
2.00
Square Footage
1989 sqft
Bathrooms Total
4
Bedrooms Above Ground
3
Bedrooms Total
4
Amenities
Recreation, Shopping
Exterior Finish
Vinyl siding
Fireplace Present
No
Basement Type
Basement Features
Building Heating Type
Heating Fuel
Electric
Building Cooling Type

Utilities

Water
Municipal water
Utility Sewer
Municipal sewage system

Room Layout

Bedroom
Second level
9.4 x 11
Bedroom
Second level
9.4 x 9.6
Bath (# pieces 1-6)
Second level
4 pc
Ensuite
Second level
4 pc
Primary Bedroom
Second level
12 x 13
Laundry room
Basement
Measurements not available
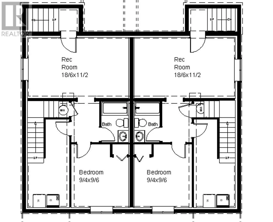
Bedroom
Basement
9.4 x 9.6
Bath (# pieces 1-6)
Basement
4 pc
Recreation room
Basement
18.6 x 11.2
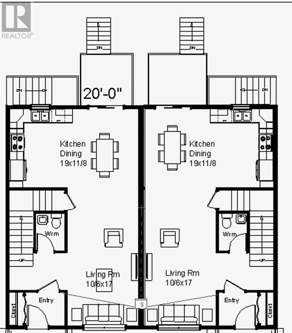
Bath (# pieces 1-6)
Main level
2 pc
Kitchen
Main level
19 x 11.8
Living room
Main level
10.6 x 17

Location

Learn more about this property
Listing provided by:
RE/MAX Realty Specialists
MLS® number:
1295281
Agent:
Brad Colbert
*Indicates required field
Name is required
Email is required
Please enter a valid phone number (e.g., 416-111-1111).