235 Pouch Cove Highway, Flatrock, Newfoundland & Labrador A1K 1C9

Listed for:
$1,300,000
0 beds
0 baths
Listed 198 days ago
Special Purpose for rent: 235 Pouch Cove Highway, Flatrock, Newfoundland & Labrador A1K 1C9

View all 18 photos

About

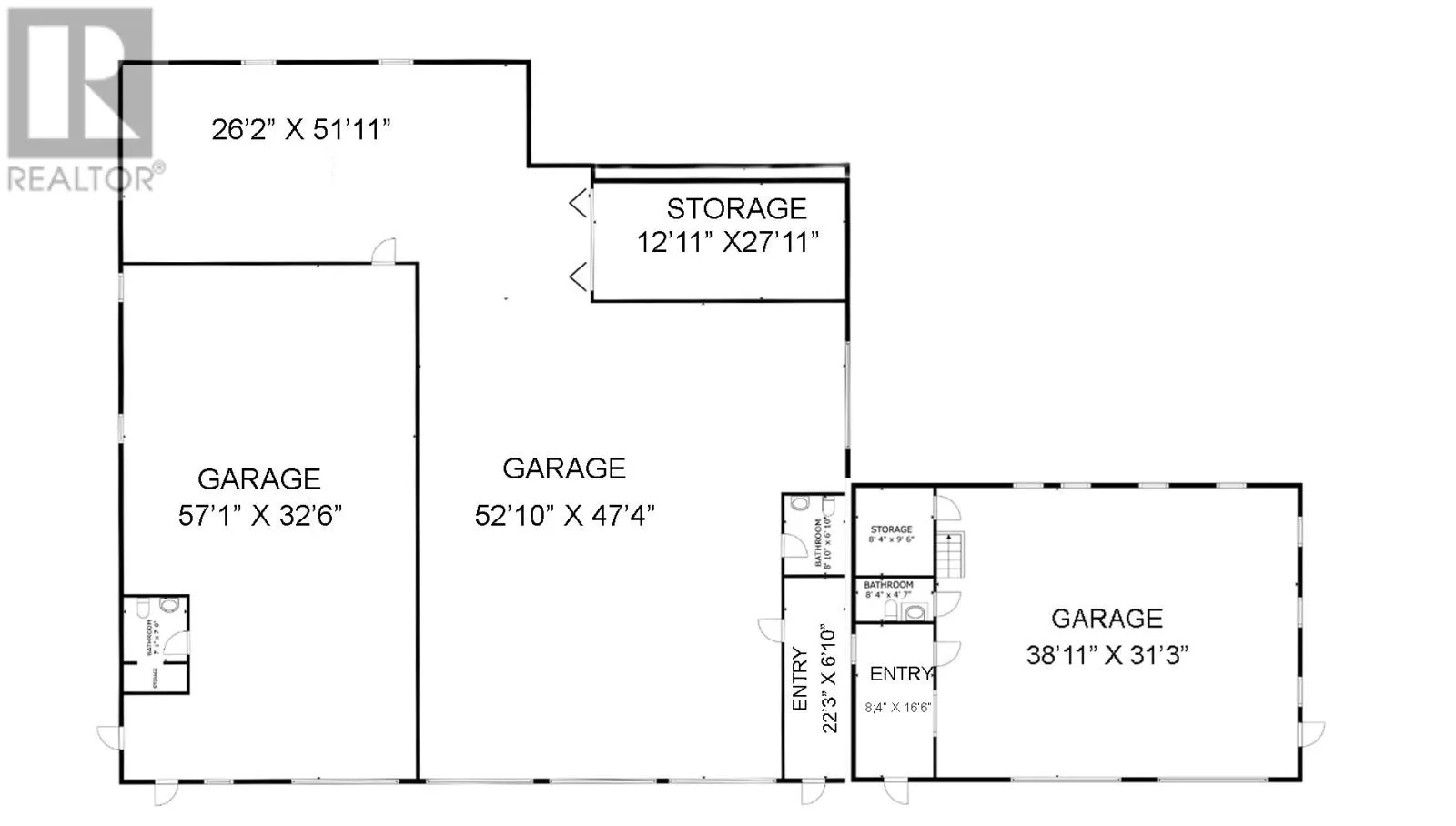
Rare opportunity to own 8,000 square feet of premium built commercial space just 10 minutes outside of St. John’s. Building exterior is complete with black metal siding and sits on a 0.92 acre lot with 204 feet of road frontage. Building is currently divided into three separate operating areas. The left-facing section was constructed in 2020 and consists of 6,000 square feet of space developed at grade. It features free span 14-foot ceilings, six overhead garage doors, spray foam insulation, all interior metal wall finishes plus two washrooms, mix of forced air waste oil and minisplit heating. Currently partitioned into two areas but could be reincorporated as a single space. Right section currently used as an auto service shop is approx. 2000 square feet and includes an office, washroom, mezzanine, two overhead garage doors and is heated by a minisplit. The property is equipped with three-phase electric power and a commercial HRV system. Property features ample paved and gravel parking along with rear building access for additional parking or laydown space. There is also a concrete footing installed at the rear of the building for future expansion. Building offers a variety of uses under the town's mixed development zoning and it's flexible spaces, making this an excellent investment opportunity for business expansion or a new venture. Strategically located on a major thoroughfare the property offers high visibility. Land & building for sale. (id:27476)

Property Highlights

MLS® Number
1292026
Type
Retail
Ownership Type
Freehold
Land Size
0.92 Acre|1 - 3 acres

Building

Building Type
Special Purpose
Square Footage
8000 sqft
Fireplace Present
No
Basement Type
Basement Features
Building Heating Type
Heat Pump, Other
Heating Fuel
Building Cooling Type

Location

Learn more about this property
Listing provided by:
RE/MAX Infinity Realty Inc.
MLS® number:
1292026
Agent:
Aaron Watkins
*Indicates required field
Name is required
Email is required
Please enter a valid phone number (e.g., 416-111-1111).