373 Main Street N, Glovertown, Newfoundland & Labrador A0G 2L0

Listed for:
$695,000
3 beds
4 baths
Listed 121 days ago
House for rent: 373 Main Street N, Glovertown, Newfoundland & Labrador A0G 2L0

View all 50 photos

Learn more about this property
Listing provided by:
Keller Williams Platinum Realty - Gander
MLS® number:
1287571
Agent:
Carla Kinden
*Indicates required field
Name is required
Email is required
Please enter a valid phone number (e.g., 416-111-1111).

About

Welcome to 373 Main St. N., Glovertown—a beautiful home on 5.6 acres in one of Newfoundland’s most charming communities. Glovertown is known for its warm, welcoming atmosphere, vibrant community spirit, and proximity to the Eastport Peninsula and sandy beaches. Whether you're after outdoor adventures, coastal views, or a close-knit community, Glovertown has it all. This custom-built chalet-style home, completed in 2012, blends modern comfort with natural beauty. With around 2900 sq ft, it features composite siding, a 400-amp panel, also for peace and reliability there is a hookup for a generator in case of a power outage. The home is equipped with in-floor heating, a central vacuum, and a new central heat pump installed six years ago for efficient climate control. Additional energy-efficient features include a fiberglass hot water tank and a wood-burning furnace. Enter through a large back foyer into an open-concept living area filled with natural light. The kitchen boasts a ceramic backsplash, plenty of cabinets, and large windows. The main floor hosts a luxurious primary bedroom with a walk-in closet and an en suite featuring a stand-up shower, Jacuzzi tub, and double sinks—perfect for relaxing after outdoor adventures. Upstairs, a loft with a queen bed, private bathroom, and spacious closet offers versatile guest space. The lower level includes a dry bar, additional bedroom, office, mechanical room, and another bathroom with a stand-up shower. The 30x40 insulated garage with concrete flooring, double doors, and a wood stove provides ample space for vehicles and hobbies. Enjoy outdoor trails on your property for walking, snowshoeing, or exploring. Glovertown offers a peaceful lifestyle with easy access to beaches, boating, fishing, and outdoor activities. This exceptional property combines luxury living with Newfoundland’s natural beauty—an opportunity not to be missed! (id:27476)

Property Highlights

MLS® Number
1287571
Type
Single Family
Ownership Type
Freehold
Land Size
157F X 792 X 376 X 945|3 - 10 acres

Building

Building Type
House
Storeys
1.00
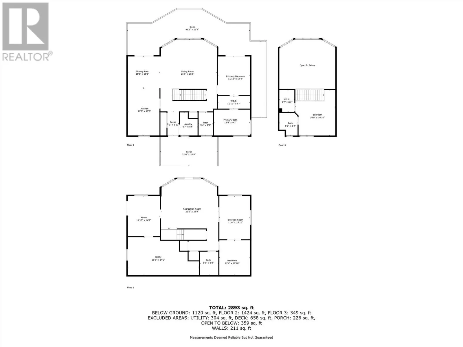
Square Footage
2893 sqft
Bathrooms Total
4
Bedrooms Above Ground
2
Bedrooms Total
3
Amenities
Recreation, Shopping
Exterior Finish
Other
Fireplace Present
Yes
Basement Type
Basement Features
Building Heating Type
Heat Pump, Floor heat
Heating Fuel
Wood
Building Cooling Type
Air exchanger

Utilities

Water
Municipal water
Utility Sewer
Septic tank

Room Layout

Bedroom
Second level
14.9X16.1
Bath (# pieces 1-6)
Second level
6.9X8.4
Other
Second level
5.7X8.2 closet
Office
Basement
11.4X15.11
Bedroom
Basement
11.4X12.2
Bath (# pieces 1-6)
Basement
6.9X8.8
Recreation room
Basement
21.2X25.6
Foyer
Basement
11.1X14.9
Utility room
Basement
14X26.3
Bath (# pieces 1-6)
Main level
9.7X13.4
Other
Main level
4.7X11.1 closet
Primary Bedroom
Main level
11.1X14.4
Living room
Main level
21.1X26.6
Dining room
Main level
11.8X11.8
Kitchen
Main level
11.8X17.6
Bath (# pieces 1-6)
Main level
5.4X8.6
Laundry room
Main level
6.7X8.6
Foyer
Main level
4.3X8.1

Location

Street Spotlight - For sale