20 Garland Street, Harbour Grace, Newfoundland & Labrador A0A 2M0

Listed for:
$259,900
2 beds
1 baths
Listed 50 days ago
House for rent: 20 Garland Street, Harbour Grace, Newfoundland & Labrador A0A 2M0

View all 30 photos

About

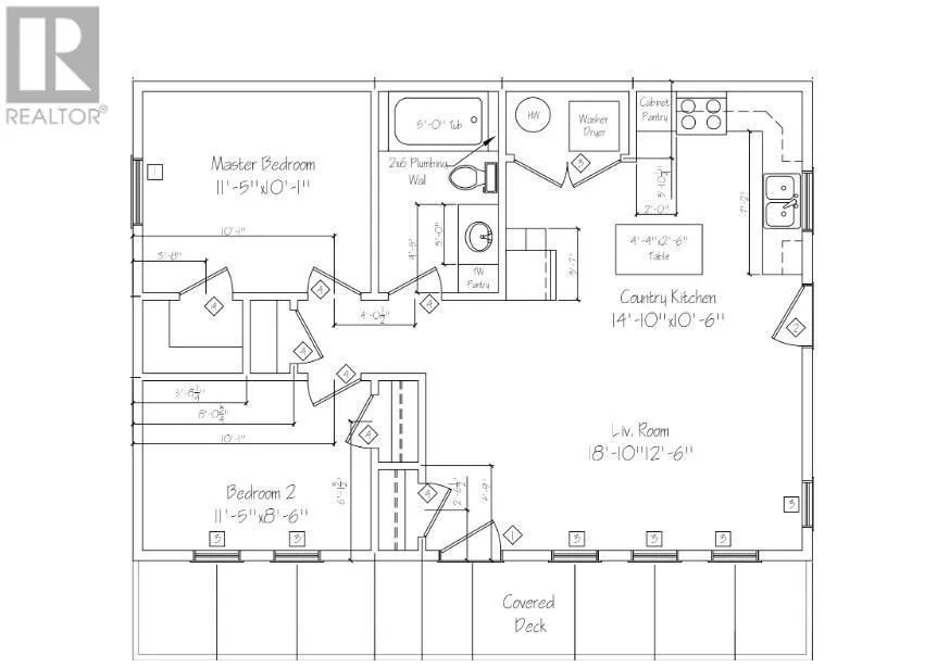
Welcome to 20 Garland Street, Harbour Grace. This property is currently construction and should be completed by February 27, 2026. The home features single level living with two bedrooms with ample closet space, three - piece bathroom and open concept living area complete with large living room, eat - in kitchen and laundry nook. The home with have electric baseboard heat, Atlantic New Home Warranty and quality finishes throughout. Hst is included in the purchase price with rebate to be assigned to vendor on closing. Home is on a developing street with other new, exisiting homes with more new homes on the way! (id:27476)

Property Highlights

MLS® Number
1294483
Type
Single Family
Ownership Type
Freehold
Land Size
50' x 87'|0-4,050 sqft

Building

Building Type
House
Storeys
1.00
Square Footage
816 sqft
Bathrooms Total
1
Bedrooms Above Ground
2
Bedrooms Total
2
Exterior Finish
Vinyl siding
Fireplace Present
No
Basement Type
Basement Features
Building Heating Type
Baseboard heaters
Heating Fuel
Electric
Building Cooling Type
Air exchanger

Utilities

Water
Municipal water
Utility Sewer
Municipal sewage system

Room Layout

Bath (# pieces 1-6)
Main level
3 pc
Bedroom
Main level
11.05 x 8.06
Bedroom
Main level
11.05 x 10.01
Living room
Main level
18.10 x 12.06
Kitchen
Main level
14.10 x 10.06

Location

Learn more about this property
Listing provided by:
Royal LePage Atlantic Homestead
MLS® number:
1294483
Agent:
Brent Roach
*Indicates required field
Name is required
Email is required
Please enter a valid phone number (e.g., 416-111-1111).