54 Middle Ledge Drive, Logy Bay, Newfoundland & Labrador A1K 0L5

Listed for:
$1,250,000
4 beds
4 baths
Listed 64 days ago
House for rent: 54 Middle Ledge Drive, Logy Bay, Newfoundland & Labrador A1K 0L5

View all 9 photos

Learn more about this property
Listing provided by:
RE/MAX Infinity Realty Inc. - Sheraton Hotel
MLS® number:
1285060
Agent:
Rob Bennett
*Indicates required field
Name is required
Email is required
Please enter a valid phone number (e.g., 416-111-1111).

About

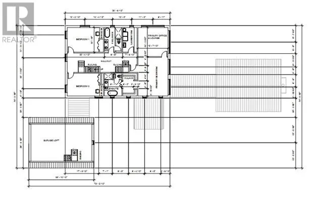
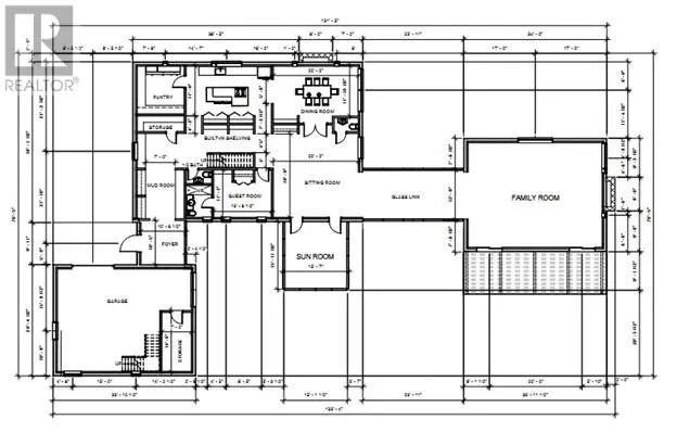
Welcome to 54 (Lot 37) Middle Ledge, a stunning custom home opportunity in the highly sought-after Wexford Estates. This exceptional property offers the perfect blend of privacy, luxury and convenience. Situated on a full-acre lot overlooking a tranquil pond and direct frontage along the esteemed Bally Hally Golf Course, a truly rare setting where natural beauty and elite living converge. Nestled within the scenic community of Logy Bay - Middle Cove - Outer Cove, you’ll enjoy the perfect harmony of urban convenience and the charm of a rural setting with close proximity to St. John’s, Stavanger Drive, Middle Cove Beach and the world-renowned East Coast Trail. Experience unparalleled craftsmanship with Alterra Building Solutions, delivering a seamless build experience. This architecturally designed residence by award winning Peter Blackie, will offer an exceptional level of sophistication with 9-foot ceilings on the main floor to enhance the open-concept layout. Thoughtfully designed with 4 spacious bedrooms and 3.5 bathrooms featuring a sunroom, guest bedroom on the main floor, a large attached garage. Heated main floors, 400 amp panel, multi-zone heating and cooling system, generous allowances and a new year home warranty to name a few key features. The second floor features a luxe primary suite with panoramic views of the golf course, a spa-inspired 5-piece ensuite and walk-in closet. A versatile flex space within the primary suite offers endless possibilities for a private office or a lounge. You’ll also find two additional generously-sized bedrooms and a centrally located laundry room designed for effortless, elevated living. Currently being offered as a pre-sale; however, construction is anticipated to begin in the Spring and ready for occupancy early 2026. The builder is flexible to customizing the plans to meet your needs, ensuring a personalized touch. Don’t miss this opportunity for a quality, thoughtfully designed home in a prime location. (id:27476)

Property Highlights

MLS® Number
1285060
Type
Single Family
Ownership Type
Freehold
Land Size
4,050 Sq M|1 - 3 acres

Building

Building Type
House
Storeys
2.00
Square Footage
6200 sqft
Bathrooms Total
4
Bedrooms Above Ground
4
Bedrooms Total
4
Exterior Finish
Other, Vinyl siding, Wood
Fireplace Present
Yes
Basement Type
Basement Features
Building Heating Type
Baseboard heaters, Heat Pump, Floor heat
Heating Fuel
Electric, Wood
Building Cooling Type
Air exchanger

Utilities

Utility Sewer
Septic tank

Room Layout

Ensuite
Second level
9 x 11
Office
Second level
15 x 16
Bedroom
Second level
12 x 14
Bedroom
Second level
12 x 14
Primary Bedroom
Second level
15 x 20
Not known
Main level
26 x 33
Not known
Main level
15 x 15
Dining room
Main level
11 x 20
Bedroom
Main level
13 x 11
Family room
Main level
27 x 34
Kitchen
Main level
16 x 18

Location