1108 Kenmount Road Unit#101, Paradise, Newfoundland & Labrador A1L 1N3

Listed for:
$1,790,000
0 beds
0 baths
Listed 60 days ago
Other for rent: 1108 Kenmount Road Unit#101, Paradise, Newfoundland & Labrador A1L 1N3

View all 39 photos

Learn more about this property
Listing provided by:
Royal LePage Property Consultants Limited
MLS® number:
1288476
Agent:
Tim Crosbie
*Indicates required field
Name is required
Email is required
Please enter a valid phone number (e.g., 416-111-1111).

About

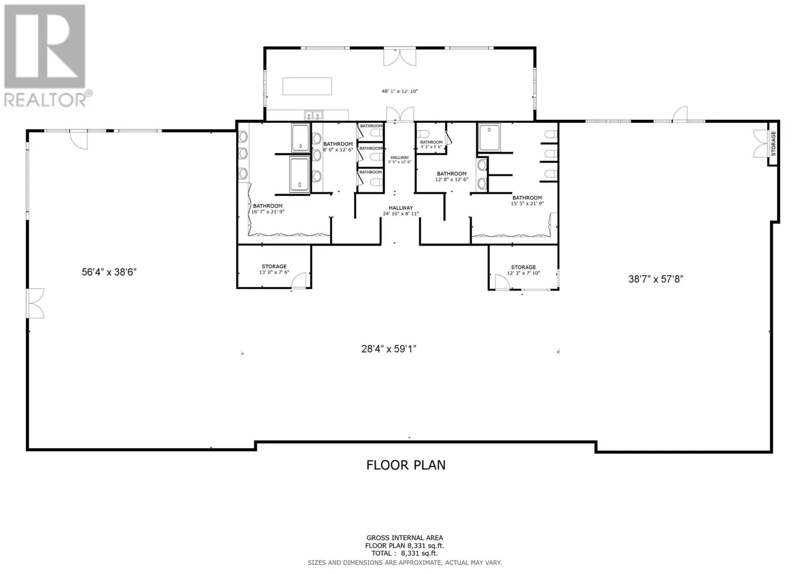
This professionally managed commercial condominium at 1108 Kenmount Road offers exceptional visibility in one of Paradise’s busiest commercial corridors. Located in a modern building with strong curb appeal, the space is well-suited for professional offices, medical or wellness clinics, retail showrooms, or other business uses. Its ground-level entry provides easy accessibility for clients and staff, with ample on-site parking and a flexible interior layout ready for customization. The area is surrounded by growing residential developments and benefits from steady traffic flow, making it an ideal location for businesses looking to establish a strong presence in the region. Previously used and fitted for a gym. (id:27476)

Property Highlights

MLS® Number
1288476
Type
Business
Ownership Type
Freehold
Land Size
10,890 - 21,799 sqft (1/4 - 1/2 ac)

Building

Building Type
Other
Square Footage
8875 sqft
Amenities
Highway, Recreation, Shopping
Fireplace Present
No
Basement Type
Basement Features
Building Heating Type
Baseboard heaters, Other, Mini-Split
Heating Fuel
Electric
Building Cooling Type

Location