281 Paradise Road, Paradise, Newfoundland & Labrador A1L 3B2

Listed for:
$399,900
3 beds
3 baths
Listed 155 days ago
House for rent: 281 Paradise Road, Paradise, Newfoundland & Labrador A1L 3B2

View all 7 photos

About

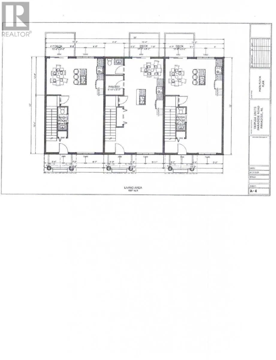
BE THE FIRST TO PURCHASE AND RECEIVE FREE KITCHEN APPLIANCES!! Construction has started on these Paradise Road Triplexes with spacious lots, grade level entry at the rear, an insulated concrete party wall and a view of Adam's Pond. This contemporary 2 storey home has an open concept main floor with 1/2 bath, pantry and access to a rear patio deck. The upper level has three bedrooms with an ensuite and a walk in closet off the primary bedroom and an upstairs laundry. The full open basement with walk out at the rear is your open canvas to develop a rec room, 4th bedroom and an additional bathroom. Each home comes with a Beautiful IKEA kitchen which includes a centre island and a pantry with cabinetry and shelving. All homes have Goodfelloow vinyl plank flooring and berber carpet for the stairs, 12 potlights and a lighting allowance is included. The exterior is completed with a covered entry, paved parking for 2 cars and full landscaping. 8 yr LUX warranty is included. HST is included in the list price and any rebate is to be assigned to the vendor upon closing. (id:27476)

Property Highlights

MLS® Number
1291575
Type
Single Family
Ownership Type
Freehold
Land Size
30x98|0-4,050 sqft

Building

Building Type
House
Storeys
1.00
Square Footage
1899 sqft
Bathrooms Total
3
Bedrooms Above Ground
3
Bedrooms Total
3
Exterior Finish
Other, Vinyl siding
Fireplace Present
No
Basement Type
Basement Features
Building Heating Type
Heating Fuel
Electric
Building Cooling Type
Air exchanger

Utilities

Water
Municipal water
Utility Sewer
Municipal sewage system

Room Layout

Bedroom
Second level
10.8x10.2
Bedroom
Second level
13.1x9.6
Primary Bedroom
Second level
12.11x12.3
Bath (# pieces 1-6)
Main level
8x5.7
Not known
Main level
8x6.8
Kitchen
Main level
18.5x13.2
Living room
Main level
13.7x12.6

Location

Learn more about this property
Listing provided by:
Royal LePage Property Consultants Limited
MLS® number:
1291575
Agent:
Margie Hanley
*Indicates required field
Name is required
Email is required
Please enter a valid phone number (e.g., 416-111-1111).

Street Spotlight - For sale