15 Port Rexton Place, Paradise, Newfoundland & Labrador A1A 0N5

Listed for:
$569,000
5 beds
4 baths
Listed 153 days ago
Two Apartment House for rent: 15 Port Rexton Place, Paradise, Newfoundland & Labrador A1A 0N5

View all 3 photos

About

This is a mere listing. (Private Sale) If you are viewing this listing on realtor.ca and would like additional information and/or arrange a viewing, please click on the ""MORE INFORMATION"" button immediately below the ""PROPERTY SUMMARY"" to obtain the developer's contact information. Welcome to 15 Port Rexton Place, a well-appointed two-apartment home located in the desirable community of Paradise. This property represents the last remaining new build on a quiet cul-de-sac, offering a rare opportunity in an established and family-friendly neighbourhood. The main unit features a bright, open-concept layout with spacious living, dining, and kitchen areas designed for both comfort and functionality. The home includes three well-sized bedrooms and two and a half bathrooms, providing ample space for family living. The basement level offers a dedicated rec room with a powder room as part of the main unit, adding valuable additional living space. A self-contained two-bedroom basement apartment provides excellent income potential or flexible options for extended family living. Conveniently located close to schools, walking trails, and amenities, this property is well suited for owner-occupiers, investors, or multi-generational households seeking a new construction home in a quiet setting. Presently Under Construction - Ready In 120 Days (id:27476)

Property Highlights

MLS® Number
1293278
Type
Single Family
Ownership Type
Freehold
Land Size
716 sqM|7,251 - 10,889 sqft

Building

Building Type
Two Apartment House
Square Footage
2780 sqft
Bathrooms Total
4
Bedrooms Above Ground
3
Bedrooms Total
5
Exterior Finish
Vinyl siding
Fireplace Present
No
Basement Type
Basement Features
Building Heating Type
Heating Fuel
Electric
Building Cooling Type

Utilities

Water
Municipal water
Utility Sewer
Municipal sewage system

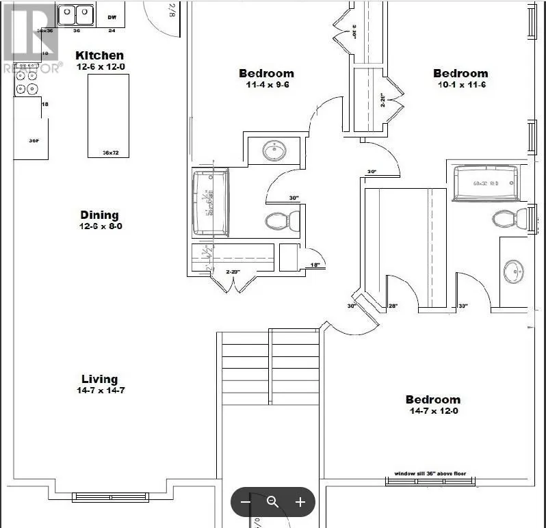
Room Layout

Recreation room
Basement
13.11 x 12.4
Bath (# pieces 1-6)
Basement
2pc
Bath (# pieces 1-6)
Basement
4pc
Bedroom
Basement
10.0 x 11.0
Bedroom
Basement
10.6 x 11.0
Living room
Basement
13.11 x 12.4
Dining room
Basement
8.0 x 9.0
Kitchen
Basement
13.11 x 12.4
Bath (# pieces 1-6)
Main level
4pc
Ensuite
Main level
4pc
Bedroom
Main level
10.1 x 11.6
Bedroom
Main level
14.4 x 9.6
Primary Bedroom
Main level
14.7 x 12.0
Living room
Main level
14.7 x 14.7
Dining room
Main level
12.6 x 8.0
Kitchen
Main level
12.6 x 12.0

Location

Learn more about this property
Listing provided by:
OUTLIER NL REALTY
MLS® number:
1293278
Agent:
Garland Mouland
*Indicates required field
Name is required
Email is required
Please enter a valid phone number (e.g., 416-111-1111).