75 Beachy Cove Road, Portugal Cove - St Philips, Newfoundland & Labrador A1M 2G6

Listed for:
$389,900
5 beds
2 baths
Listed 7 days ago
Two Apartment House for rent: 75 Beachy Cove Road, Portugal Cove - St Philips, Newfoundland & Labrador A1M 2G6

View all 29 photos

About

Wake up to ocean views in this two-apartment home in Portugal Cove–St. Philips. The freshly painted main unit includes three bedrooms, one full bathroom, and a rec room, providing comfortable space for family living. Large windows bring in natural light and showcase the water, making the ocean part of your everyday life. The two-bedroom basement apartment with private entrance offers flexibility for extended family, guests, or rental income. Just a short drive from St. John’s, this home combines practical living, versatile space, and the enjoyment of daily views in a convenient location. As per Sellers Direction, there will be no conveyance of offers prior to 1:00pm on Tuesday – March 31, 2026. (id:27476)

Property Highlights

MLS® Number
1295620
Type
Single Family
Ownership Type
Freehold
Land Size
601 sq m|under 1/2 acre

Building

Building Type
Two Apartment House
Square Footage
2210 sqft
Bathrooms Total
2
Bedrooms Total
5
Exterior Finish
Vinyl siding
Fireplace Present
No
Basement Type
Basement Features
Building Heating Type
Baseboard heaters
Heating Fuel
Electric
Building Cooling Type
Air exchanger

Utilities

Water
Municipal water
Utility Sewer
Municipal sewage system

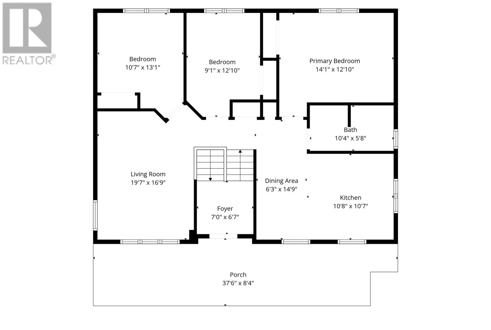
Room Layout

Bath (# pieces 1-6)
Basement
4.11 X 8.7
Not known
Basement
15 X 13.9
Not known
Basement
11.8 X 13.7
Not known
Basement
9.1 X 9.0
Not known
Basement
11.6 X 12.1
Recreation room
Basement
10.9 X 13.0
Foyer
Main level
7.0 X 6.7
Primary Bedroom
Main level
14.1 X 12.1
Bedroom
Main level
9.1 X 12.1
Bedroom
Main level
10.7 X 13.1
Bath (# pieces 1-6)
Main level
10.4 X 5.8
Living room
Main level
19.7 X 16.9
Kitchen
Main level
10.8 X 10.7

Location

Learn more about this property
Listing provided by:
BlueKey Realty Inc.
MLS® number:
1295620
Agent:
Sarah Howlett
*Indicates required field
Name is required
Email is required
Please enter a valid phone number (e.g., 416-111-1111).