21 Holloway Street, St. John's, Newfoundland & Labrador A1C 3R3

Listed for:
$589,000
0 beds
0 baths
Listed 54 days ago
21 Holloway Street, St. John's, Newfoundland & Labrador A1C 3R3

View all 7 photos

About

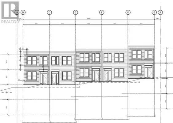
THIS VACANT PROPERTY IS IDEAL FOR DEVELOPERS, HOME BUILDERS AND INVESTORS.THE POSSIBILITIES ARE ENDLESS ON THIS POSSIBLE FIVE LOT SUBDIVISION PROPERTY OFFERING SPECTACULARS VIEWS OF THE NARROWS, SCENIC ST. JOHNS HARBOUR ,AS WELL AS PANORAMIC VIEWS OF THE CITY, BATTERY AND FORT AMHERST. THIS LAND IS SITUATED NORTH OF DUCKWORTH STREET WITH FRONTAGE ON HOLLOWAY STREET AND NUNNERY HILL. THE PROPERTY IS ZONED (RD) FOR THE DEVELOPMENT OF UP TO FIVE HERITAGE-STYLE RESIDENTIAL TOWNHOUSES WITH OFF-STREET PARKING . THE OWNERS HAD BEEN COORDINATING WITH THE CITY OF ST JOHNS PLANNING DEPT FOR PLAN APPROVAL OF A FIVE-UNIT ARCHITECTURAL-DESIGNED PROJECT WHICH WOULD BE WITHIN THE LIMITS OF THE RD ZONE REGULATIONS. COUNCIL APPROVAL WILL BE PURCHASERS RESPONSIBILITY TO COORDINATE AND GET APPROVAL .THE CURRENT PLAN HAS POTENTIAL FOR EXPANDED LIVING TO THE REAR OF THE PROPOSED UNITS OR FOR FEWER HOMES WITH LARGER LIVING AREAS. THIS PROPERTY IS A ""GOLDEN GEM"" IN DOWNTOWN ,ST.JOHNS. (id:27476)

Property Highlights

MLS® Number
1281311
Type
Vacant Land
Ownership Type
Freehold
Land Size
9364 sq. ft.|7,251 - 10,889 sqft

Building

Fireplace Present
No
Basement Type
Basement Features
Building Heating Type
Heating Fuel
Building Cooling Type

Utilities

Water
None
Utility Sewer
No sewage system

Location

Learn more about this property
Listing provided by:
HomeLife Experts Realty Inc.
MLS® number:
1281311
Agent:
Michelle Mitchum
*Indicates required field
Name is required
Email is required
Please enter a valid phone number (e.g., 416-111-1111).