1 Shortall Street, St. John's, Newfoundland & Labrador A1A 0C9

Listed for:
$389,900
2 beds
2 baths
Listed 1 day ago
House for rent: 1 Shortall Street, St. John's, Newfoundland & Labrador A1A 0C9

View all 31 photos

Learn more about this property
Listing provided by:
RE/MAX Infinity Realty Inc. - Sheraton Hotel
MLS® number:
1291974
Agent:
Robert Decker
*Indicates required field
Name is required
Email is required
Please enter a valid phone number (e.g., 416-111-1111).

About

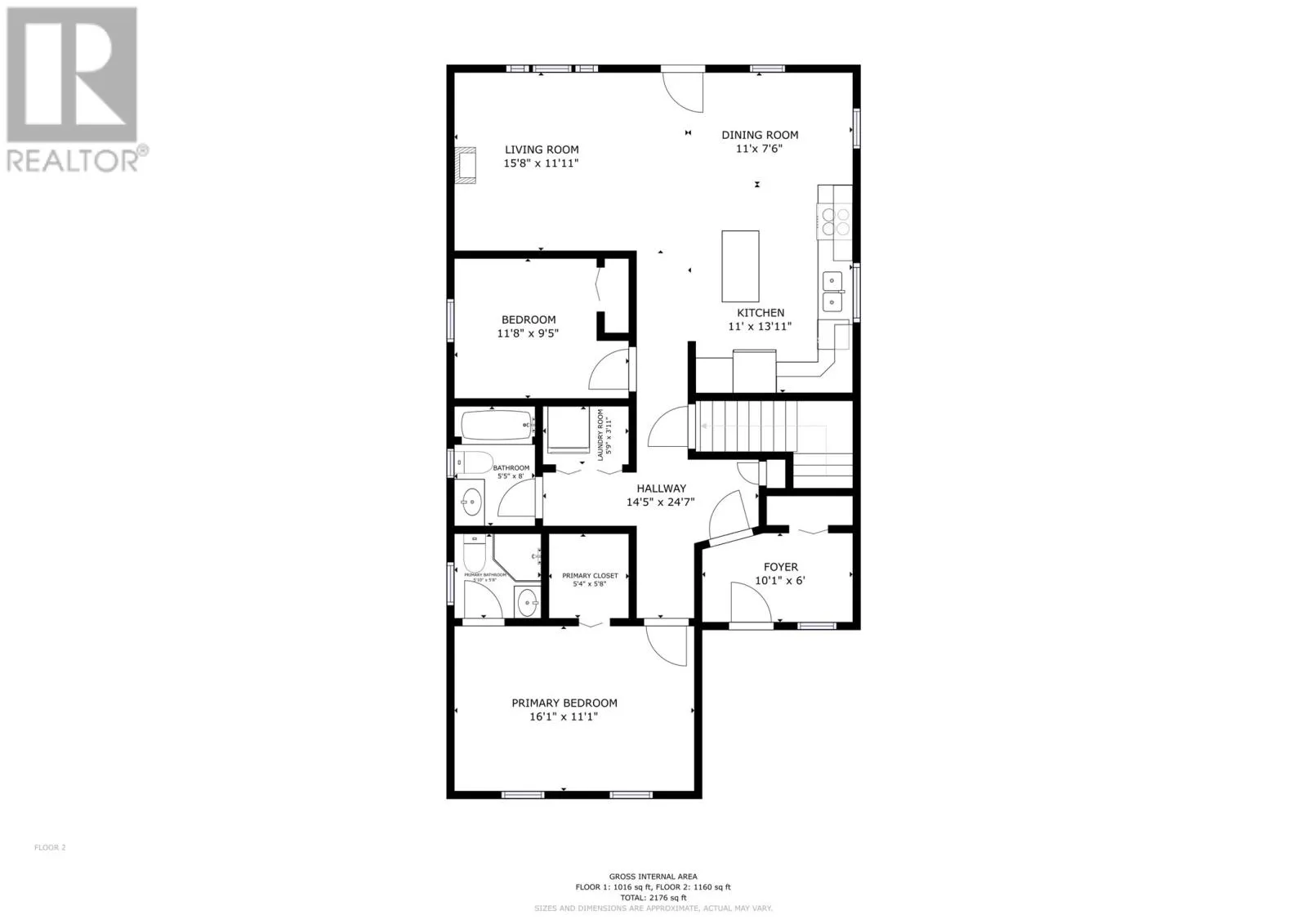
Pride of ownership is evident throughout this pristine 2-bedroom, 2-bathroom bungalow, ideally located on a beautifully positioned corner lot in the sought-after neighborhood of Clovelly Trails. Featuring gleaming hardwood floors and a functional, thoughtfully designed layout, this immaculate home welcomes you through an enclosed front porch leading into a spacious foyer and bright main hallway. The open-concept kitchen, dining, and living areas are located at the rear of the home, creating a warm and inviting space for both everyday living and entertaining. The kitchen is equipped with a large island, ample cabinetry, and generous counter space, while the adjoining dining and living areas are enhanced by large windows that fill the space with natural light and provide access to the rear patio. The spacious primary bedroom includes a walk-in closet and ensuite, while the second bedroom and main full bathroom provide comfort and convenience for guests or family. Designed with accessibility in mind, the home features wide hallways and door openings for ease of movement and convenient main-floor laundry. The undeveloped basement offers a blank canvas for future expansion or additional storage, complete with direct exterior door for easy access. Nestled in a quiet, adult living community, residents enjoy a low-maintenance lifestyle with lawn care and snow removal included in the affordable condo fee. Just minutes from shopping, dining, golf, and scenic walking trails, this property perfectly combines comfort, convenience, and carefree living. (id:27476)

Property Highlights

MLS® Number
1291974
Type
Single Family
Maintenance Fee
170.00
Ownership Type
Freehold
Land Size
55x98x35x29x78|under 1/2 acre

Building

Building Type
House
Storeys
1.00
Square Footage
2176 sqft
Bathrooms Total
2
Bedrooms Above Ground
2
Bedrooms Total
2
Amenities
Recreation, Shopping
Exterior Finish
Vinyl siding
Fireplace Present
No
Basement Type
Basement Features
Building Heating Type
Baseboard heaters
Heating Fuel
Electric
Building Cooling Type

Utilities

Water
Municipal water
Utility Sewer
Municipal sewage system

Room Layout

Laundry room
Main level
5.9x3.11
Bath (# pieces 1-6)
Main level
5.5x8.0 4pc
Bedroom
Main level
11.8x9.5
Ensuite
Main level
3pc
Storage
Main level
5.4x5.8
Primary Bedroom
Main level
16.1x11.1
Living room
Main level
15.8x11.11
Dining room
Main level
11.0x7.6
Kitchen
Main level
11.0x13.11
Foyer
Main level
10.1x6.0

Location