7 Waterford Bridge Road Unit#200, St. John's, Newfoundland & Labrador A1E 1C5

Listed for:
$1,395,000
2 beds
3 baths
Listed 56 days ago
7 Waterford Bridge Road Unit#200, St. John's, Newfoundland & Labrador A1E 1C5

View all 38 photos

Learn more about this property
Listing provided by:
eXp Realty
MLS® number:
1292504
Agent:
Amanda Ryan
*Indicates required field
Name is required
Email is required
Please enter a valid phone number (e.g., 416-111-1111).

About

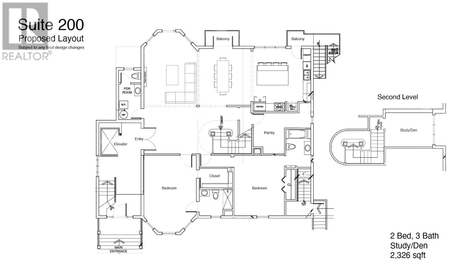
Set along the banks of the Waterford River, Julian’s Gate is a landmark restoration of one of St. John’s most historic estates. The residence has been reimagined into six private suites that blend heritage character with modern design. The result is a rare opportunity to live surrounded by nature, just minutes from downtown. The Laurel Suite occupies the second level and represents everything Julian’s Gate stands for. Spanning more than 2,300 square feet, it offers a graceful balance of history and comfort. Sunlight filters through tall windows, illuminating the detailed millwork and warm hardwood floors that define the space. The open living area is anchored by a propane fireplace, with dual balconies extending out to views of the valley and mature trees that frame the Waterford River below. A modern kitchen with custom cabinetry and high-end finishes flows seamlessly into the dining and living areas, creating a space that feels both refined and inviting. Two bedrooms, three baths, and a dedicated upper-level study provide flexibility for work, guests, or retreat. The Waterford Valley is known for its quiet beauty — tree-lined paths, Bowring Park just upstream, and the soft rhythm of the river. Here, the best of St. John’s is close at hand, yet the setting feels a world apart. (id:27476)

Property Highlights

MLS® Number
1292504
Type
Single Family
Maintenance Fee
375.00
Ownership Type
Condominium
Land Size
under 1/2 acre

Building

Square Footage
2326 sqft
Bathrooms Total
3
Bedrooms Above Ground
2
Bedrooms Total
2
Amenities
Recreation, Shopping
Exterior Finish
Other
Fireplace Present
Yes
Basement Type
Basement Features
Building Heating Type
Baseboard heaters, Mini-Split
Heating Fuel
Electric, Propane
Building Cooling Type

Utilities

Water
Municipal water
Utility Sewer
Municipal sewage system

Room Layout

Den
Second level
11.33 × 7.42
Pantry
Main level
14.67 × 9.92
Bath (# pieces 1-6)
Main level
6.50 × 15.58
Ensuite
Main level
6.92 × 10.00
Bedroom
Main level
14.00 × 16.67
Ensuite
Main level
9.00 × 7.00
Primary Bedroom
Main level
13.42 × 19.00
Kitchen
Main level
14.83 × 16.50
Eating area
Main level
16.08 × 16.50
Living room/Fireplace
Main level
13.08 × 20.08
Foyer
Main level
18.08 × 19.00

Location