637 Topsail Road, St. John's, Newfoundland & Labrador A1E 2E1

Listed for:
$429,900
4 beds
2 baths
Listed 29 days ago
House for rent: 637 Topsail Road, St. John's, Newfoundland & Labrador A1E 2E1

View all 28 photos

About

Welcome to 637 Topsail Road — a charming 1960s-style bungalow set on an oversized mature lot. This well-maintained 4-bedroom, 1.5-bath home blends classic character with exceptional potential, making it an ideal choice for first-time buyers, growing families, or anyone seeking a solid property in a convenient location. Step inside to find a warm and inviting layout, true to its mid-century design. The main level features a bright living area with large windows, generously sized bedrooms, and a functional kitchen ready for your personal touch. Downstairs offers additional living space, storage, and flexibility—perfect for a rec room, and entertaining with a huge floor shuffle board! Outside, the expansive mature lot is a standout. Lined with established trees and offering plenty of green space, it provides a private retreat with room for gardening, play, or future development options. Located close to shopping, schools, parks, and major amenities, this property delivers both comfort and convenience with exceptional long-term value. Don’t miss this opportunity to own a classic St. John’s bungalow on a premium lot—full of charm today and potential for tomorrow. (id:27476)

Property Highlights

MLS® Number
1294916
Type
Single Family
Ownership Type
Freehold
Land Size
77 x 155|10,890 - 21,799 sqft (1/4 - 1/2 ac)

Building

Building Type
House
Storeys
1.00
Square Footage
3559 sqft
Bathrooms Total
2
Bedrooms Above Ground
4
Bedrooms Total
4
Exterior Finish
Vinyl siding
Fireplace Present
Yes
Basement Type
Basement Features
Building Heating Type
Hot water radiator heat
Heating Fuel
Oil
Building Cooling Type

Utilities

Water
Municipal water
Utility Sewer
Municipal sewage system

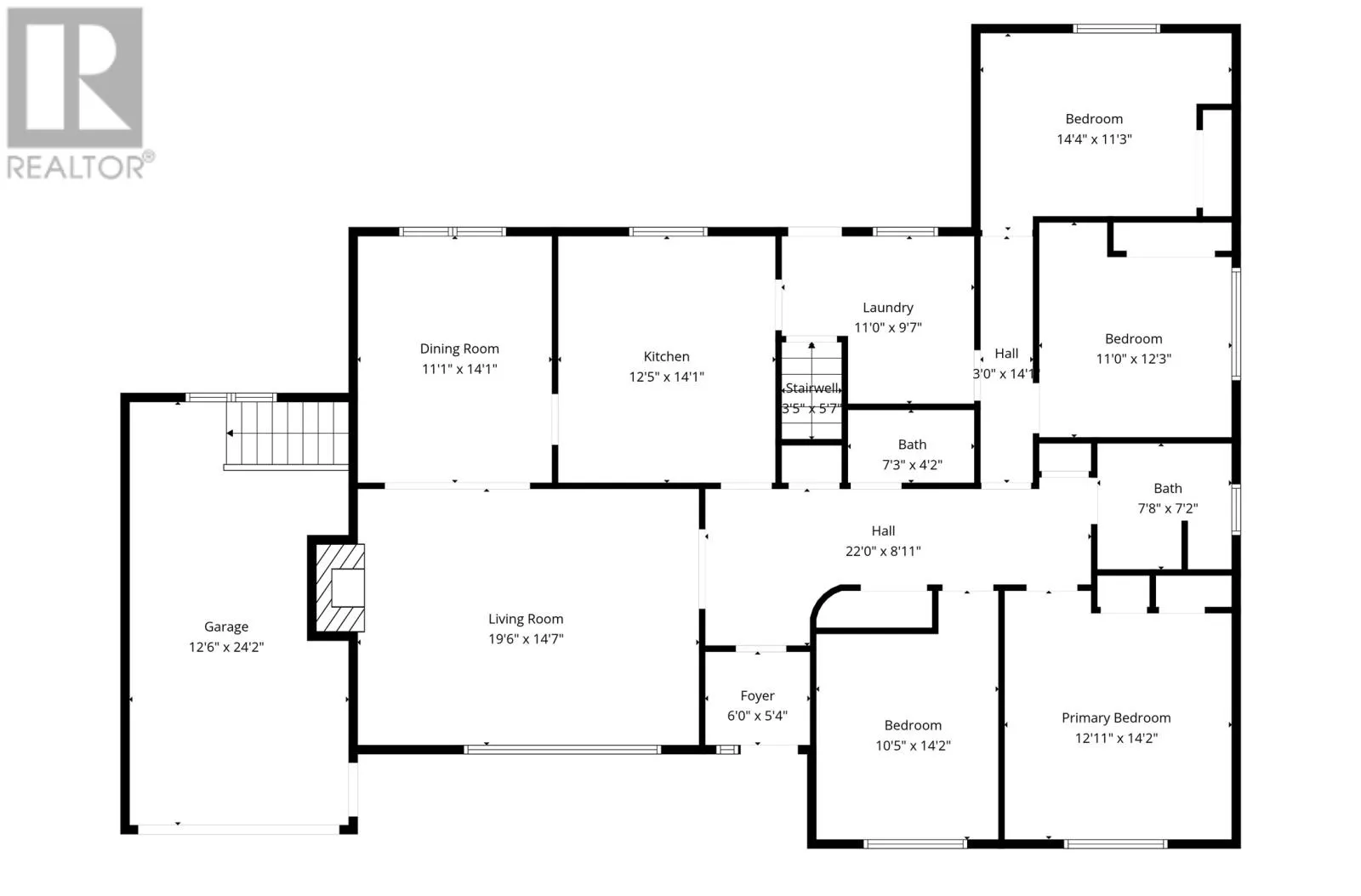
Room Layout

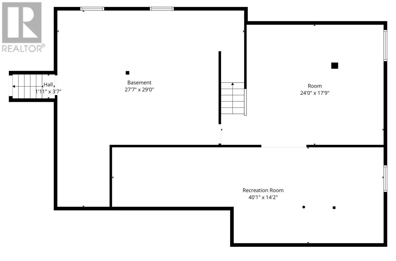
Utility room
Basement
27.7 x 29
Recreation room
Basement
24 x 17.9
Recreation room
Basement
40.1 x 14.2
Other
Main level
12.6 x 24.2
Bath (# pieces 1-6)
Main level
7.8 x 7.2
Bedroom
Main level
14.4 x 11.3
Bedroom
Main level
11 x 12.3
Bedroom
Main level
12.11 x 14.2
Bedroom
Main level
10.5 x 14.2
Mud room
Main level
11 x 9.7
Bath (# pieces 1-6)
Main level
7.3 x 4.2
Foyer
Main level
6 x 5.4
Living room/Fireplace
Main level
19.6 x 14.7
Dining room
Main level
11.1 x 14.1
Kitchen
Main level
12.5 x 14.1

Location

Learn more about this property
Listing provided by:
EXIT Realty Aspire
MLS® number:
1294916
Agent:
Devon Sparkes
*Indicates required field
Name is required
Email is required
Please enter a valid phone number (e.g., 416-111-1111).