22 Quarry Road Extension, Torbay, Newfoundland & Labrador A1K 1A3

Listed for:
$310,000
4 beds
2 baths
Listed 10 days ago
House for rent: 22 Quarry Road Extension, Torbay, Newfoundland & Labrador A1K 1A3

View all 28 photos

Learn more about this property
Listing provided by:
Royal LePage Atlantic Homestead
MLS® number:
1292319
Agent:
Ruby Manuel
*Indicates required field
Name is required
Email is required
Please enter a valid phone number (e.g., 416-111-1111).

About

This may be the opportunity you’ve been waiting for! If you are a first-time buyer, this home may certainly suit your budget. If you want to add another investment property to your portfolio you need wait no longer. This home has a great layout of 2 porches, kitchen, dining and living room open area, 3 bedrooms and bath with all of the main floor having been painted right through for you. The basement has an equally great use of space with a rec room, large bedroom (you would want to verify that the window meets egress), office, full bathroom and a laundry room. There may even be potential to convert the basement into an apartment. This level just needs your personal touches with some of the plastering being already underway for you. Enjoy the un-cramped feeling this sizeable yard will give you; allowing you some freedom and a taste of country while the Stavanger Drive shopping district is mere minutes away, providing you with all of the amenities you might possibly need. With 2 sheds you’ll have lots of storage or build yourself a workshop or garage. Lots to contemplate for sure. Why not book your viewing and check it out for yourself? (Please note: There will be no conveyance of offers prior to 5:00 pm on Monday, November 10th with offers to remain open until 10:00 pm of that same evening). (id:27476)

Property Highlights

MLS® Number
1292319
Type
Single Family
Ownership Type
Freehold
Land Size
352 x 71 x 58 x 63 x 418|.5 - 9.99 acres

Building

Building Type
House
Storeys
1.00
Square Footage
2038 sqft
Bathrooms Total
2
Bedrooms Above Ground
3
Bedrooms Total
4
Amenities
Recreation, Shopping
Exterior Finish
Vinyl siding
Fireplace Present
No
Basement Type
Basement Features
Building Heating Type
Baseboard heaters
Heating Fuel
Electric
Building Cooling Type
Air exchanger

Utilities

Water
Shared Well
Utility Sewer
Septic tank

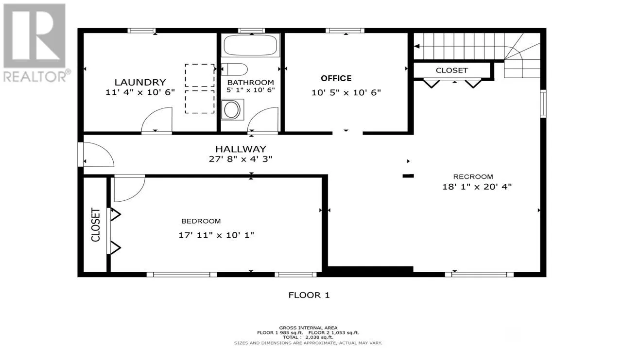
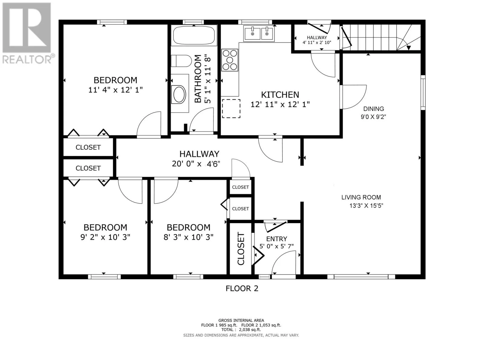
Room Layout

Laundry room
Basement
11.4 x 10.6
Bath (# pieces 1-6)
Basement
4 PC
Bedroom
Basement
17.11 x 10.1
Office
Basement
10.5 x 10.6
Recreation room
Basement
18.1 x 20.4
Porch
Main level
4.11 x 2.10
Bath (# pieces 1-6)
Main level
4 PC
Bedroom
Main level
8.3 x 10.3
Bedroom
Main level
9.2 x 10.3
Bedroom
Main level
11.4 x 12.1
Living room
Main level
13.3 x 15.5
Dining room
Main level
9.0 x 9.2
Kitchen
Main level
12.11 x 12.1
Foyer
Main level
5.0 x 5.7

Location