Lot 2 High Street, Trinity, Newfoundland & Labrador A0C 2S0

Listed for:
$549,900
3 beds
3 baths
Listed 135 days ago
House for rent: Lot 2 High Street, Trinity, Newfoundland & Labrador A0C 2S0

View all 11 photos

About

OCEANFRONT IN TRINITY!!! A rare opportunity to own one of the most desirable locations on Newfoundland's Bonavista Peninsula! Nestled on the ocean's edge in the picturesque, historic town of Trinity, this new construction, traditional salt box awaits. With generous allowances, you will have creative input to make this oceanfront oasis the home of your dreams. With 3 bedrooms and 2.5 bathrooms, spacious kitchen, living area and front deck, this home offers all of the modern amenities wrapped in the traditional architecture of the mid-1800s. This beautiful property will make the perfect vacation get-away, Airbnb, or year round retreat! Watch whales and eagles from the comfort of your home or stroll through the town and enjoy live music, theatre, shops, and culinary delights! Local breweries, coastal hiking, food and music festivals, all just minutes away from this exquisite piece of paradise! (id:27476)

Property Highlights

MLS® Number
1291160
Type
Single Family
Ownership Type
Freehold
Land Size
.64 acre|21,780 - 32,669 sqft (1/2 - 3/4 ac)

Building

Building Type
House
Storeys
2.00
Square Footage
2010 sqft
Bathrooms Total
3
Bedrooms Above Ground
3
Bedrooms Total
3
Amenities
Recreation, Shopping
Exterior Finish
Other
Fireplace Present
No
Basement Type
Basement Features
Building Heating Type
Baseboard heaters
Heating Fuel
Electric
Building Cooling Type
Air exchanger

Utilities

Water
Municipal water
Utility Sewer
Septic tank

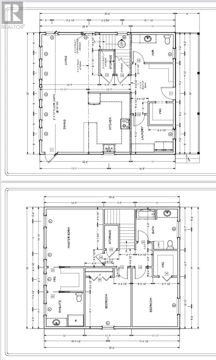
Room Layout

Bedroom
Second level
11'7 X 12'10
Bedroom
Second level
12'10 X 11'11
Bath (# pieces 1-6)
Second level
11 X 10'7
Ensuite
Second level
9'1 X 10
Primary Bedroom
Second level
14'10 X 14'9
Bath (# pieces 1-6)
Main level
7'6 X 11
Laundry room
Main level
9'10 X 11
Living room
Main level
14'9 X 14
Dining room
Main level
11'11 X 15
Kitchen
Main level
10'7 X 15

Location

Learn more about this property
Listing provided by:
RE/MAX Eastern Edge Realty Ltd. Clarenville
MLS® number:
1291160
Agent:
Grant Vardy
*Indicates required field
Name is required
Email is required
Please enter a valid phone number (e.g., 416-111-1111).