55 Victoria Street, Amherst, Nova Scotia B4H 1X4

Listed for:
$1
0 beds
0 baths
Listed 10 days ago
55 Victoria Street, Amherst, Nova Scotia B4H 1X4

View all 22 photos

About

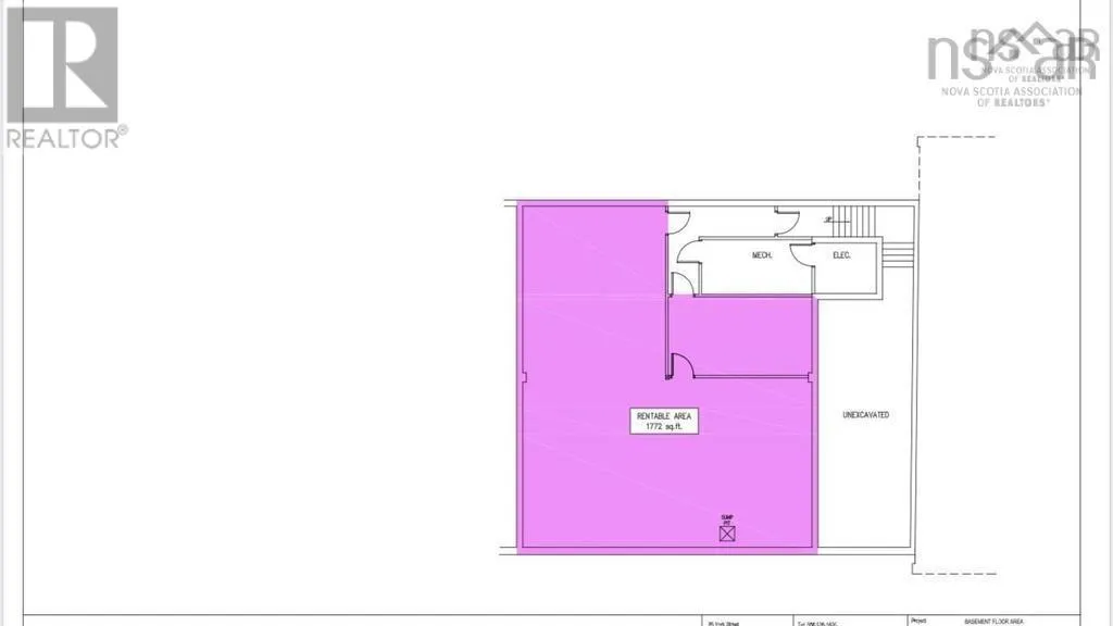
Take West Victoria St. into downtown Amherst NS Watch for Tim Hortons on the corner. Rentable space inside that location. LOCATION, LOCATION, LOCATION! This prime commercial space is up for LEASE in the heart of Amherst with frontage on one of the busiest intersections in town! The space offers a total of 2,888 square feet main level with an an additional 1,772 square feet available in the basement for storage etc. if needed. Previously used as an insurance brokerage, the main level space provides a nice waiting/reception area, large common area that could accommodate many cubicles and 8 independent offices along with a spacious break room. The lease includes washrooms, common area and a 3-4 parking spaces although there is plenty of public parking spaces surrounding the building. Owner is willing to review options and is flexible with the space. Tenant is responsible for arranging there own cleaning service. Check out the 3D link for 3D tour. (id:27476)

Property Highlights

MLS® Number
202404938
Type
Office
Community Name
Amherst
Ownership Type
Freehold
Land Size
0.1959 ac

Building

Amenities
Shopping
Fireplace Present
No
Basement Type
Basement Features
Building Heating Type
Heating Fuel
Building Cooling Type
Heat Pump

Utilities

Water
Municipal water

Location

Learn more about this property
Listing provided by:
Royal LePage Cumberland Realty Ltd.
MLS® number:
202404938
Agent:
Tony Mitchell
*Indicates required field
Name is required
Email is required
Please enter a valid phone number (e.g., 416-111-1111).