9 Fleming Avenue, Amherst, Nova Scotia B4H 0C3

Listed for:
$374,900
4 beds
2 baths
Listed 2 days ago
House for rent: 9 Fleming Avenue, Amherst, Nova Scotia B4H 0C3

View all 50 photos

About

https://share.google/mR5oRGVFWeACdxOrC Welcome to this cozy and well-maintained 2007 built home, ideally located in the heart of Amherst. Offering 4 bedrooms and 2 bathrooms, this property is perfectly suited for first-time buyers, growing families, or those looking to downsize into a comfortable, low-maintenance home. Designed with both functionality and ease of living in mind, the layout is efficient and inviting. Freshly painted throughout, the home feels bright, clean, and truly move-in ready. The main level features a welcoming entryway, spacious kitchen, living room, and dining areaperfect for everyday living and entertaining. The primary bedroom includes its own ensuite, accompanied by two additional bedrooms and a full family bathroom. The lower level adds excellent versatility with a fourth bedroom, a large L-shaped family and recreational space, and a generous laundry room with ample storage. There is also space available to add a third bathroom if desired, offering future potential. Every square inch of this home has been thoughtfully utilized to maximize space and comfort. Outside, youll find a good-sized backyard, a large shed for additional storage, and a spacious driveway with parking for multiple vehicles. Situated within town limits, this property offers convenient access to all local amenities while maintaining a warm, welcoming atmosphere, an excellent opportunity to step into homeownership or enjoy simplified living! (id:27476)

Property Highlights

MLS® Number
202605791
Type
Single Family
Community Name
Amherst
Ownership Type
Freehold
Land Size
0.1803 ac

Building

Building Type
House
Storeys
1.00
Square Footage
2240 sqft
Bathrooms Total
2
Bedrooms Above Ground
3
Bedrooms Total
4
Amenities
Golf Course, Park, Playground, Shopping, Place of Worship, Beach
Exterior Finish
Vinyl
Fireplace Present
No
Basement Type
Full (Finished)
Basement Features
Building Heating Type
Heating Fuel
Building Cooling Type

Utilities

Water
Municipal water
Utility Sewer
Municipal sewage system

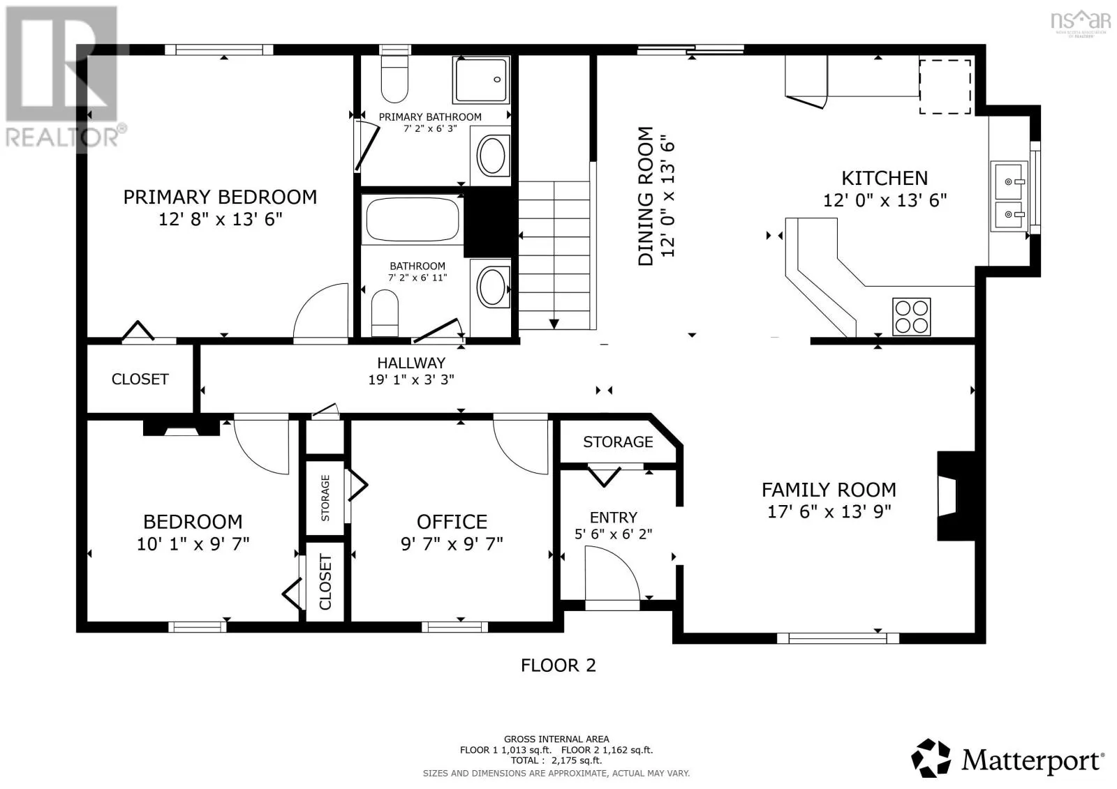
Room Layout

Recreational, Games room
Basement
20.4x25.7
Other
Basement
Gym 7.10x23.11
Laundry room
Basement
12.3x13
Den
Basement
11.5x11.11
Storage
Basement
/Bathroom 7.6x6.10
Foyer
Main level
5.6x6.2
Family room
Main level
17.6x13.9
Dining room
Main level
12x13.6
Kitchen
Main level
12x13.6
Bedroom
Main level
/office 9.7x9.7
Bedroom
Main level
10.1x9.7
Primary Bedroom
Main level
12.8x13.6
Ensuite (# pieces 2-6)
Main level
7.2x6.3
Bath (# pieces 1-6)
Main level
7.2x6.11

Location

Learn more about this property
Listing provided by:
RE/MAX County Line Realty Ltd.
MLS® number:
202605791
Agent:
Lacey Fisher
*Indicates required field
Name is required
Email is required
Please enter a valid phone number (e.g., 416-111-1111).

Community Spotlight: Homes For sale in Your Neighborhood