A-3 Avondale Road, Avondale, Nova Scotia B0N 2A0

Listed for:
$499,900
3 beds
2 baths
Listed 105 days ago
House for rent: A-3 Avondale Road, Avondale, Nova Scotia B0N 2A0

View all 9 photos

About

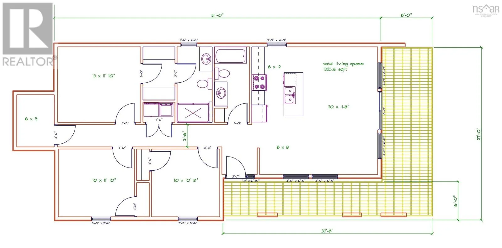
Hwy 14 to Avondale Road (near 290 Avondale Rd) Beautiful Nordic-Style Bungalow New Construction on 1.48 Acres in Avondale. This stunning Nordic-inspiredbungalow is set on a private lot in the desirable Avondale area, just 10 minutes from Windsor and 45 minutes toHalifax. The home offers three bedrooms, including a spacious primary suite with a walk-in closet and a 4-footshower ensuite. The open-concept living area is perfect for entertaining, with natural light flowing throughout.Two additional bedrooms and a stylish 4-piece bathroom complete the main floor. Outdoor living is a breeze withample deck space, and generous allowances allow you to customize your home. You can also add a 2-car garage,designed to complement the Nordic style. The property offers privacy with mature trees a private pond and is justa short distance from downtown Avondale, which features a wharf, parks, walking trails, and more. This home comes with a 7-Year Atlantic Home Warranty (id:27476)

Property Highlights

MLS® Number
202510163
Type
Single Family
Community Name
Avondale
Ownership Type
Freehold
Land Size
1.48 ac

Building

Building Type
House
Storeys
1.00
Square Footage
1323 sqft
Bathrooms Total
2
Bedrooms Above Ground
3
Bedrooms Total
3
Amenities
Golf Course, Park, Place of Worship
Exterior Finish
Wood siding
Fireplace Present
No
Basement Type
None
Basement Features
Building Heating Type
Heating Fuel
Building Cooling Type
Heat Pump

Utilities

Water
Cistern
Utility Sewer
Septic System

Room Layout

Great room
Main level
11.8x20
Kitchen
Main level
12x8
Dining room
Main level
8x8
Primary Bedroom
Main level
12x12
Bedroom
Main level
10x12
Bedroom
Main level
10x10
Utility room
Main level
6x9

Location

Learn more about this property
Listing provided by:
Keller Williams Select Realty
MLS® number:
202510163
Agent:
Kurt Repchull
*Indicates required field
Name is required
Email is required
Please enter a valid phone number (e.g., 416-111-1111).