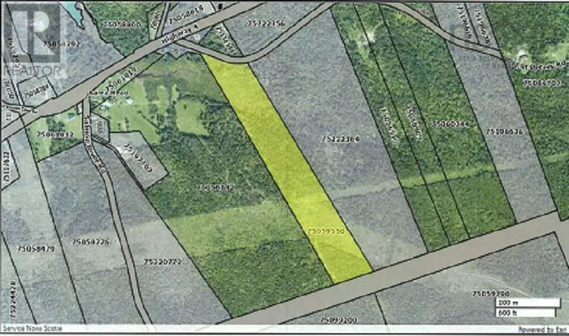
#4 Highway, Barra Head, Nova Scotia B0E 3B0

Listed for:
$25,900
0 beds
0 baths
Listed 95 days ago
#4 Highway, Barra Head, Nova Scotia B0E 3B0

View all 1 photos

About

Highway #4 Barra Head. Property is to the rear of civic #11846 Highway #4 Woodland is really difficult to find. This site has an old road right off Route #4 into the site. Nice mix of hardwood and softwood trees. has not been cut in years. Also would make a great spot to build a home, camp or cottage. Power and phone at roadside. This site is priced to sell. (id:27476)

Property Highlights

MLS® Number
202602576
Type
Vacant Land
Community Name
Barra Head
Ownership Type
Freehold
Land Size
18 ac

Building

Fireplace Present
No
Basement Type
Basement Features
Building Heating Type
Heating Fuel
Building Cooling Type

Utilities

Water
None
Utility Sewer
No sewage system

Location

Learn more about this property
Listing provided by:
Harvey Realties Limited (St.Peters)
MLS® number:
202602576
Agent:
Robert Wambolt
*Indicates required field
Name is required
Email is required
Please enter a valid phone number (e.g., 416-111-1111).