Lw 13 205 Lewis Drive, Bedford, Nova Scotia B4B 0L3

Listed for:
$859,900
4 beds
4 baths
Listed 113 days ago
House for rent: Lw 13 205 Lewis Drive, Bedford, Nova Scotia B4B 0L3

View all 4 photos

About

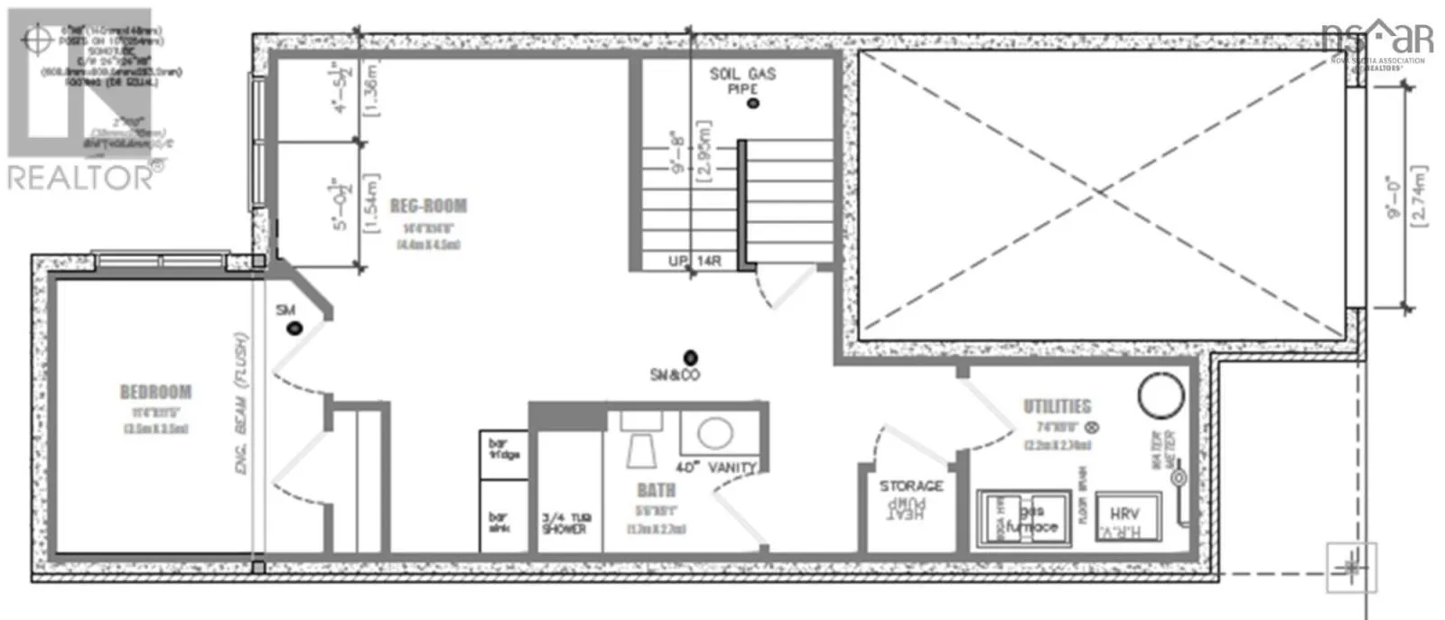
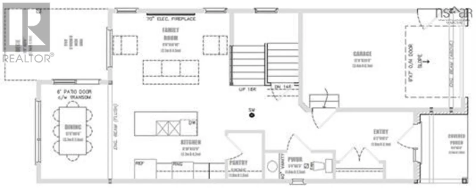
Hammonds Plains to Lewis Drive **Ready to move in by February 28, 2026** Introducing The Bellmore, a beautifully crafted 4-bedroom, 3.5-bath detached home by Shaughnessy Homes in Belle Rose Park, West Bedford. Spanning 2,537 sq. ft. across three finished levels on a 34 lot, this home blends modern style with everyday functionality. The main floor features an open-concept layout with a designer kitchen boasting a walk-in pantry, premium quartz countertops, and soft-close cabinetry. A stylish dining room bump-out adds a touch of elegance, perfect for gatherings. Engineered hardwood flows through the main and upper levels, complemented by an electric fireplace in the living area. Step outside to a beautifully finished composite deck, providing long-lasting durability with low maintenance. The finished WALKOUT basement is equipped with a wet bar, large bedroom, full bathroom and a spacious rec room perfect for extended family members. This home includes a fully ducted heat pump with natural gas backup, plus rough-ins for a gas range, dryer, BBQ, water heater, and a 50 AMP EV charger. Nestled off Larry Uteck Blvd in the serene Belle Rose Park, this home is steps from schools, parks, and amenities. Built with Shaughnessy Homes signature quality, The Bellmore is a rare find in one of Bedfords most desirable communities. (id:27476)

Property Highlights

MLS® Number
202529242
Type
Single Family
Community Name
Bedford
Ownership Type
Freehold
Land Size
0.1046 ac

Building

Building Type
House
Storeys
2.00
Square Footage
2537 sqft
Bathrooms Total
4
Bedrooms Above Ground
3
Bedrooms Total
4
Amenities
Park, Playground, Shopping
Exterior Finish
Stone, Vinyl
Fireplace Present
Yes
Basement Type
Basement Features
Building Heating Type
Heating Fuel
Building Cooling Type
Heat Pump

Utilities

Water
Municipal water
Utility Sewer
Municipal sewage system

Room Layout

Primary Bedroom
Second level
13x15
Ensuite (# pieces 2-6)
Second level
5 pc
Bedroom
Second level
10.8 x 10.6
Bedroom
Second level
10x10.4
Bath (# pieces 1-6)
Second level
4 pc
Laundry room
Second level
6.8x 5.6
Kitchen
Lower level
8.1x13.9
Recreational, Games room
Lower level
14.4X14.8
Bedroom
Lower level
11.4X11.5
Bath (# pieces 1-6)
Lower level
4 pc
Foyer
Main level
6.2 x 10.2
Bath (# pieces 1-6)
Main level
2 pc
Living room
Main level
9x14
Dining room
Main level
12x8.6

Location

Learn more about this property
Listing provided by:
Royal LePage Atlantic
MLS® number:
202529242
Agent:
Lorenzo Gallardo
*Indicates required field
Name is required
Email is required
Please enter a valid phone number (e.g., 416-111-1111).

Community Spotlight: Homes For sale in Your Neighborhood