Gar-6 24 Garvey Court, Bedford, Nova Scotia B4B 2V6

Listed for:
$849,900
4 beds
4 baths
Listed 53 days ago
House for rent: Gar-6 24 Garvey Court, Bedford, Nova Scotia B4B 2V6

View all 3 photos

About

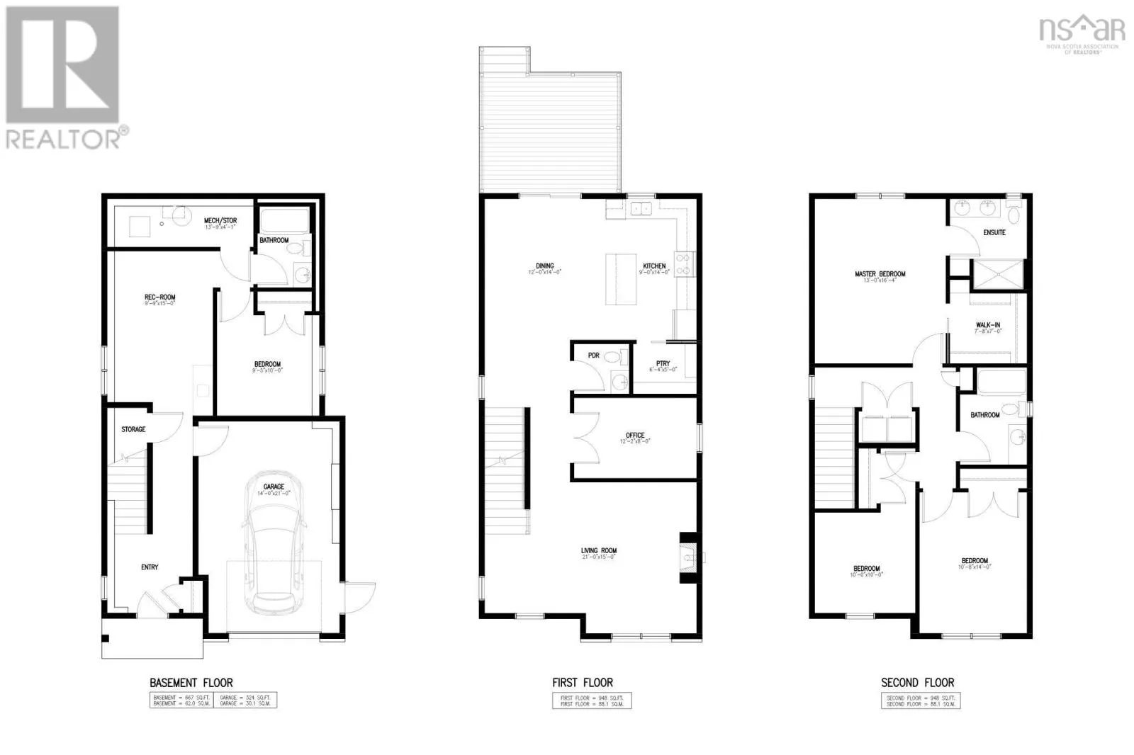
Terradore to Garvey Introducing The Isobel by Rooftight Homes, a beautifully designed two-storey offering 2,563 sq ft of finished living space on Garvey Court, the newest street in Brookline Park, The Parks of West Bedford. As the final phase of this highly sought-after community, Garvey Court represents a rare opportunity to secure new construction in one of Halifaxs most established and desirable neighbourhoods. This thoughtfully designed home features 9-foot ceilings on both the main level and the fully finished basement, creating a bright and spacious feel throughout. The lower level includes a recreation room, fourth bedroom, and full bathroom, offering excellent flexibility for family living or guests. The main level offers an expansive layout ideal for modern living, complete with an upgraded kitchen featuring quality finishes and a full walk-in pantry. A dedicated office or den provides additional functional space, while the large living room is anchored by a natural gas fireplace. Durable laminate flooring runs throughout the home for a clean and cohesive look. Two hardwood staircases add both style and function, leading to the upper level where the primary suite offers a walk-in closet and a beautifully appointed ensuite with a custom tiled shower. Additional bedrooms and well-designed living spaces provide comfort and flexibility for families of all sizes. Comfort is ensured year-round with a fully ducted heat pump system, providing efficient heating and cooling throughout the home. Upgraded plumbing fixtures and thoughtful finishes further enhance the overall quality and design. To better understand the layout, design, and quality of construction, buyers are encouraged to view completed similar homes available in The Parks of Lake Charles. Located in the highly sought-after Parks of West Bedford, this home offers access to excellent schools, parks, walking trails, and everyday amenities, making it an exceptional opportunity in one of Halifaxs premier communities (id:27476)

Property Highlights

MLS® Number
202605944
Type
Single Family
Community Name
Bedford
Ownership Type
Freehold
Land Size
0.1154 ac

Building

Building Type
House
Storeys
2.00
Square Footage
2563 sqft
Bathrooms Total
4
Bedrooms Above Ground
3
Bedrooms Total
4
Amenities
Park, Playground, Public Transit, Shopping
Exterior Finish
Stone, Vinyl
Fireplace Present
Yes
Basement Type
Basement Features
Building Heating Type
Heating Fuel
Building Cooling Type
Central air conditioning, Heat Pump

Utilities

Water
Municipal water
Utility Sewer
Municipal sewage system

Room Layout

Primary Bedroom
Second level
13 x 16.4
Ensuite (# pieces 2-6)
Second level
7.8 x 9
Other
Second level
WIC 7.8 x 7
Bath (# pieces 1-6)
Second level
10 x 6.6-jog
Bedroom
Second level
10 x 10
Bedroom
Second level
10.8 x 14
Bath (# pieces 1-6)
Basement
6.10 x 9.6
Storage
Basement
13.9 x 4.1
Recreational, Games room
Basement
9.9 x 15
Bedroom
Basement
9.5 x 10
Dining room
Main level
12 x 14
Kitchen
Main level
9 x 14
Den
Main level
12.2 x 8
Living room
Main level
21 x 15
Bath (# pieces 1-6)
Main level
5.4 x 5.10
Other
Main level
Pantry 6.4 x 5

Location

Learn more about this property
Listing provided by:
Royal LePage Atlantic
MLS® number:
202605944
Agent:
Jacqui Rostek Holder
*Indicates required field
Name is required
Email is required
Please enter a valid phone number (e.g., 416-111-1111).

Street Spotlight - For sale