18 Gala Drive, Berwick, Nova Scotia B0P 1E0

Listed for:
$479,000
3 beds
2 baths
Listed 70 days ago
House for rent: 18 Gala Drive, Berwick, Nova Scotia B0P 1E0

View all 2 photos

About

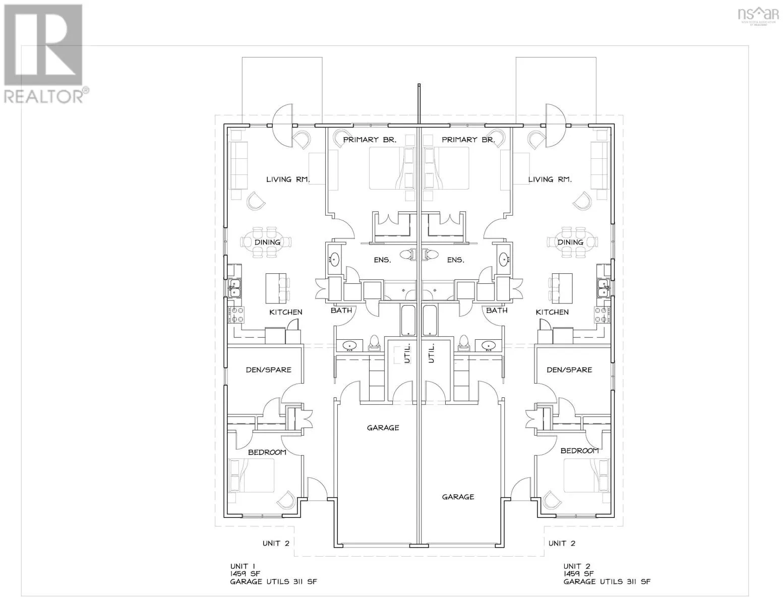
Main St to Beckwith Dr, left on Gala Welcome to this modern 3-bedroom, 2-bath side-by-side semi-detached home in the heart of vibrant Berwick. Designed for efficient, low-maintenance living, this newly constructed one-level home offers a functional layout and contemporary finishes throughout. The open-concept kitchen, living, and dining area is ideal for both everyday living and entertaining. The interior will feature upgraded kitchens and bathrooms, complemented by high-end, energy-efficient Samsung appliances, whisper-quiet bathroom fans, and a large, high-quality heat pump for year-round comfort. The home has been constructed using the ZIP System building envelope, enhancing air sealing, moisture control, and overall energy efficiency. The exterior will be further enhanced with decorative stone accents, adding curb appeal and architectural interest. Additional bedrooms and a full bath provide flexible space for family, guests, or a home office. Step outside to enjoy the deck, with a privacy fence for added comfort. All of this is within walking distance of Berwicks shops, restaurants, community amenities, and popular recreation centre. Estimated completion: April. (id:27476)

Property Highlights

MLS® Number
202601271
Type
Single Family
Community Name
Berwick
Ownership Type
Freehold
Land Size
0.2303 ac

Building

Building Type
House
Storeys
1.00
Square Footage
1459 sqft
Bathrooms Total
2
Bedrooms Above Ground
3
Bedrooms Total
3
Amenities
Golf Course, Park, Playground, Public Transit, Shopping, Place of Worship
Exterior Finish
Stone, Vinyl
Fireplace Present
No
Basement Type
None
Basement Features
Building Heating Type
Heating Fuel
Building Cooling Type
Heat Pump

Utilities

Water
Drilled Well
Utility Sewer
Municipal sewage system

Room Layout

Bedroom
Main level
11.9 x 12.10
Bedroom
Main level
10.5 x 11.9
Laundry room
Main level
7.8 x 7.4
Kitchen
Main level
11.5 x 12
Dining room
Main level
11.5 x 9.2
Living room
Main level
15.4 x 13.6
Primary Bedroom
Main level
13.4 x 13.10
Ensuite (# pieces 2-6)
Main level
5.7 x 13.10
Bath (# pieces 1-6)
Main level
7.8 x 3.1 + jog

Location

Learn more about this property
Listing provided by:
MacKay Real Estate Ltd.
MLS® number:
202601271
Agent:
Margaret Mackay
*Indicates required field
Name is required
Email is required
Please enter a valid phone number (e.g., 416-111-1111).