135 Black Rock Road, Black Rock, Nova Scotia B1X 1C6

Listed for:
$599,000
3 beds
3 baths
Listed 44 days ago
House for rent: 135 Black Rock Road, Black Rock, Nova Scotia B1X 1C6

View all 35 photos

About

From Highway 105, turn on to Old Route 5, otherwise known as the Millville Highway. Black Rock Rd is between the Big Bras d'Or Fire Hall and St. John's United Church. 135 is less than 1 KM down Black Rock Rd. For more information, please click the "More Information" button. Nothing about this home or garage is "cookie cutter". It's fully custom and built with high end materials. 1375 square feet upstairs and 1250 downstairs. 3 bedrooms (or four - theatre can be converted to bedroom) 2.5 baths Open concept kitchen / dining and living room area. Large decks front and back with composite decking. Heated with furnace, in floor heating and heat pump. 1 acre property 24 ft round above ground pool with salt water system installed in 2023 with composite deck. Newly renovated 4 piece main bath. 25 x 54 heated garage. 28 x 28 section completed in 2024 with 13 ft ceiling. Perfect for professional projects, vehicle storage, or hobbies. (id:27476)

Property Highlights

MLS® Number
202529188
Type
Single Family
Community Name
Black Rock
Ownership Type
Freehold
Land Size
1 ac

Building

Building Type
House
Storeys
1.00
Square Footage
2625 sqft
Bathrooms Total
3
Bedrooms Above Ground
2
Bedrooms Total
3
Amenities
Place of Worship
Fireplace Present
Yes
Basement Type
Basement Features
Building Heating Type
Heating Fuel
Building Cooling Type
Heat Pump

Utilities

Water
Drilled Well
Utility Sewer
Septic System

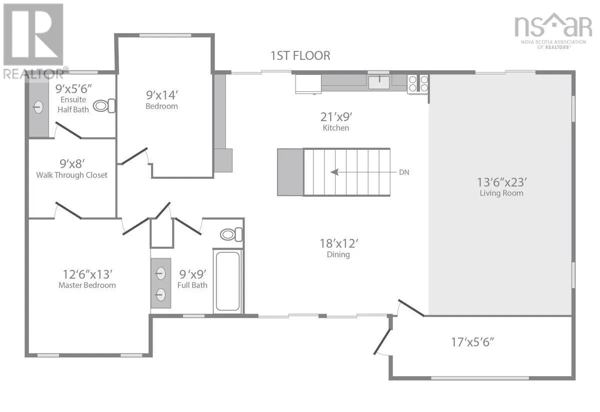
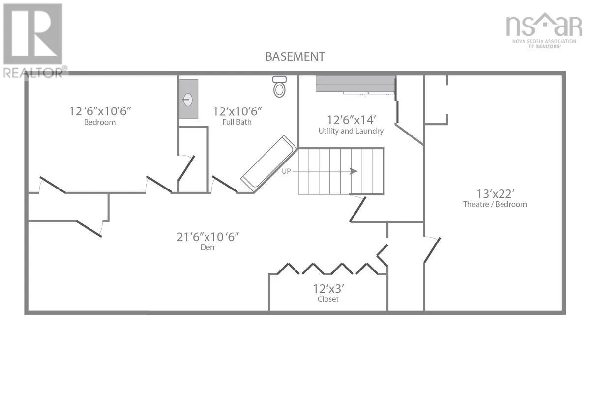
Room Layout

Recreational, Games room
Basement
21.6x10.6
Bedroom
Basement
12.6x10.6
Bath (# pieces 1-6)
Basement
12x10.6
Storage
Basement
12x3
Laundry room
Basement
12.6x14
Media
Basement
12x22
Workshop
Lower level
22x26
Porch
Main level
17x5.6
Living room
Main level
13.6x23
Kitchen
Main level
21x9
Dining room
Main level
18x12
Bath (# pieces 1-6)
Main level
9x9
Primary Bedroom
Main level
12.6x13
Storage
Main level
9x8
Ensuite (# pieces 2-6)
Main level
9x5.6
Bedroom
Main level
9x14

Location

Learn more about this property
Listing provided by:
Easy List Realty Ltd.
MLS® number:
202529188
Agent:
Sophie Giterman
*Indicates required field
Name is required
Email is required
Please enter a valid phone number (e.g., 416-111-1111).