145 Roundhouse Drive, Bridgewater, Nova Scotia B4V 9A9

Listed for:
$618,000
3 beds
3 baths
Listed 116 days ago
Duplex for rent: 145 Roundhouse Drive, Bridgewater, Nova Scotia B4V 9A9

View all 19 photos

About

Bridgewater take Glen Allan Drive to Hollingsworth to Roundhouse, sign on lot Discover this soon to be constructed stunning residential duplex located on the highly desirable Roundhouse Drive. This remarkable 2,067 sq. ft. home presents an excellent opportunity for the astute buyer, featuring 3 spacious bedrooms, den/office/4th bedroom and 3 well-appointed bathrooms. The main level offers in floor radiant heating and is where youll find the primary bedroom, complete with a luxurious 4-piece ensuite and a generous walk-in closet. Venture to the upper level, where two additional bedrooms are accompanied by a bonus area and another of the bathrooms. The impressive 9-foot ceilings on the homes lower level allow for an abundance of natural light, enhancing the overall ambiance. The open-concept layout of the kitchen, dining, and great rooms creates a seamless flow for effortless living and entertaining. Practical features include ample storage, a utility room, and a convenient laundry area located on the main floor. The double garage opens into a mudroom that easily connects to the laundry and utility spaces, ensuring a smooth transition for bringing in groceries and other items. This home is not just a residence; it's a lifestyle waiting for you and built proudly by Ziegler Homes Ltd. (id:27476)

Property Highlights

MLS® Number
202601264
Type
Single Family
Community Name
Bridgewater
Ownership Type
Freehold
Land Size
0.2091 ac

Building

Building Type
Duplex
Storeys
2.00
Square Footage
2067 sqft
Bathrooms Total
3
Bedrooms Above Ground
3
Bedrooms Total
3
Amenities
Golf Course, Park, Shopping, Place of Worship
Fireplace Present
No
Basement Type
None
Basement Features
Building Heating Type
Heating Fuel
Building Cooling Type
Wall unit, Heat Pump

Utilities

Water
Municipal water
Utility Sewer
Municipal sewage system

Room Layout

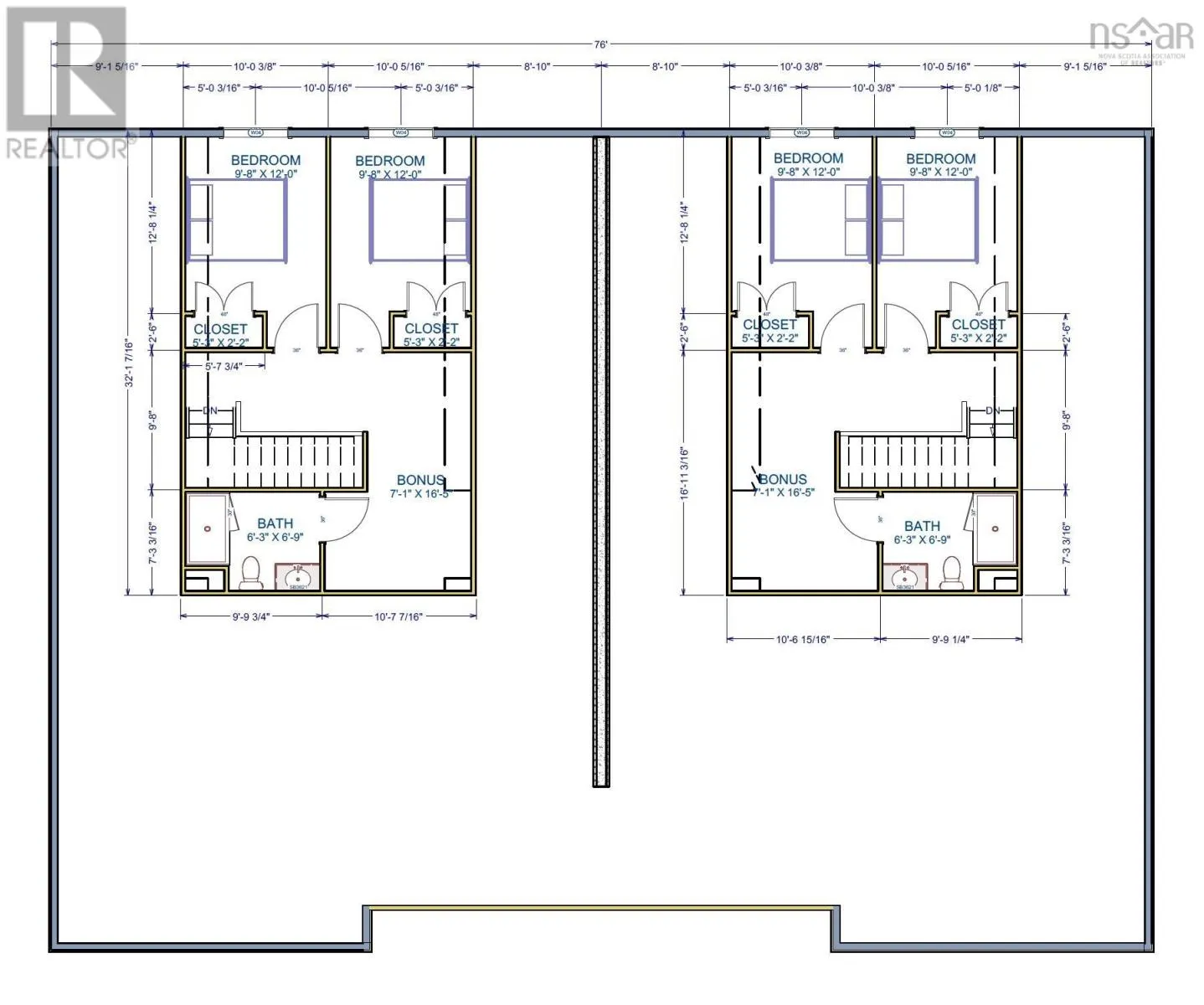
Bedroom
Second level
9.8 X 12.0
Bedroom
Second level
9.8 X 12.0
Other
Second level
7.1 X 16.5
Bath (# pieces 1-6)
Second level
6.3 X 6.9
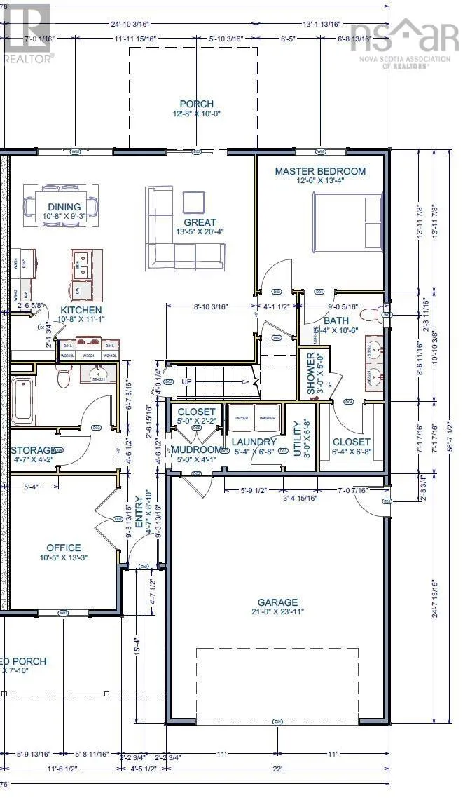
Primary Bedroom
Main level
12.6 X 13.4
Other
Main level
6.4 X 6.8
Ensuite (# pieces 2-6)
Main level
5.4 X 10.6
Den
Main level
10.5 X 13.3
Kitchen
Main level
10.8 X 11.1
Dining room
Main level
10.8 X 9.3
Great room
Main level
13.5 X 20.4
Utility room
Main level
3.0 X 6.6
Laundry room
Main level
5.4 X 6.8
Mud room
Main level
5.0 X 4.1
Bath (# pieces 1-6)
Main level
10.5 X 6.1

Location

Learn more about this property
Listing provided by:
Engel & Volkers (Lunenburg)
MLS® number:
202601264
Agent:
Erwin Huber
*Indicates required field
Name is required
Email is required
Please enter a valid phone number (e.g., 416-111-1111).