7859 Highway 14, Brooklyn, Nova Scotia B0N 2A0

Listed for:
$549,000
0 beds
0 baths
Listed 115 days ago
7859 Highway 14, Brooklyn, Nova Scotia B0N 2A0

View all 18 photos

About

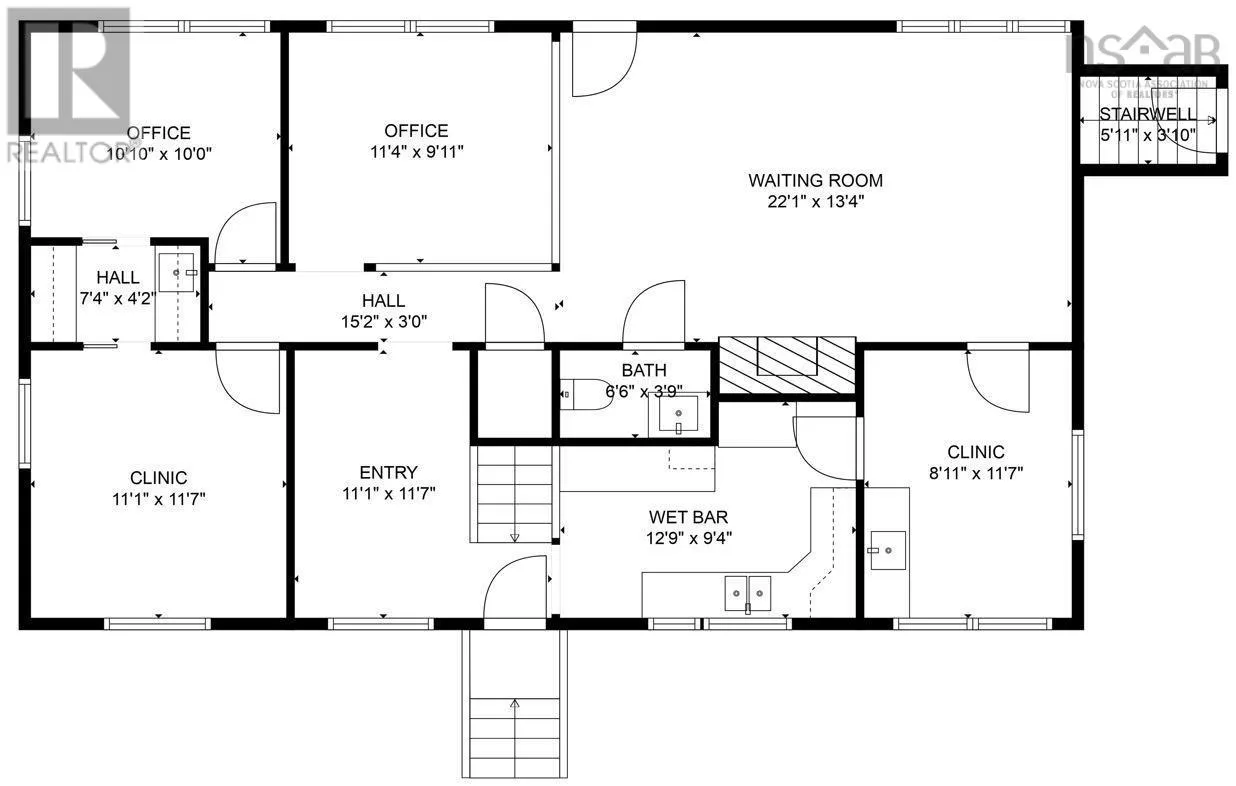
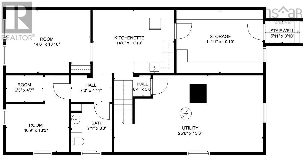
If coming from HRM, Take Highway 101 towards the Annapolis Valley, Take Exit 4 to Trunk 1 (Evangeline TRail towards St Croix, Newport, Ellershouse) Turn left at Newport Corner onto Highway 215, proceed 5.6 KM, 7859 HWY 14 will be on your left, just past Etter Road. Commercial property with 2,300 SF over 2 levels located at 7859 Highway 14, Windsor, Brooklyn, NS, situated on 1.09 acres LC (Local Commercial) zone. This 25' x 46' two-level building, is currently a dental clinic, with reception waiting area, 3 dental patient rooms, Hygienic room, 2 washrooms. Ideal for Commercial/ Dental/ Daycare use. 0.5 KM from Petro Canada, 0.75 km from Brooklyn District Elementary School & West Hants Middle School. 4.2 KM to Coyote Hill Golf Course. (id:27476)

Property Highlights

MLS® Number
202526141
Type
Office
Community Name
Brooklyn
Ownership Type
Freehold
Land Size
1.09 ac

Building

Fireplace Present
No
Basement Type
Basement Features
Building Heating Type
Heating Fuel
Building Cooling Type

Utilities

Water
Drilled Well

Location

Learn more about this property
Listing provided by:
Keller Williams Select Realty (Branch)
MLS® number:
202526141
Agent:
Philip Bolhuis
*Indicates required field
Name is required
Email is required
Please enter a valid phone number (e.g., 416-111-1111).