Lot 927 201 Brunello Boulevard, Brunello Estates, Nova Scotia B3T 0J3

Listed for:
$779,900
4 beds
4 baths
Listed 72 days ago
House for rent: Lot 927 201 Brunello Boulevard, Brunello Estates, Nova Scotia B3T 0J3

View all 6 photos

About

Timberlea Village Parkway to Brunello Blvd Now completing interior finishes in this fabulous new home. A bright sunken foyer welcomes you to a lovely den/flex space ideal for a small home office. The spectacular Great Room has 9' ceilings & large windows, including a massive window in the kitchen making the most of natural light and views to the spacious backyard. A large island is ideal for gathering around to start your day, quartz countertops, a fantastic pantry, dining area and living space with access to take the entertaining outside to your deck. Convenience of a discrete powder room and access to the garage complete this level which features designer tile and hardwood floors. Provident's penthouse primary suite is a true retreat with hardwood floors, a walk-in closet and spa-like ensuite with soaker tub, double raised underlit vanity and separate shower. Two nice size bedrooms, another full bath & laundry closet, provide a super functional upper floor. A rec room, 4th bedroom & 3rd full bath create a perfect space for guests downstairs which walks out to your yard. Completed with the comfort of heat pump heating and cooling. Additional lots and layouts available. Fantastic location in Brunello where residents enjoy walking the golf course trails, access to Nine Mile River, tennis, skating, cross country skiing, events at the club house (no membership required!), and super great access to Bayers Lake and downtown Halifax. The community is growing with new services and amenities all the time. Terrific lifestyle in a beautiful new home! Several of this style at different stages so you could customize finishes to suit your tastes. (id:27476)

Property Highlights

MLS® Number
202601088
Type
Single Family
Community Name
Brunello Estates
Ownership Type
Freehold
Land Size
0.113 ac

Building

Building Type
House
Storeys
2.00
Square Footage
2440 sqft
Bathrooms Total
4
Bedrooms Above Ground
3
Bedrooms Total
4
Amenities
Golf Course, Public Transit, Shopping
Exterior Finish
Brick, Vinyl, Other
Fireplace Present
No
Basement Type
Full (Finished)
Basement Features
Building Heating Type
Heating Fuel
Building Cooling Type
Heat Pump

Utilities

Water
Municipal water
Utility Sewer
Municipal sewage system

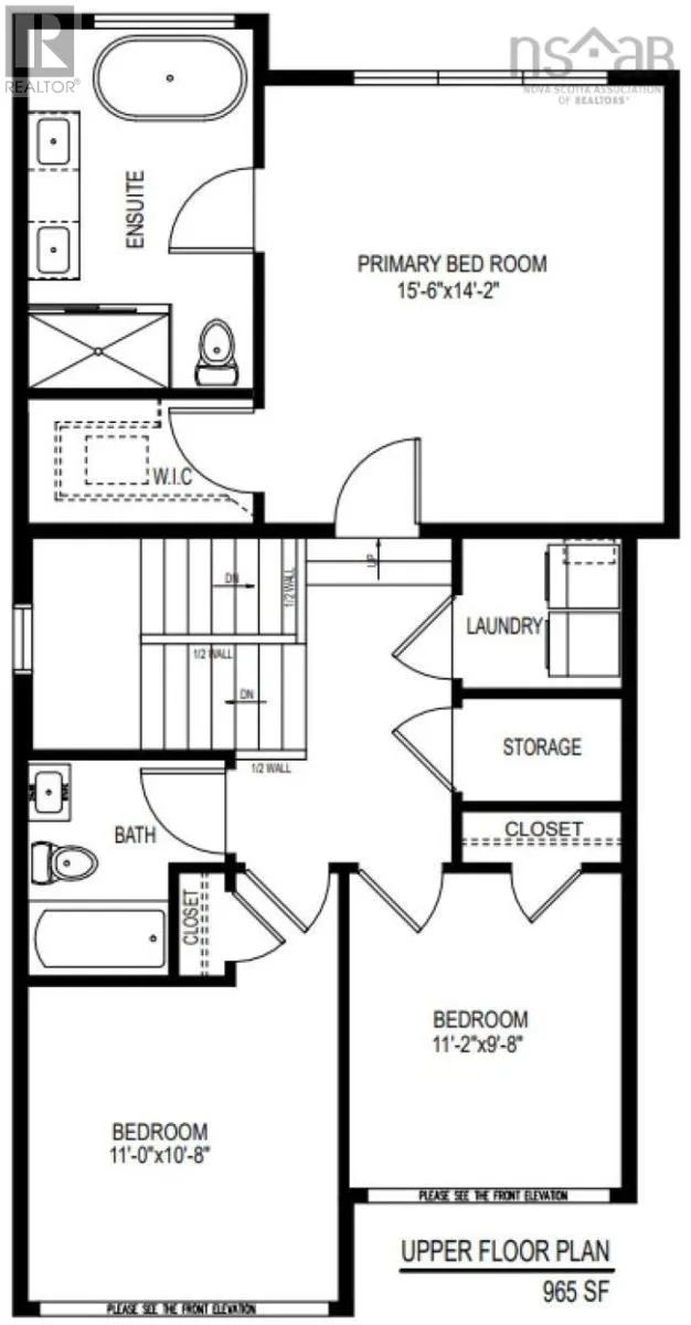
Room Layout

Primary Bedroom
Second level
15.6x14.2
Ensuite (# pieces 2-6)
Second level
12x8
Bedroom
Second level
11x10.8
Bedroom
Second level
11.2x9.8
Bath (# pieces 1-6)
Second level
8x5
Laundry room
Second level
6x5
Recreational, Games room
Basement
18x12
Bedroom
Basement
12.8x9
Bath (# pieces 1-6)
Basement
7x5
Kitchen
Main level
15.2x8.6
Great room
Main level
15.6x14.2
Den
Main level
9.6x5.6
Bath (# pieces 1-6)
Main level
5x4
Foyer
Main level
9x4

Location

Learn more about this property
Listing provided by:
PLUMB LINE REALTY INC. - 12234
MLS® number:
202601088
Agent:
Patrick Stubbert
*Indicates required field
Name is required
Email is required
Please enter a valid phone number (e.g., 416-111-1111).