9878 Main Street, Canning, Nova Scotia B0P 1H0

Listed for:
$1,390,000
5 beds
4 baths
Listed 132 days ago
House for rent: 9878 Main Street, Canning, Nova Scotia B0P 1H0

View all 50 photos

Learn more about this property
Listing provided by:
Engel & Volkers
MLS® number:
202516976
Agent:
Christa Southcott
*Indicates required field
Name is required
Email is required
Please enter a valid phone number (e.g., 416-111-1111).

About

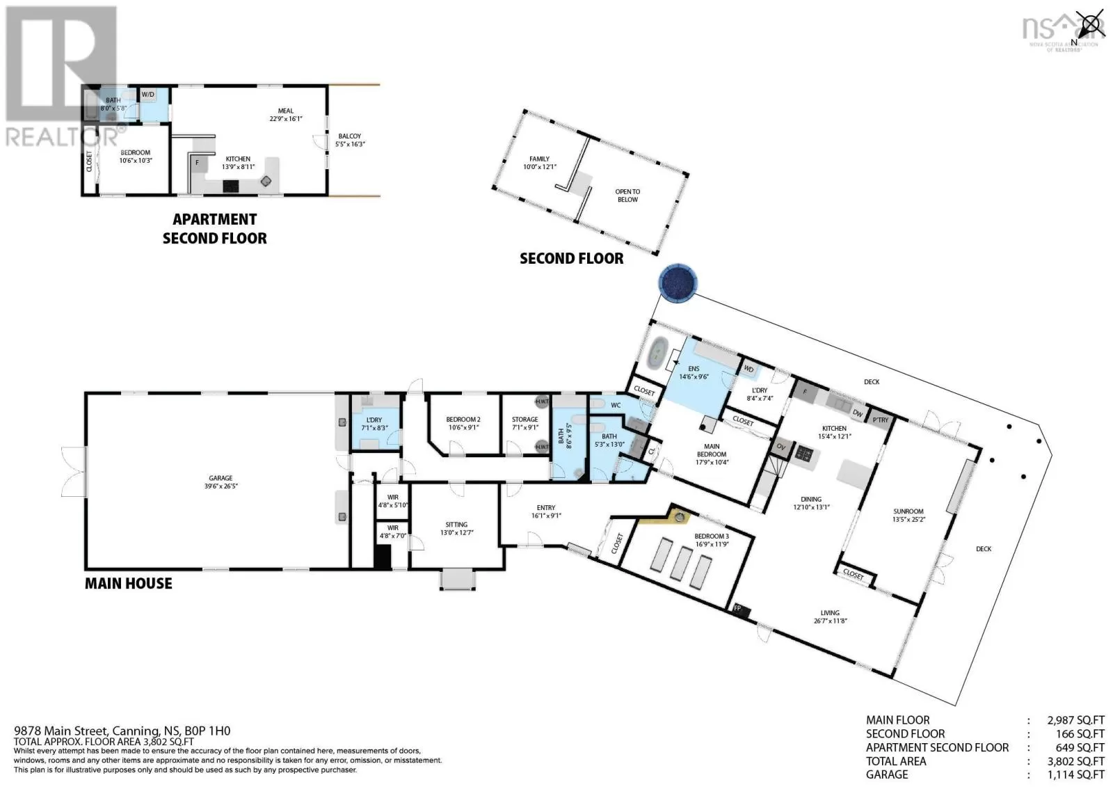
Off main rd in Canning. Turn into driveway right after the park. Live, work, host, and createall within one beautifully designed structure offering a main residence, private apartment, professional office suite, and expansive workshop. A rare and remarkable offering just steps from the charming heart of Canning where you can walk to all amenities; 15 minutes from Wolfville and Acadia University and excellent access to the highway. This distinctive waterfront property is a harmonious blend of architectural elegance and thoughtful design. Set along the banks of the Habitant River, the residence is nestled among beautifully landscaped grounds filled with mature flowering trees and shrubs, and spacious gardens, offering a tranquil retreat. The main home, an artful two-bedroom, two-bathroom masterpiece, is flooded with natural light and features a striking west-facing solarium, open concept living space with a sizable loft with every part bathed in natural light. A south-facing kitchen overlooks the lush gardens, while elegant architectural details and solid ICF construction ensure both beauty and energy efficiency. This exceptional property offers a rare versatility with four distinct spaces. Attached to the main house is a dedicated two-office suite with accessible washroom, kitchenette and private entrance providing an ideal space for a home-based business or studio. An impressive two-storey high garage/shop adds further opportunity and flexibility. A self-contained bright, one-bedroom apartment on the second floor features warm cork flooring and captivating views. Every element of this home has been designed for elegance, function, and connection to its natural surroundingsa private sanctuary with unlimited potential in one of Nova Scotias most vibrant and sought-after communities. (id:27476)

Property Highlights

MLS® Number
202516976
Type
Single Family
Community Name
Canning
Ownership Type
Freehold
Land Size
2.08 ac

Building

Building Type
House
Storeys
2.00
Square Footage
3802 sqft
Bathrooms Total
4
Bedrooms Above Ground
5
Bedrooms Total
5
Amenities
Park, Shopping, Beach
Exterior Finish
Stucco
Fireplace Present
No
Basement Type
None
Basement Features
Building Heating Type
Heating Fuel
Building Cooling Type

Utilities

Water
Municipal water
Utility Sewer
Municipal sewage system

Room Layout

Other
Second level
Flex room 10.0 x 12.1
Family room
Second level
22.9x16.1
Kitchen
Second level
Apt 13.9 x 8.11
Bath (# pieces 1-6)
Second level
8x5.8
Bedroom
Second level
10.6x10.3
Foyer
Main level
16.1x12.7
Living room
Main level
26.7x11.8
Dining room
Main level
12.10 x 13.1
Kitchen
Main level
15.4 x 12.1
Sunroom
Main level
13.5x25.2
Primary Bedroom
Main level
17.9x10.4+14.6x9.6
Ensuite (# pieces 2-6)
Main level
14.6x9.6
Bedroom
Main level
13x12.7
Bedroom
Main level
10.6x9.1
Bath (# pieces 1-6)
Main level
5.3 x 13.0
Bath (# pieces 1-6)
Main level
8.6 x 9.5
Other
Main level
7.1 x 8.3
Laundry room
Main level
7.4x8.4

Location

Community Spotlight: Homes For sale in Your Neighborhood