875 Main Street, Cole Harbour, Nova Scotia B3T 1H2

Listed for:
$2,350,000
0 beds
0 baths
Listed 197 days ago
875 Main Street, Cole Harbour, Nova Scotia B3T 1H2

View all 14 photos

About

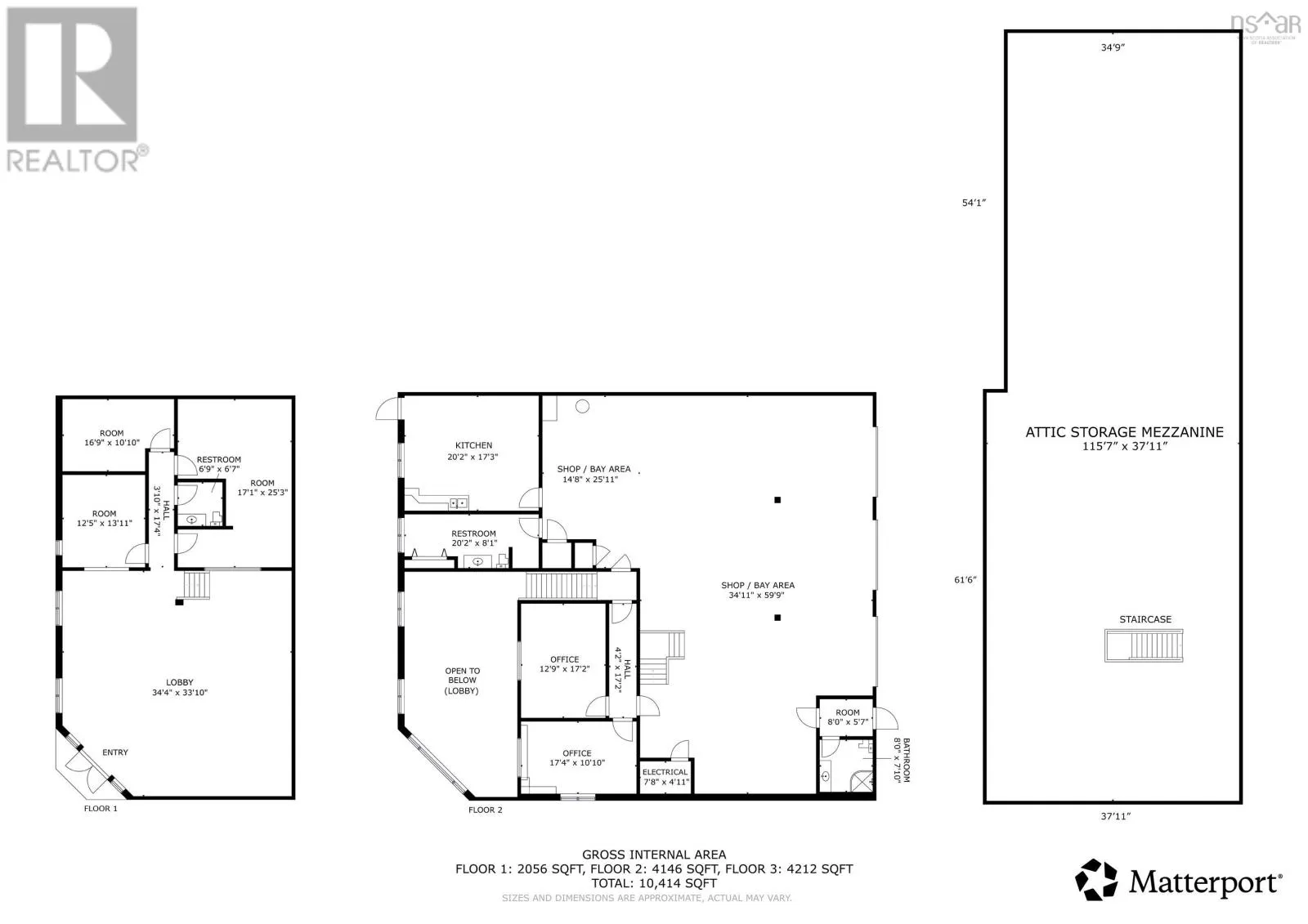
Follow Main Street to 875 Main Street Multi use building located at the corner of Main Street and Maclaughin Road. Property is well located on a primary traffic artery in the comunity of Westphal on a high profile site with exposure to over 35,000 vehhicles daily. The location offers excellent accessibility to Highway 107 and 118. The property is within close proximity to several Dartmouth bedroom communities including, Coodlawn, cole Harbour and Porters Lake. (id:27476)

Property Highlights

MLS® Number
202510541
Type
Industrial
Community Name
Cole Harbour
Ownership Type
Freehold
Land Size
1.7101 ac

Building

Amenities
Air Conditioning Highway, Public Transit, Shopping
Fireplace Present
No
Basement Type
Basement Features
Building Heating Type
Heating Fuel
Building Cooling Type
Heat Pump

Utilities

Water
Drilled Well

Location

Learn more about this property
Listing provided by:
Keller Williams Select Realty (Branch)
MLS® number:
202510541
Agent:
Paul Pettipas
*Indicates required field
Name is required
Email is required
Please enter a valid phone number (e.g., 416-111-1111).