15 Bellroyal Court, Cole Harbour, Nova Scotia B2V 2B4

Listed for:
$719,900
3 beds
4 baths
Listed 49 days ago
House for rent: 15 Bellroyal Court, Cole Harbour, Nova Scotia B2V 2B4

View all 48 photos

About

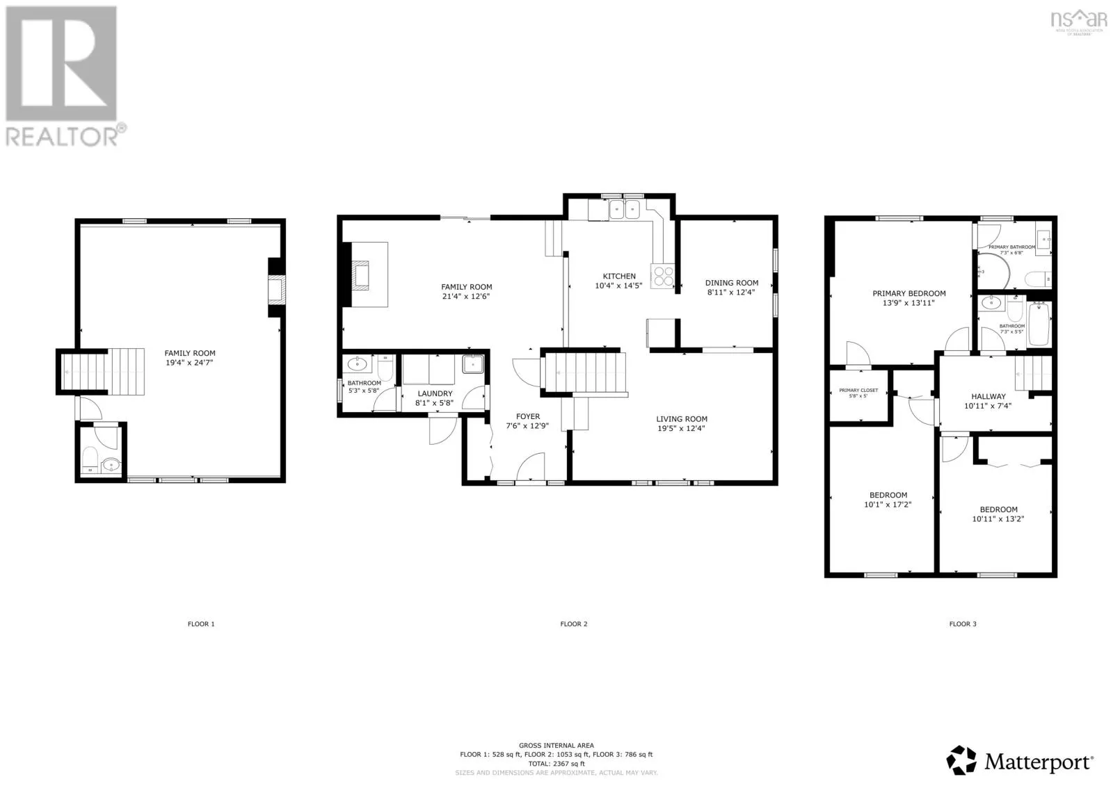
Caldwell Road to Hampton Green to Colby Drive to Bellroyal Court. Welcome to 15 Bellroyal Court, located on a sought-after, quiet street in the community of Colby Village in Dartmouth. Located within walking distance from all necessary and exclusive amenities including great schools, playgrounds/parks, ball fields, tennis/basketball courts, Colby Pool, and Bissett Lake. Additionally, entry to the Trans Canada Trail is across the street, where you will spend endless hours enjoying the outdoors. The property features a private fully fenced backyard oasis, offering the perfect space for summer gatherings, kids, and pets. You will find a beautiful new composite rear deck, including a fantastic above ground heated swimming pool and large shed. With 3 bedrooms and 4 baths, this 4-level, 2,400 sq. Ft side split balances intimacy and scale. As you enter off the large front veranda area, you will find a bright front foyer with new ceramic flooring, which leads to the large family room where you can cozy up to the wood stove during those cold nights. Next level up you will find a bright open living room with ductless heat pump and dining room and a spacious kitchen with a large sitting counter area and new stainless style appliances. This open concept feel is perfect for entertaining and family fun. Upstairs you will find two large bedrooms, a 4-piece bath, the primary bedroom suite with a walk-in closet and 3 piece ensuite bath with an abundance of storage space. The lower level features a multifunctional large family room with built-in custom cabinets and an electric fireplace, ideal for movie night or family fun. It also includes a half bathroom and entry into an expansive utility and storage area, which could be used as an additional larger bedroom suite. You will absolutely fall in love with the style and layout of this home, the street, the family neighbourhood, and its convenient location to everything you need and the outdoors. Book your viewing now! (id:27476)

Property Highlights

MLS® Number
202602588
Type
Single Family
Community Name
Cole Harbour
Ownership Type
Freehold
Land Size
0.1515 ac

Building

Building Type
House
Storeys
2.00
Square Footage
2367 sqft
Bathrooms Total
4
Bedrooms Above Ground
3
Bedrooms Total
3
Amenities
Park, Playground, Public Transit, Shopping, Place of Worship
Exterior Finish
Brick, Vinyl
Fireplace Present
No
Basement Type
Full (Partially finished)
Basement Features
Building Heating Type
Heating Fuel
Building Cooling Type
Wall unit, Heat Pump

Utilities

Water
Municipal water
Utility Sewer
Municipal sewage system

Room Layout

Primary Bedroom
Second level
13..9 x 13..11 /96
Bedroom
Second level
10..1 x 17..2 /96
Bedroom
Second level
10..11 x 13..2 /96
Storage
Second level
5..8 x 5. /96
Bath (# pieces 1-6)
Second level
7..3 x 5..5 /96
Ensuite (# pieces 2-6)
Second level
7..3 x 6..8 /96
Family room
Lower level
19..4 x 24..7 /36
Bath (# pieces 1-6)
Lower level
3..6 x 4..6 /36
Foyer
Main level
7..6 x 12..9 /59
Living room
Main level
19..5 x 12..4 /36
Dining room
Main level
8..11 x 12..4 /36
Kitchen
Main level
10..4 x 14..5 /36
Family room
Main level
21..4 x 12..6 /59
Laundry room
Main level
8..1 x 5..8 /59
Bath (# pieces 1-6)
Main level
5..3 x 5..8 /59

Location

Learn more about this property
Listing provided by:
Sutton Group Professional Realty
MLS® number:
202602588
Agent:
Glen Cluett
*Indicates required field
Name is required
Email is required
Please enter a valid phone number (e.g., 416-111-1111).

Community Spotlight: Homes For sale in Your Neighborhood