Gw-13 92 Gardenia Way, Dartmouth, Nova Scotia B2X 0C8

Listed for:
$921,900
4 beds
4 baths
Listed 79 days ago
House for rent: Gw-13 92 Gardenia Way, Dartmouth, Nova Scotia B2X 0C8

View all 2 photos

About

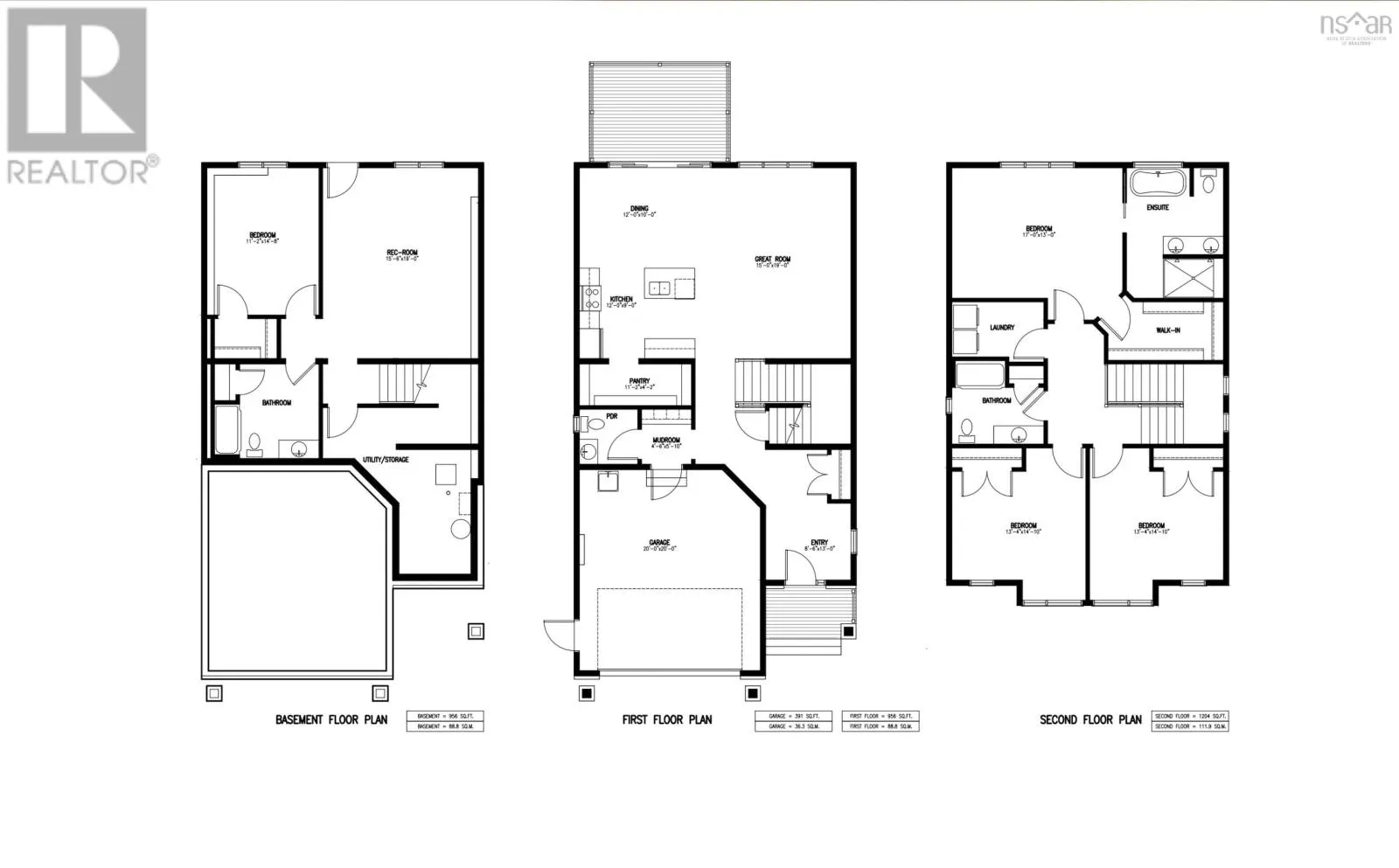
Terrastone Ridge to Gardenia Way Meet "Morgan" A Stunning 2-Storey Home in The Parks of Lake Charles! Rooftight Homes presents the Morgan, a beautifully designed 4-bedroom, 3.5-bathroom home that blends modern elegance with functional living on Gardenia Way. There are two facade choices for this model and colours for exterior are customizable. The upper level features three spacious bedrooms, a main bathroom, and a convenient large laundry room. The primary suite is a true retreat, complete with a walk-in closet and a spa-like ensuite, including dual vanities, walk-in shower, and a luxurious soaker tub. On the main level, youll find a welcoming front entry, and access to/from the attached garage, a powder room, and a bright open-concept kitchen, dining, and living areaperfect for entertaining with direct access to the back deck. The walkout basement expands your living space with a fourth bedroom, full bathroom, under-stair storage, utility room, and a versatile recreation space. Buyers will appreciate the high-quality standard finishes available, along with a variety of customizable upgrade and enhancement options to personalize their home. Completion to be 8 months from contract date. The "Morgan" model starts at $899,900 can also be built on a lot backing onto a natural greenbelt for a premium lot fee of $22,000 on the base price. Alternatively, this lot can also accommodate other models from Rooftight Homes such as the "Brielle" bungalow and "Grace" 2-storey plan. Dont miss your opportunity to own in this exciting new community that is closeby Dartmouth landmarks such as the Mic Mac Bar & Grill, Shubie Park, Lake Banook (with its award winning paddling clubs), walking trails, & all major amenities, and Dartmouth Crossing is just 10 minutes away! (id:27476)

Property Highlights

MLS® Number
202528764
Type
Single Family
Community Name
Dartmouth
Ownership Type
Freehold
Land Size
0.3195 ac

Building

Building Type
House
Storeys
2.00
Square Footage
3116 sqft
Bathrooms Total
4
Bedrooms Above Ground
3
Bedrooms Total
4
Amenities
Park
Exterior Finish
Stone, Vinyl
Fireplace Present
No
Basement Type
Full (Finished)
Basement Features
Building Heating Type
Heating Fuel
Building Cooling Type
Wall unit, Heat Pump

Utilities

Water
Municipal water
Utility Sewer
Municipal sewage system

Room Layout

Bedroom
Second level
13.4x14.10
Bedroom
Second level
13.4x14.10
Bath (# pieces 1-6)
Second level
9x8.2
Laundry room
Second level
9x6.4
Primary Bedroom
Second level
17x15
Bath (# pieces 1-6)
Lower level
9.8x13
Recreational, Games room
Lower level
15.6x19
Bath (# pieces 1-6)
Lower level
10.3x11.10
Bedroom
Lower level
11.2x14.5
Foyer
Main level
8.6x13
Mud room
Main level
4.6x5.10
Bath (# pieces 1-6)
Main level
5.11x6.6
Kitchen
Main level
12x9
Other
Main level
Pantry 11.2x4.2
Dining room
Main level
12x10
Great room
Main level
15x19

Location

Learn more about this property
Listing provided by:
Royal LePage Atlantic
MLS® number:
202528764
Agent:
Jacqui Rostek Holder
*Indicates required field
Name is required
Email is required
Please enter a valid phone number (e.g., 416-111-1111).

Street Spotlight - For sale